Church Road, Frampton Cotterell, Bristol
By A J Homes
£ 500,000
Reviews
3 out of 5 stars
A J Homes says ..
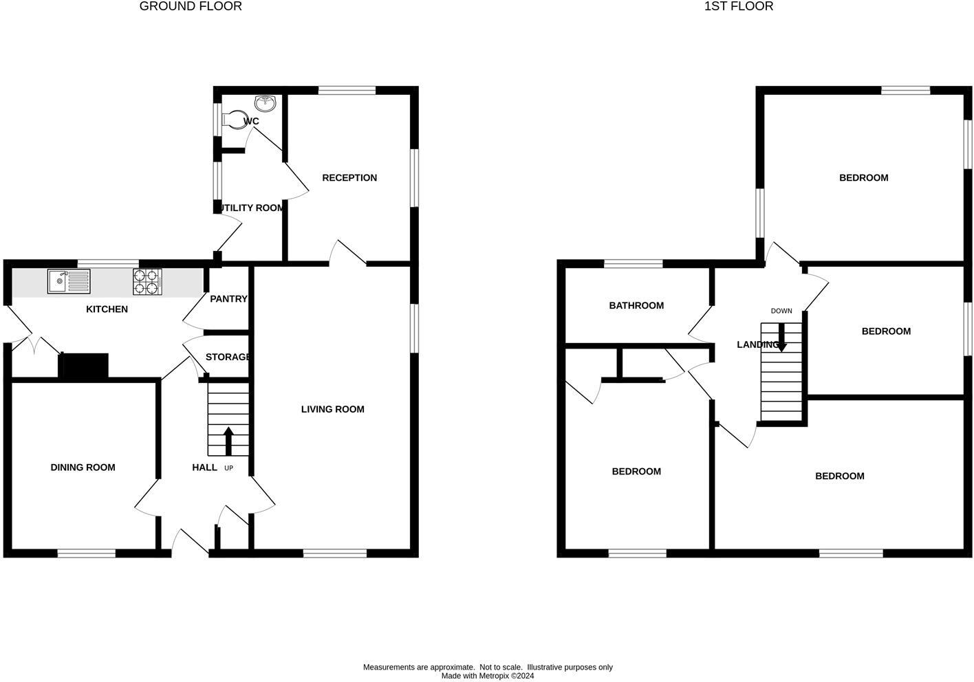
Competitively priced to sell, this deceptively spacious detached family home is ideally situated on Church Road in the sought-after village of Frampton Cotterell. The property offers three generous reception rooms, four well-proportioned bedrooms, a cloakroom, utility room, and a family ...
Property Oracle says ..
This detached property on Church Road, Frampton Cotterell, offers four bedrooms and one bathroom within 1,112.38 sqft. While the location is advantageous, with proximity to schools and transport links, the property requires significant renovation to modernise its dated interior. The generous garden provides ample outdoor space, enhancing its appeal. The asking price of £500,000 is slightly above the average for the area, reflecting the value of the location and land, but the renovation needs should be considered.
Therefore, we give this property 6 / 10. *Disclaimer: This is our option and does constitute a recommendation or financial advice. Do your own research. *
- Price
- 6
- Condition
- 4
- Location
- 7
- Land
- 7
- Bedrooms
- 4
- Bathrooms
- 1
- Sqft (est)
- 1,112.38
The heatmap indicates the level of crime in the area. The color of the heatmap indicates the crime severity and recency.
Metrics Year-on-Year
- Average area value
- 477,492.00 £Decreased by 9.28 %
- Est sale value
- 500,571.00 £Increased by 19.36 %
- Average area rental value
- 1,915.00 £/moIncreased by 20.52 %
- Est letting value
- 1,112.38 £/moUnchanged by 0.00 %
- Est rental Yield
- 4.81 %Increased by 32.87 %
- Crime Rate
- 17.00 %Unchanged by 0.00 %
Agent Activity
A J Homes created the listing.
Nearby Schools
| Name | Type | Ofsted | Distance |
|---|---|---|---|
| Frampton Cotterell Church Of England Primary School | Voluntary Controlled School | Good | 0.32 KM |
| Winterbourne Children'S Centre | Children's Centre Linked Site | 1.50 KM | |
| Elm Park Primary School | Community School | Good | 1.72 KM |
| Watermore Primary School | Community School | Outstanding | 2.01 KM |
| St Michael'S Church Of England Primary School, Winterbourne | Voluntary Controlled School | Good | 2.13 KM |
Images
Nearby Streets
| Name | Average Price | Average Sqft | Distance |
|---|---|---|---|
| Western Avenue | £ 375,000 | 0 | 0.00 KM |
| Mount Close | £ 500,000 | 0 | 0.00 KM |
| Prospect Close | £ 612,500 | 0 | 0.00 KM |
| Court Road | £ 530,000 | 0 | 0.00 KM |
| Tudor Farm Walkway | £ 0 | 0 | 0.00 KM |
Nearby Transport
| Name | NLC | TLC | Distance |
|---|---|---|---|
| Yate | 3380 | YAE | 6.23 KM |
| Bristol Parkway | 3230 | BPW | 6.44 KM |
| Patchway | 3213 | PWY | 8.27 KM |
| Filton Abbey Wood | 3235 | FIT | 8.89 KM |
Nearby Listings
| Address | Price | Type | Score | Distance |
|---|---|---|---|---|
| Church Road, Frampton Cotterell, Bristol | £ 500,000 | BUY | 6 / 10 | 0.00 KM |
| Church Road, Frampton Cotterell, Bristol | £ 575,000 | BUY | 6 / 10 | 0.00 KM |
| School Road, Frampton Cotterell, Bristol, Gloucestershire, BS36 | £ 550,000 | BUY | 6 / 10 | 0.16 KM |
| Western Avenue, Bristol, BS36 | £ 440,000 | BUY | 7 / 10 | 0.18 KM |
| School Road, Frampton Cotterell, Bristol, Gloucestershire, BS36 | £ 650,000 | BUY | Unknown | 0.24 KM |
Nearby Properties
| Address | Price | Distance |
|---|---|---|
| 397 Church Road | £ 342,000 | 0.08 KM |
| 480 Church Road | £ 350,000 | 0.08 KM |
| 383 Church Road | £ 445,000 | 0.08 KM |
| 454 Church Road | £ 195,000 | 0.08 KM |
| 472 Church Road | £ 273,000 | 0.08 KM |