Station Road, New Milton, BH25 6HR
By Hunters
£ 1,200,000
Reviews
3 out of 5 stars
Hunters says ..
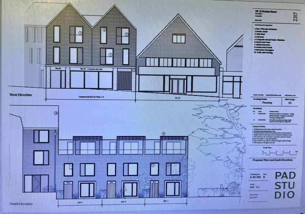
A rare opportunity to purchase a Freehold Development site, for sale by way of Informal Tender. Tenders to be submitted by Friday 27th July 2025, to the offices of Hunters of Highcliffe, by 12.00 Noon in a sealed envelope, marked, Station Road Site. The site currently comprises of no 29/...
Property Oracle says ..
The property is located on Station Road in New Milton, Hampshire, BH25. The listing is for land with planning permission for a development of apartments and houses. The location is good, with New Milton train station nearby and several schools in the vicinity.
Therefore, we give this property 6 / 10. *Disclaimer: This is our option and does constitute a recommendation or financial advice. Do your own research. *
- Price
- 4
- Condition
- 0
- Location
- 9
- Land
- 7
- Bedrooms
- 0
- Bathrooms
- 0
The heatmap indicates the level of crime in the area. The color of the heatmap indicates the crime severity and recency.
Metrics Year-on-Year
- Average area value
- 328,606.00 £Increased by 5.04 %
- Average area rental value
- 1,137.00 £/moDecreased by 6.34 %
- Est rental Yield
- 4.15 %Decreased by 10.94 %
- Crime Rate
- 54.00 %Unchanged by 0.00 %
Agent Activity
Hunters created the listing.
Nearby Schools
| Name | Type | Ofsted | Distance |
|---|---|---|---|
| Ballard School | Other Independent School | 0.75 KM | |
| New Milton Junior School | Community School | Good | 0.94 KM |
| The Arnewood School | Academy Converter | Good | 0.97 KM |
| New Milton Infant School | Community School | Outstanding | 0.98 KM |
| The Phoenix Children And Young People'S Centre | Children's Centre | 1.32 KM |
Images
Nearby Streets
| Name | Average Price | Average Sqft | Distance |
|---|---|---|---|
| Station Road | £ 200,592 | 0 | 0.00 KM |
| Fernhill Road | £ 659,983 | 0 | 0.00 KM |
| Rubens Close | £ 0 | 0 | 0.00 KM |
| Raleigh Close | £ 239,950 | 0 | 0.00 KM |
| Copse Avenue | £ 865,000 | 0 | 0.00 KM |
Nearby Transport
| Name | NLC | TLC | Distance |
|---|---|---|---|
| New Milton | 5881 | NWM | 0.14 KM |
| Sway | 5884 | SWY | 6.08 KM |
| Hinton Admiral | 5880 | HNA | 6.37 KM |
Nearby Listings
| Address | Price | Type | Score | Distance |
|---|---|---|---|---|
| Station Road, New Milton, BH25 6HR | £ 1,200,000 | BUY | 6 / 10 | 0.00 KM |
| Station Road, New Milton, Hampshire, BH25 | £ 145,000 | BUY | 5 / 10 | 0.06 KM |
| Whitefield Road, New Milton, Hampshire, BH25 | £ 145,000 | BUY | 6 / 10 | 0.07 KM |
| Station Road, New Milton, Hampshire, BH25 | £ 135,000 | BUY | 6 / 10 | 0.07 KM |
| Whitefield Road, New Milton, Hampshire | £ 155,000 | BUY | 5 / 10 | 0.11 KM |
Nearby Properties
| Address | Price | Distance |
|---|---|---|
| 7b Whitefield Road | £ 125,000 | 0.13 KM |
| 6 Parkside Walk | £ 161,000 | 0.18 KM |
| 5 Parkside Walk | £ 133,000 | 0.18 KM |
| 4 Parkside Walk | £ 135,000 | 0.18 KM |
| 1 Parkside Walk | £ 142,000 | 0.18 KM |