Lucerne Road, Thornton Heath, CR7
By Streets Ahead
£ 400,000
Reviews
2 out of 5 stars
Streets Ahead says ..
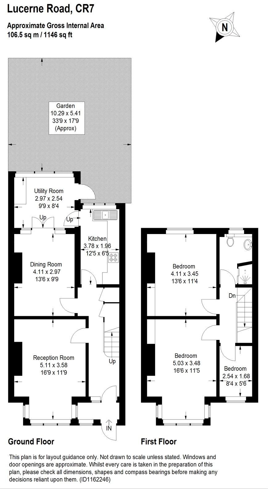
A three-bedroom terraced home with two spacious reception rooms, generously sized bedrooms and upstairs family bathroom. Located on a quiet residential street and within proximity to Thornton Heath Station. Further benefits include no onward chain and the potential to extend (STPP)
Property Oracle says ..
This three-bedroom terraced house on Lucerne Road, Thornton Heath, offers potential but requires significant modernisation. The property’s location presents several advantages; it’s reasonably close to several train stations providing connections into central London and is situated near well-regarded schools, enhancing its family appeal. While the property has a garden, its size is modest and needs attention. The interior requires significant improvements; the kitchen and bathroom appear dated, and a general refurbishment would likely be needed to bring it up to modern standards. The listed price of £400,000 needs to be considered in the context of required renovations. While comparable properties show similar pricing, potential buyers must factor in considerable refurbishment costs. Overall, the property presents an opportunity for someone who’s willing to invest time and resources in modernisation to transform it into a comfortable family home. It’s important to note the lack of precise plot size and square footage details provided for the property and nearby properties hinder a completely precise valuation. A thorough survey should be conducted to accurately assess the property’s condition and potential maintenance and repair issues.
Therefore, we give this property 5 / 10. *Disclaimer: This is our option and does constitute a recommendation or financial advice. Do your own research. *
- Price
- 7
- Condition
- 5
- Location
- 7
- Land
- 4
- Bedrooms
- 3
- Bathrooms
- 1
- Sqft (est)
- 1,146.00
The heatmap indicates the level of crime in the area. The color of the heatmap indicates the crime severity and recency.
Metrics Year-on-Year
- Average area value
- 520,556.00 £Increased by 29.09 %
- Est sale value
- 495,072.00 £Increased by 6.14 %
- Average area rental value
- 1,851.00 £/moIncreased by 6.14 %
- Est letting value
- 1,146.00 £/moUnchanged by 0.00 %
- Est rental Yield
- 4.27 %Decreased by 17.73 %
- Crime Rate
- 3.00 %Unchanged by 0.00 %
Agent Activity
Streets Ahead marked this listing as sold.
Streets Ahead created the listing.
Nearby Schools
| Name | Type | Ofsted | Distance |
|---|---|---|---|
| Bensham Manor School | Community Special School | Good | 0.17 KM |
| Ecclesbourne Primary School | Academy Converter | Good | 0.48 KM |
| Ecclesbourne Children'S Centre | Children's Centre Linked Site | 0.57 KM | |
| Thornton Heath Children'S Centre | Children's Centre Linked Site | 0.82 KM | |
| Thornton Heath Nursery School | Local Authority Nursery School | Good | 0.90 KM |
Images
Nearby Streets
| Name | Average Price | Average Sqft | Distance |
|---|---|---|---|
| Stuart Road | £ 0 | 0 | 0.00 KM |
| Ford Close | £ 0 | 0 | 0.00 KM |
| Simpson Close | £ 0 | 0 | 0.00 KM |
| Bedser Close | £ 0 | 0 | 0.00 KM |
| Elm Road | £ 0 | 0 | 0.00 KM |
Nearby Transport
| Name | NLC | TLC | Distance |
|---|---|---|---|
| Thornton Heath | 5388 | TTH | 0.42 KM |
| Selhurst | 5434 | SRS | 1.70 KM |
| West Croydon | 5411 | WCY | 1.97 KM |
| East Croydon | 5355 | ECR | 2.57 KM |
| Norbury | 5428 | NRB | 2.69 KM |
Nearby Listings
| Address | Price | Type | Score | Distance |
|---|---|---|---|---|
| Lucerne Road, Thornton Heath, CR7 | £ 400,000 | BUY | 5 / 10 | 0.00 KM |
| Lucerne Road, Thornton Heath, CR7 | £ 250,000 | BUY | 5 / 10 | 0.01 KM |
| Geneva Road, Thornton Heath, Surrey, CR7 | £ 415,000 | BUY | Unknown | 0.06 KM |
| Lucerne Road, Thornton Heath | £ 500,000 | BUY | 7 / 10 | 0.10 KM |
| Bennington Close, Thornton Heath, CR7 7FG | £ 100,000 | BUY | 7 / 10 | 0.11 KM |
Nearby Properties
| Address | Price | Distance |
|---|---|---|
| 41 Lucerne Road | £ 380,000 | 0.01 KM |
| 35 Lucerne Road | £ 465,000 | 0.01 KM |
| 31a Lucerne Road | £ 191,500 | 0.01 KM |
| 17 Lucerne Road | £ 590,000 | 0.01 KM |
| 59 Lucerne Road | £ 190,000 | 0.01 KM |