Penhallow, Truro, Cornwall
BR

Penhallow, Truro, Cornwall

By Bradleys

£ 490,000

Reviews

3 out of 5 stars

Bradleys says ..

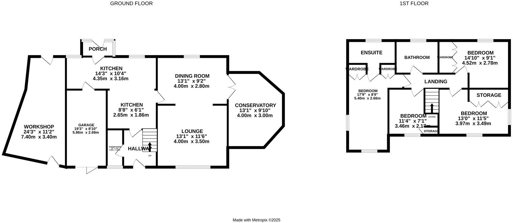
SPACIOUS FOUR-BED FAMILY HOME WITH LARGE GARDEN, GARAGE & AMPLE PARKING IN A TRANQUIL SEMI-RURAL SETTING Set in a peaceful semi-rural location, this well-presented four-bedroom detached family home offers generous living space both inside and out. Featuring an approximately 197ft pr...

Property Oracle says ..

This is a detached property in Penhallow, near Truro, Cornwall, featuring 4 bedrooms and 2 bathrooms. The property appears to be in generally good condition, with a modern kitchen and bathrooms. It benefits from a good-sized garden. The location offers a balance between rural living and accessibility to Truro. The asking price of £490,000 seems reasonable given the size, condition, and location of the property.

Therefore, we give this property 6 / 10. *Disclaimer: This is our option and does constitute a recommendation or financial advice. Do your own research. *

Price
7
Condition
7
Location
6
Land
7
Bedrooms
4
Bathrooms
2
Sqft (est)
1,432.97

The heatmap indicates the level of crime in the area. The color of the heatmap indicates the crime severity and recency.

Metrics Year-on-Year

Average area value
380,500.00 £
Decreased by 7.95 %
from 413,363.00 £
Est sale value
437,055.85 £
Increased by 0.66 %
from 434,189.91 £
Average area rental value
1,550.00 £/mo
Increased by 31.91 %
from 1,175.00 £/mo
Est letting value
1,432.97 £/mo
from 0.00 £/mo
Est rental Yield
4.89 %
Increased by 43.40 %
from 3.41 %
Crime Rate
62.00 %
Unchanged by 0.00 %
from 62.00 %

Agent Activity

  • Bradleys created the listing.

Nearby Schools

NameTypeOfstedDistance
Perranporth Community Primary SchoolAcademy ConverterGood2.92 KM
Perranporth (St Piran'S) Children'S Centre SiteChildren's Centre3.01 KM
Goonhavern Primary SchoolCommunity SchoolGood4.12 KM
Mithian SchoolAcademy ConverterGood4.47 KM
Three BridgesOther Independent Special SchoolGood5.68 KM

Images

Picture No. 18 Picture No. 07 Picture No. 12 Picture No. 09 Picture No. 06 Picture No. 04 Picture No. 01 Picture No. 02 Picture No. 03 Picture No. 05 Picture No. 08 Picture No. 10 Picture No. 11 Picture No. 13 Picture No. 14 Picture No. 15 Picture No. 16

Nearby Streets

NameAverage PriceAverage SqftDistance
Beacon View £ 000.00 KM
Saints Trail £ 000.00 KM
Lambriggan £ 000.00 KM

Nearby Listings

AddressPriceTypeScoreDistance
Penhallow, Truro, Cornwall £ 490,000BUY6 / 100.00 KM
Penhallow, Truro, Cornwall, TR4 £ 328,250BUY6 / 100.18 KM
Penhallow, Truro, TR4 £ 500,000BUY7 / 100.18 KM
Penhallow, Nr. Truro, Cornwall £ 1,550,000BUY7 / 100.84 KM
Penhallow, Nr. Truro, Cornwall £ 375,000BUY7 / 100.90 KM

Nearby Properties

AddressPriceDistance
2 Veor Cottages £ 345,0001.25 KM
Chycoose £ 575,0001.43 KM
Transvaal House £ 177,0001.43 KM
Bay House £ 515,0001.59 KM
Treveth £ 249,9991.59 KM