Homewise says ..
Guide price for a Home for Life Lifetime Lease for OVER 60s tailored to your personal circumstances and requirements. Your price may vary. OVER 60S could benefit from SAVINGS of up to 59% from the market value with a one-off payment for a Lifetime Lease on this property. £32...
Property Oracle says ..
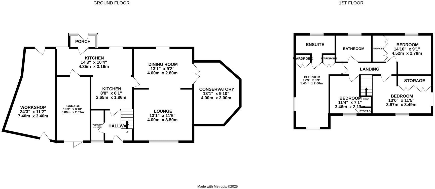
The property is a detached house located in Penhallow, near Truro, Cornwall. It has four bedrooms and two bathrooms. The property is in reasonable condition and has a good-sized garden. The property is listed with Homewise and may be subject to their terms and conditions. The property is located approximately 10km from Truro station. There are several schools located within a few kilometers of the property, with the closest being Perranporth Community Primary School.
Therefore, we give this property 6 / 10. *Disclaimer: This is our option and does constitute a recommendation or financial advice. Do your own research. *
- Price
- 7
- Condition
- 7
- Location
- 6
- Land
- 7
- Bedrooms
- 4
- Bathrooms
- 2
- Sqft (est)
- 1,469.48
The heatmap indicates the level of crime in the area. The color of the heatmap indicates the crime severity and recency.
Metrics Year-on-Year
- Average area value
- 380,500.00 £Decreased by 7.95 %
- Est sale value
- 448,191.40 £Increased by 0.66 %
- Average area rental value
- 1,550.00 £/moIncreased by 31.91 %
- Est letting value
- 1,469.48 £/mo
- Est rental Yield
- 4.89 %Increased by 43.40 %
- Crime Rate
- 62.00 %Unchanged by 0.00 %
Agent Activity
Homewise created the listing.
Nearby Schools
| Name | Type | Ofsted | Distance |
|---|---|---|---|
| Perranporth Community Primary School | Academy Converter | Good | 3.10 KM |
| Perranporth (St Piran'S) Children'S Centre Site | Children's Centre | 3.18 KM | |
| Goonhavern Primary School | Community School | Good | 4.19 KM |
| Mithian School | Academy Converter | Good | 4.52 KM |
| Three Bridges | Other Independent Special School | Good | 5.59 KM |
Images
Nearby Streets
| Name | Average Price | Average Sqft | Distance |
|---|---|---|---|
| Beacon View | £ 0 | 0 | 0.00 KM |
| Saints Trail | £ 0 | 0 | 0.00 KM |
Nearby Transport
| Name | NLC | TLC | Distance |
|---|---|---|---|
| Truro | 3540 | TRU | 9.85 KM |
Nearby Listings
| Address | Price | Type | Score | Distance |
|---|---|---|---|---|
| Penhallow, Truro, Cornwall, TR4 | £ 328,250 | BUY | 6 / 10 | 0.00 KM |
| Penhallow, Truro, TR4 | £ 500,000 | BUY | 7 / 10 | 0.08 KM |
| Penhallow, Truro, Cornwall | £ 490,000 | BUY | 6 / 10 | 0.18 KM |
| Penhallow, Nr. Truro, Cornwall | £ 1,550,000 | BUY | 7 / 10 | 0.97 KM |
| Penhallow, Nr. Truro, Cornwall | £ 375,000 | BUY | 7 / 10 | 1.05 KM |
Nearby Properties
| Address | Price | Distance |
|---|---|---|
| 2 Veor Cottages | £ 345,000 | 1.10 KM |
| Chycoose | £ 575,000 | 1.60 KM |
| Transvaal House | £ 177,000 | 1.60 KM |
| Byways | £ 500,000 | 1.76 KM |
| Bay House | £ 515,000 | 1.76 KM |