Skylark Lane, Camber, Rye, East Sussex, TN31
RE

Skylark Lane, Camber, Rye, East Sussex, TN31

By Reeds Rains

£ 325,000

Reviews

3 out of 5 stars

Reeds Rains says ..

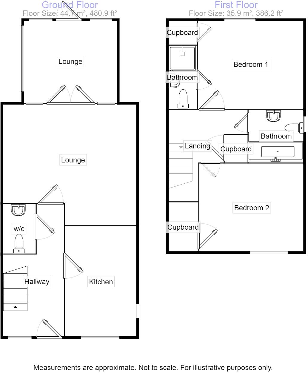
VIDEO TOUR - Located on the white sand development by a cut through lane giving easy access to Camber beach. This semi detached home has some attractive additional features that is sure to make it a popular property amongst others in the locality. The property has the benefit of an additional rec...

Property Oracle says ..

This property is a 2 bedroom, 2 bathroom semi-detached house located in Camber, East Sussex. The property is modern and well-maintained, with a contemporary kitchen and a spacious living area that opens onto a conservatory and a small garden. There is also a garage. The location is good, with easy access to local amenities and transport links. However, the plot size is small. The asking price is slightly above the average for the area, but comparable to similar properties nearby. Overall, this is a well-presented property in a desirable location.

Therefore, we give this property 6 / 10. *Disclaimer: This is our option and does constitute a recommendation or financial advice. Do your own research. *

Price
7
Condition
9
Location
8
Land
3
Bedrooms
2
Bathrooms
2
Sqft (est)
480.90

The heatmap indicates the level of crime in the area. The color of the heatmap indicates the crime severity and recency.

Metrics Year-on-Year

Average area value
373,340.00 £
Decreased by 12.53 %
from 426,805.00 £
Est sale value
163,025.10 £
Decreased by 16.09 %
from 194,283.60 £
Average area rental value
2,297.00 £/mo
Decreased by 20.08 %
from 2,874.00 £/mo
Est letting value
961.80 £/mo
Unchanged by 0.00 %
from 961.80 £/mo
Est rental Yield
7.38 %
Decreased by 8.66 %
from 8.08 %
Crime Rate
19.00 %
Unchanged by 0.00 %
from 19.00 %

Agent Activity

  • Reeds Rains created the listing.

Nearby Schools

NameTypeOfstedDistance
St Michael'S Church Of England Primary SchoolVoluntary Controlled SchoolGood6.35 KM
Rye CollegeAcademy Converter6.70 KM
Rye Community Primary SchoolAcademy Converter6.88 KM
Brookland Church Of England Primary SchoolVoluntary Controlled SchoolGood8.47 KM
St Thomas' Church Of England Aided Primary SchoolVoluntary Aided SchoolGood8.98 KM

Images

Picture No. 22 Picture No. 50 Picture No. 19 Picture No. 16 Picture No. 23 Picture No. 17 Picture No. 24 Picture No. 21 Picture No. 20 Picture No. 31 Picture No. 28 Picture No. 27 Picture No. 25 Picture No. 15 Picture No. 18 Picture No. 54 Picture No. 51 Picture No. 52 Picture No. 53 Picture No. 26

Nearby Streets

NameAverage PriceAverage SqftDistance
Yates Close £ 000.00 KM

Nearby Transport

NameNLCTLCDistance
Rye (Sussex)5024RYE6.71 KM
Winchelsea5042WSE9.63 KM

Nearby Listings

AddressPriceTypeScoreDistance
Skylark Lane, Camber, Rye, East Sussex, TN31 £ 325,000BUY6 / 100.00 KM
Badger Way, Camber £ 249,950BUY5 / 100.06 KM
Camber, Nr. Ry, East Sussex TN31 £ 250,000BUYUnknown0.09 KM
Badger Way, Camber, TN31 £ 255,000BUY7 / 100.09 KM
Sandy Way, Camber, Rye, East Sussex, TN31 £ 525,000BUY6 / 100.10 KM

Nearby Properties

AddressPriceDistance
2 Skylark Lane £ 320,0000.01 KM
11 Skylark Lane £ 315,0000.01 KM
8 Skylark Lane £ 314,0000.01 KM
4 Badger Way £ 288,0000.04 KM
31 Badger Way £ 227,5000.04 KM