Holmes Road, Kentish Town, NW5
By Robert Lehrer Properties
£ 4,450,000
Reviews
3 out of 5 stars
Robert Lehrer Properties says ..
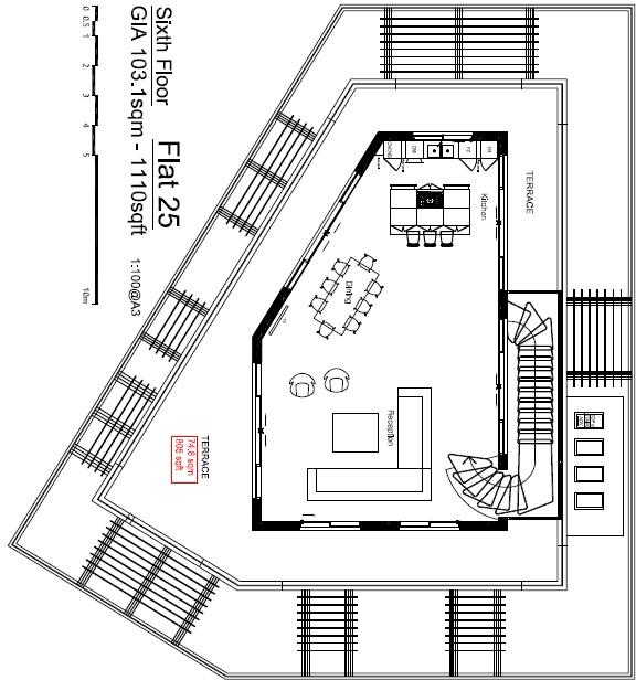
(APARTMENT VIDEO AVAILABLE HERE OR ON OUR YOUTUBE CHANNEL) Holmes Road, London NW5Newly built spectacular duplex apartment in a modern block located 2 mins from Kentish Town tube station. Designed and built by Hallmark Property Group the Property features a huge Living room on the top floor with...
Property Oracle says ..
This stunning penthouse apartment located on Holmes Road in Kentish Town, NW5 is a truly exceptional property. The images showcase a high-end finish and modern design throughout. The spacious open-plan living area benefits from floor-to-ceiling windows offering impressive views. The inclusion of multiple bathrooms and bedrooms ensures ample space for a family or those who enjoy entertaining. The apartment’s location in Kentish Town offers excellent connectivity via the Northern Line tube station and Overground services. The presence of well-regarded schools nearby adds to its appeal for families. The large terrace provides a wonderful outdoor space for relaxation and entertaining, although a larger private garden or plot size would have enhanced the property further. The price reflects the property’s luxurious features, prime location, and the desirability of Kentish Town. While the price is high, the overall desirability of the property, high-quality finish, and prime location would attract high net-worth individuals or families looking for a luxurious residence in a vibrant and convenient location.
Therefore, we give this property 6 / 10. *Disclaimer: This is our option and does constitute a recommendation or financial advice. Do your own research. *
- Price
- 7
- Condition
- 9
- Location
- 9
- Land
- 2
- Bedrooms
- 4
- Bathrooms
- 4
- Sqft (est)
- 2,048.37
The heatmap indicates the level of crime in the area. The color of the heatmap indicates the crime severity and recency.
Metrics Year-on-Year
- Average area value
- 1,296,250.00 £Increased by 47.94 %
- Est sale value
- 3,115,570.77 £Increased by 136.18 %
- Average area rental value
- 2,707.00 £/moIncreased by 9.24 %
- Est letting value
- 6,145.11 £/moIncreased by 200.00 %
- Est rental Yield
- 2.51 %Decreased by 25.96 %
- Crime Rate
- 5.00 %Unchanged by 0.00 %
Agent Activity
Robert Lehrer Properties created the listing.
Nearby Schools
| Name | Type | Ofsted | Distance |
|---|---|---|---|
| St Patrick'S Catholic Primary School | Voluntary Aided School | Good | 0.10 KM |
| College Francais Bilingue De Londres | Other Independent School | Outstanding | 0.21 KM |
| Kentish Town Church Of England Primary School | Voluntary Aided School | Outstanding | 0.50 KM |
| Holy Trinity And Saint Silas Cofe Primary School, Nw1 | Voluntary Aided School | Good | 0.65 KM |
| Camden Centre For Learning (Ccfl) Special School | Community Special School | Good | 0.67 KM |
Images
Nearby Streets
| Name | Average Price | Average Sqft | Distance |
|---|---|---|---|
| Spring Place | £ 0 | 0 | 0.00 KM |
| Ryland Road | £ 500,000 | 0 | 0.00 KM |
| Church Avenue | £ 0 | 0 | 0.00 KM |
| Dalby Street | £ 0 | 0 | 0.00 KM |
| Castle Road | £ 1,150,000 | 0 | 0.00 KM |
Nearby Transport
| Name | NLC | TLC | Distance |
|---|---|---|---|
| Kentish Town | 1553 | KTN | 0.39 KM |
| Kentish Town West | 1449 | KTW | 0.46 KM |
| Gospel Oak | 1409 | GPO | 1.00 KM |
| Camden Road | 1440 | CMD | 1.04 KM |
| Upper Holloway | 1524 | UHL | 2.22 KM |
Nearby Listings
| Address | Price | Type | Score | Distance |
|---|---|---|---|---|
| Holmes Road, Kentish Town, NW5 | £ 4,450,000 | BUY | 6 / 10 | 0.00 KM |
| Holmes Road, London | £ 1,595,000 | BUY | 7 / 10 | 0.01 KM |
| 55 Holmes Road, Kentish Town, London, NW5 | £ 4,450,000 | BUY | 8 / 10 | 0.01 KM |
| Holmes Road, London NW5 | £ 4,450,000 | BUY | 8 / 10 | 0.01 KM |
| Holmes Road, Kentish Town, London, NW5 | £ 4,450,000 | BUY | Unknown | 0.01 KM |
Nearby Properties
| Address | Price | Distance |
|---|---|---|
| 28a Inkerman Road | £ 360,000 | 0.10 KM |
| 14 Inkerman Road | £ 359,400 | 0.10 KM |
| 29 Inkerman Road | £ 1,275,000 | 0.10 KM |
| 11 Inkerman Road | £ 1,022,000 | 0.10 KM |
| 9 Inkerman Road | £ 380,000 | 0.10 KM |