Rowley Lane, Lepton, Huddersfield, HD8
By Fastmove
£ 850,000
Reviews
3 out of 5 stars
Fastmove says ..
STUNNING, TRULY SPECIAL AND SPACIOUS DETACHED FAMILY HOME. BOASTING HIGH QUALITY FIXTURES AND FITTINGS THROUGHOUT AND A WEALTH OF CHARACTER.
Property Oracle says ..
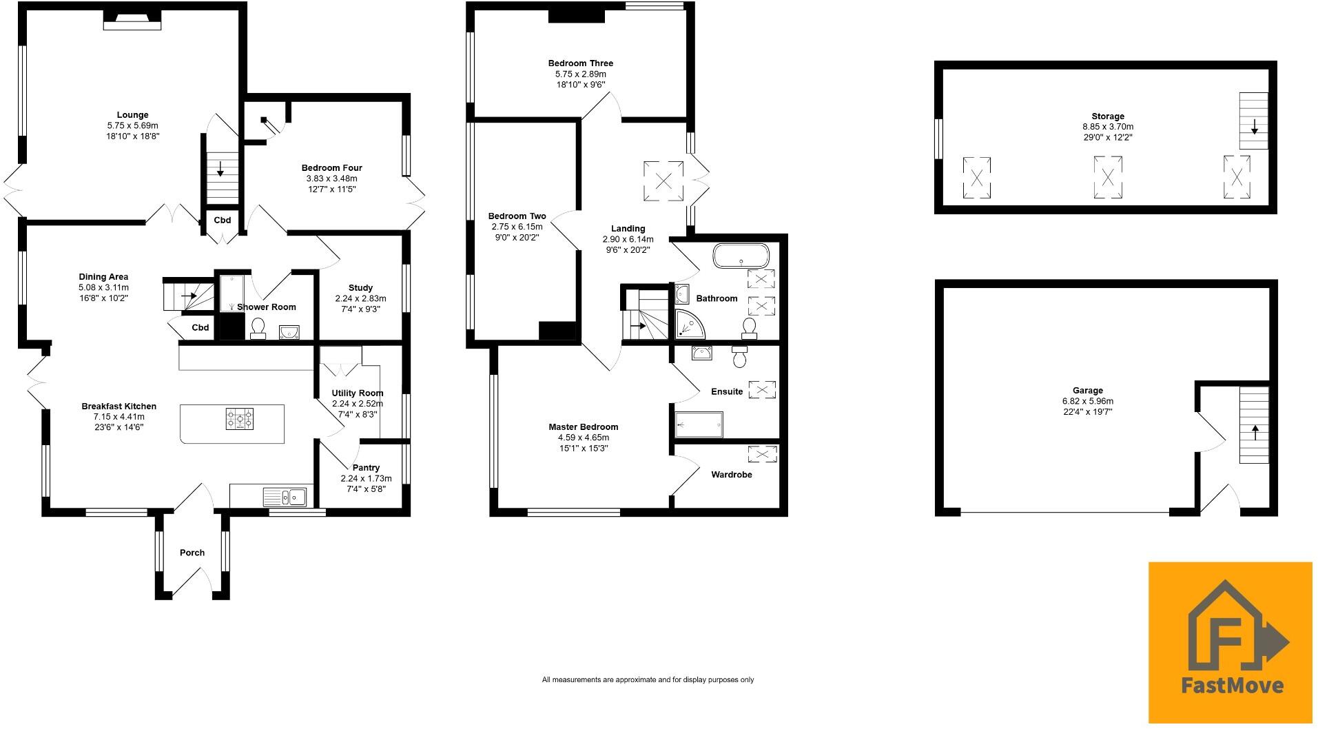
This property in Rowley Lane, Lepton, Huddersfield presents itself as a well-maintained family home. The images showcase a recent renovation or modernisation, with a stylish, contemporary kitchen and bathrooms. Open-plan living areas with features such as a wood-burning stove and a sunroom extension add to the appeal. The home benefits from at least four bedrooms and three bathrooms, suggesting considerable living space. The exterior shows a substantial garden. The overall impression is one of quality and comfort. However, the lack of detailed plot size information and a comparison with similar properties of accurately known sizes and sqft prevents a conclusive statement on whether this is outstanding value. The location is convenient with a nearby primary school. Train connections might require a short drive. The property’s price point is high compared to the available nearby data. A more detailed comparative market analysis is needed to judge the precise value, considering the limited property information provided.
Therefore, we give this property 7 / 10. *Disclaimer: This is our option and does constitute a recommendation or financial advice. Do your own research. *
- Price
- 7
- Condition
- 9
- Location
- 7
- Land
- 8
- Bedrooms
- 4
- Bathrooms
- 3
- Sqft (est)
- 1,639.02
The heatmap indicates the level of crime in the area. The color of the heatmap indicates the crime severity and recency.
Metrics Year-on-Year
- Average area value
- 267,583.00 £Decreased by 12.45 %
- Est sale value
- 603,159.36 £Increased by 26.46 %
- Average area rental value
- 1,292.00 £/moIncreased by 62.31 %
- Est letting value
- 1,639.02 £/mo
- Est rental Yield
- 5.79 %Increased by 84.98 %
- Crime Rate
- 11.00 %Unchanged by 0.00 %
Agent Activity
Fastmove created the listing.
Nearby Schools
| Name | Type | Ofsted | Distance |
|---|---|---|---|
| Rowley Lane Junior Infant And Nursery School | Community School | Good | 0.33 KM |
| Lepton Cofe Primary Academy | Academy Converter | 0.78 KM | |
| Highburton Church Of England Voluntary Controlled First School | Voluntary Controlled School | Good | 1.17 KM |
| Kirkburton Middle School | Academy Converter | Serious Weaknesses | 2.28 KM |
| Kirkburton Church Of England Voluntary Aided First School | Voluntary Aided School | Good | 2.47 KM |
Images
Nearby Streets
| Name | Average Price | Average Sqft | Distance |
|---|---|---|---|
| Longdon Walk | £ 0 | 0 | 0.00 KM |
| Greave House Lane | £ 0 | 0 | 0.00 KM |
| Sycamore Close | £ 240,000 | 0 | 0.00 KM |
| Spring Grove | £ 0 | 0 | 0.00 KM |
| Croft Flat Drive | £ 0 | 0 | 0.00 KM |
Nearby Transport
| Name | NLC | TLC | Distance |
|---|---|---|---|
| Stocksmoor | 8451 | SSM | 3.89 KM |
| Shepley | 8448 | SPY | 4.45 KM |
| Mirfield | 8518 | MIR | 5.40 KM |
| Deighton | 8441 | DHN | 6.18 KM |
| Brockholes | 8429 | BHS | 7.06 KM |
Nearby Listings
| Address | Price | Type | Score | Distance |
|---|---|---|---|---|
| Rowley Lane, Lepton, Huddersfield, HD8 | £ 850,000 | BUY | 7 / 10 | 0.00 KM |
| Rowley Lane, Fenay Bridge, HD8 | £ 1,000,000 | BUY | 7 / 10 | 0.01 KM |
| Rowley Lane, Fenay Bridge, HD8 | £ 400,000 | BUY | 7 / 10 | 0.11 KM |
| Clough Park, Fenay Bridge, HD8 | £ 350,000 | BUY | 7 / 10 | 0.12 KM |
| Clough Park, Fenay Bridge, Huddersfield | £ 375,000 | BUY | 6 / 10 | 0.16 KM |
Nearby Properties
| Address | Price | Distance |
|---|---|---|
| 65 Rowley Lane | £ 350,000 | 0.00 KM |
| 59 Rowley Lane | £ 157,000 | 0.00 KM |
| Polighan House | £ 515,000 | 0.00 KM |
| 49 Rowley Lane | £ 150,000 | 0.00 KM |
| 12 Rowley Lane | £ 107,500 | 0.07 KM |