Richmond Road, Pontnewydd, NP44
By Number One Real Estate
£ 170,000
Reviews
3 out of 5 stars
Number One Real Estate says ..
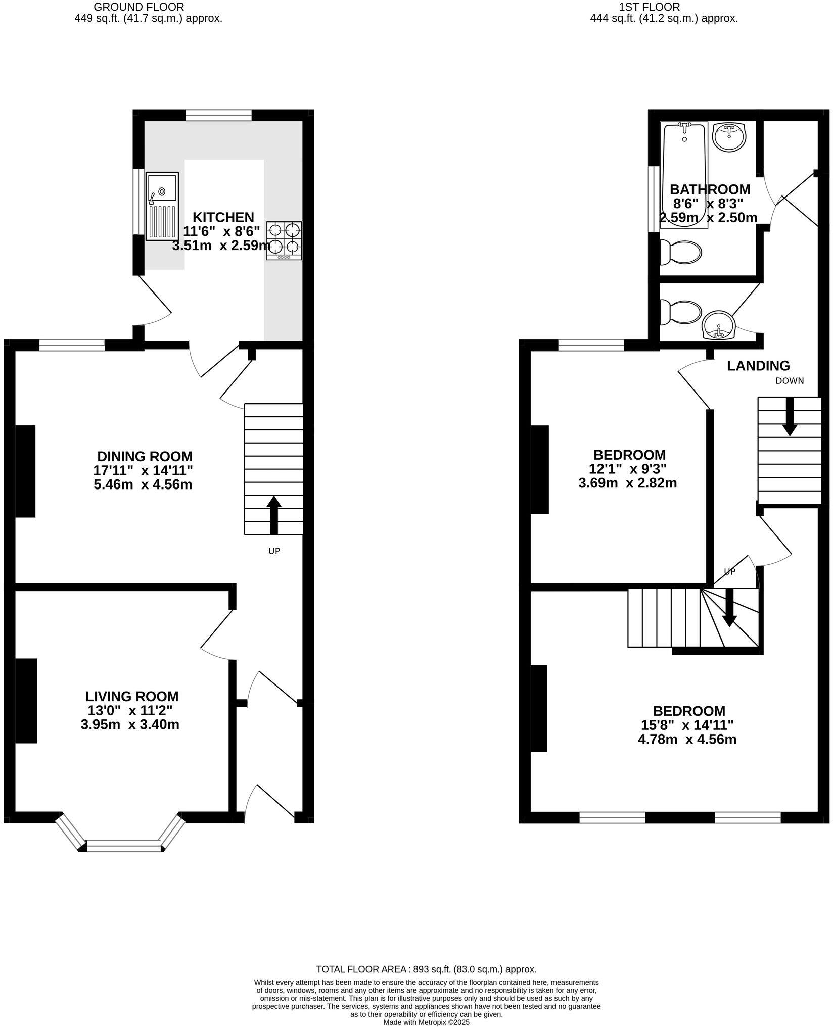
**NO UPPER CHAIN**MID TERRACE**TWO DOUBLE BEDROOMS**LIVING ROOM**DINING ROOM**KITCHEN**FAMILY BATHROOM**GOOD SIZED GARDEN**
Property Oracle says ..
Therefore, we give this property 7 / 10. *Disclaimer: This is our option and does constitute a recommendation or financial advice. Do your own research. *
- Price
- 9
- Condition
- 6
- Location
- 7
- Land
- 6
- Bedrooms
- 2
- Bathrooms
- 1
- Sqft (est)
- 893.00
The heatmap indicates the level of crime in the area. The color of the heatmap indicates the crime severity and recency.
Metrics Year-on-Year
- Average area value
- 283,000.00 £Decreased by 21.70 %
- Est sale value
- 339,340.00 £Increased by 38.69 %
- Average area rental value
- 1,134.00 £/moIncreased by 19.24 %
- Est letting value
- 893.00 £/mo
- Est rental Yield
- 4.81 %Increased by 52.22 %
- Crime Rate
- 9.00 %Unchanged by 0.00 %
from 361,433.00 £
from 244,682.00 £
from 951.00 £/mo
from 0.00 £/mo
from 3.16 %
from 9.00 %
Agent Activity
Number One Real Estate created the listing.
Nearby Schools
| Name | Type | Ofsted | Distance |
|---|---|---|---|
| Maendy Primary School | Welsh Establishment | 0.46 KM | |
| Pontnewydd Primary School | Welsh Establishment | 0.82 KM | |
| St David'S R.C. Jnr. & Inf. School | Welsh Establishment | 0.89 KM | |
| Our Lady Of The Angels R.C School | Welsh Establishment | 1.54 KM | |
| Ysgol Gymraeg Cwmbran | Welsh Establishment | 1.74 KM |
Images
Nearby Streets
| Name | Average Price | Average Sqft | Distance |
|---|---|---|---|
| Richmond Place | £ 180,000 | 0 | 0.00 KM |
| Richmond Road | £ 153,333 | 0 | 0.00 KM |
| Russell Street | £ 160,000 | 0 | 0.00 KM |
| Richmond Close | £ 200,000 | 0 | 0.00 KM |
| New Street | £ 156,250 | 0 | 0.00 KM |
Nearby Transport
| Name | NLC | TLC | Distance |
|---|---|---|---|
| Cwmbran | 3738 | CWM | 1.24 KM |
| Pontypool And New Inn | 3744 | PPL | 4.16 KM |
| Newport (South Wales) | 3674 | NWP | 8.64 KM |
| Rogerstone | 9921 | ROR | 8.68 KM |
| Pye Corner | 1663 | PYE | 9.29 KM |
Nearby Listings
| Address | Price | Type | Score | Distance |
|---|---|---|---|---|
| Richmond Road, Pontnewydd, NP44 | £ 170,000 | BUY | 7 / 10 | 0.00 KM |
| Richmond Road, Pontnewydd, Cwmbran, Torfaen, NP44 | £ 170,000 | BUY | 6 / 10 | 0.04 KM |
| Richmond Road, Pontnewydd, Cwmbran | £ 180,000 | BUY | 7 / 10 | 0.04 KM |
| New Street, Pontnewydd, NP44 | £ 160,000 | BUY | Unknown | 0.13 KM |
| New Street, Pontnewydd, Cwmbran | £ 180,000 | BUY | 6 / 10 | 0.15 KM |
Nearby Properties
| Address | Price | Distance |
|---|---|---|
| 37 Richmond Road | £ 112,500 | 0.00 KM |
| 19 Richmond Road | £ 160,000 | 0.00 KM |
| 47 Richmond Road | £ 114,500 | 0.00 KM |
| 35 Richmond Road | £ 120,000 | 0.00 KM |
| 53 Richmond Road | £ 58,000 | 0.00 KM |