Craigllwyn, nr Oswestry.
Halls Estate Agents logo

Craigllwyn, nr Oswestry.

By Halls Estate Agents

£ 235,000

Reviews

2 out of 5 stars

Halls Estate Agents says ..

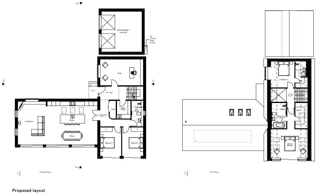
A unique development opportunity having Full Planning Permission approved for demolition and replacement of the existing dwelling with an impressive architect-designed contemporary house (ext.to around 220 sqm / 2368 sqft) enjoying super elevated views over undulating countryside, yet convenient ...

Property Oracle says ..

Therefore, we give this property 5 / 10. *Disclaimer: This is our option and does constitute a recommendation or financial advice. Do your own research. *

Price
6
Condition
3
Location
7
Land
7
Bedrooms
4
Bathrooms
3

The heatmap indicates the level of crime in the area. The color of the heatmap indicates the crime severity and recency.

Metrics Year-on-Year

Average area value
243,278.00 £
Decreased by 3.15 %
from 251,196.00 £
Average area rental value
1,186.00 £/mo
Increased by 12.42 %
from 1,055.00 £/mo
Est rental Yield
5.85 %
Increased by 16.07 %
from 5.04 %
Crime Rate
0.00 %
from 0.00 %

Agent Activity

  • Halls Estate Agents created the listing.

Nearby Schools

NameTypeOfstedDistance
Trefonen Cofe Primary SchoolVoluntary Controlled SchoolGood3.87 KM
Ysgol Bro CynllaithWelsh Establishment4.77 KM
Oswestry SchoolOther Independent School7.80 KM
Selattyn Cofe Primary SchoolVoluntary Controlled SchoolGood7.87 KM
Llansantffraid C.I.W.A. SchoolWelsh Establishment7.90 KM

Images

1_3247_prv_8_prv_9_prv_Balancer.jpg 1_3250_prv_1_prv_2_prv_Balancer.jpg 1_3256_prv_7_prv_8_prv_Balancer.jpg 1_3081_prv_2_prv_3_prv_4_prv_Balancer.jpg Proposed elvations.jpg Proposed layout.jpg 1_3077_prv_78_prv_79_prv_80_prv_Balancer.jpg 1_3229_prv_30_prv_31_prv_Balancer.jpg 1_3232_prv_3_prv_4_prv_Balancer.jpg 1_3235_prv_6_prv_7_prv_Balancer.jpg 1_3238_prv_39_prv_40_prv_Balancer.jpg 1_3241_prv_2_prv_3_prv_Balancer.jpg 1_3244_prv_5_prv_6_prv_Balancer.jpg 1_3253_prv_4_prv_5_prv_Balancer.jpg Site plan.jpg

Nearby Streets

NameAverage PriceAverage SqftDistance
Plas Pentre £ 000.00 KM

Nearby Listings

AddressPriceTypeScoreDistance
Craigllwyn, nr Oswestry. £ 235,000BUY5 / 100.00 KM
Craigllwyn, nr Oswestry. £ 435,000BUY7 / 100.04 KM
Craigllwyn, Oswestry £ 950,000BUY7 / 100.83 KM
Plas Pentre, Cefn Court - A beautiful barn conversion with 0.68 Acre £ 800,000BUY7 / 100.86 KM