Leicester Avenue, Rochford, Essex, SS4
By Abbotts
£ 350,000
Reviews
3 out of 5 stars
Abbotts says ..
The story begins with a quiet street, where a newly refurbished semi-detached bungalow waits to welcome its next chapter. Its fresh façade hints at the transformation inside, where soft greys and crisp whites create a calm, contemporary canvas for everyday living. Step through t...
Property Oracle says ..
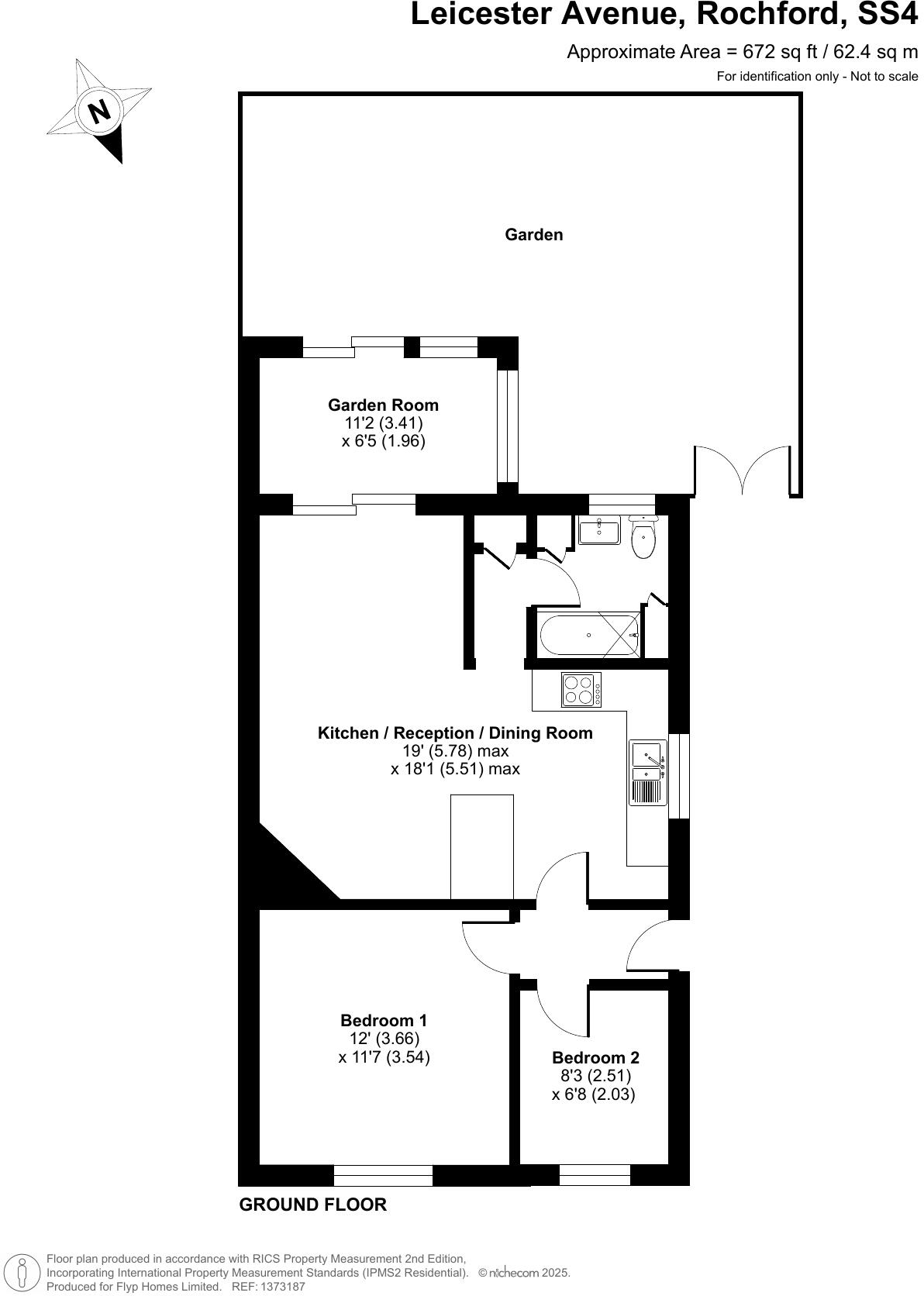
This is a two-bedroom bungalow on Leicester Avenue in Rochford, Essex. The property benefits from a modern interior, a well-maintained garden with a new decking area, and proximity to transportation links and schools. While the property appears to be in good condition, the asking price seems slightly above the average for the area.
Therefore, we give this property 7 / 10. *Disclaimer: This is our option and does constitute a recommendation or financial advice. Do your own research. *
- Price
- 6
- Condition
- 8
- Location
- 7
- Land
- 7
- Bedrooms
- 2
- Bathrooms
- 1
The heatmap indicates the level of crime in the area. The color of the heatmap indicates the crime severity and recency.
Metrics Year-on-Year
- Average area value
- 319,167.00 £Decreased by 12.74 %
- Average area rental value
- 1,892.00 £/moIncreased by 46.44 %
- Est rental Yield
- 7.11 %Increased by 67.69 %
- Crime Rate
- 12.00 %Unchanged by 0.00 %
Agent Activity
Abbotts created the listing.
Nearby Schools
| Name | Type | Ofsted | Distance |
|---|---|---|---|
| Poplar Adolescent Unit | Pupil Referral Unit | Good | 1.17 KM |
| Rochford Primary And Nursery School | Academy Converter | Good | 1.39 KM |
| Waterman Primary Academy | Academy Converter | Good | 1.79 KM |
| Roc1 Wishing Well Family Hub Delivery Site | Children's Centre | 1.79 KM | |
| St Teresa'S Catholic Primary School | Academy Converter | 2.00 KM |
Images
Nearby Streets
| Name | Average Price | Average Sqft | Distance |
|---|---|---|---|
| Bradley Way | £ 0 | 0 | 0.00 KM |
| College Gardens | £ 0 | 0 | 0.00 KM |
| St Mark's Field | £ 0 | 0 | 0.00 KM |
| FP11 Rectory Road to Ironwell Lane PROW 285 | £ 0 | 0 | 0.00 KM |
| Manners Way | £ 220,000 | 0 | 0.00 KM |
Nearby Transport
| Name | NLC | TLC | Distance |
|---|---|---|---|
| Southend Airport | 4787 | SIA | 0.64 KM |
| Rochford | 6885 | RFD | 1.18 KM |
| Prittlewell | 7419 | PRL | 2.51 KM |
| Southend Victoria | 7420 | SOV | 3.54 KM |
| Southend Central | 7456 | SOC | 4.03 KM |
Nearby Listings
| Address | Price | Type | Score | Distance |
|---|---|---|---|---|
| Leicester Avenue, Rochford, Essex, SS4 | £ 350,000 | BUY | 7 / 10 | 0.00 KM |
| Leicester Avenue, Rochford, Essex, SS4 | £ 350,000 | BUY | 7 / 10 | 0.00 KM |
| Leicester Avenue, Rochford, SS4 | £ 217,750 | BUY | 6 / 10 | 0.00 KM |
| Leicester Avenue, Rochford, Essex | £ 350,000 | BUY | Unknown | 0.01 KM |
| Leicester Avenue, Rochford, SS4 | £ 250,000 | BUY | 6 / 10 | 0.01 KM |
Nearby Properties
| Address | Price | Distance |
|---|---|---|
| 14 Leicester Avenue | £ 335,000 | 0.00 KM |
| 24 Leicester Avenue | £ 210,000 | 0.00 KM |
| 31 Leicester Avenue | £ 195,000 | 0.00 KM |
| 44 Leicester Avenue | £ 255,000 | 0.00 KM |
| 16 Leicester Avenue | £ 205,000 | 0.00 KM |