Findon Hill, Sacriston, DH7
By Copeland Residential
£ 100,000
Reviews
3 out of 5 stars
Copeland Residential says ..
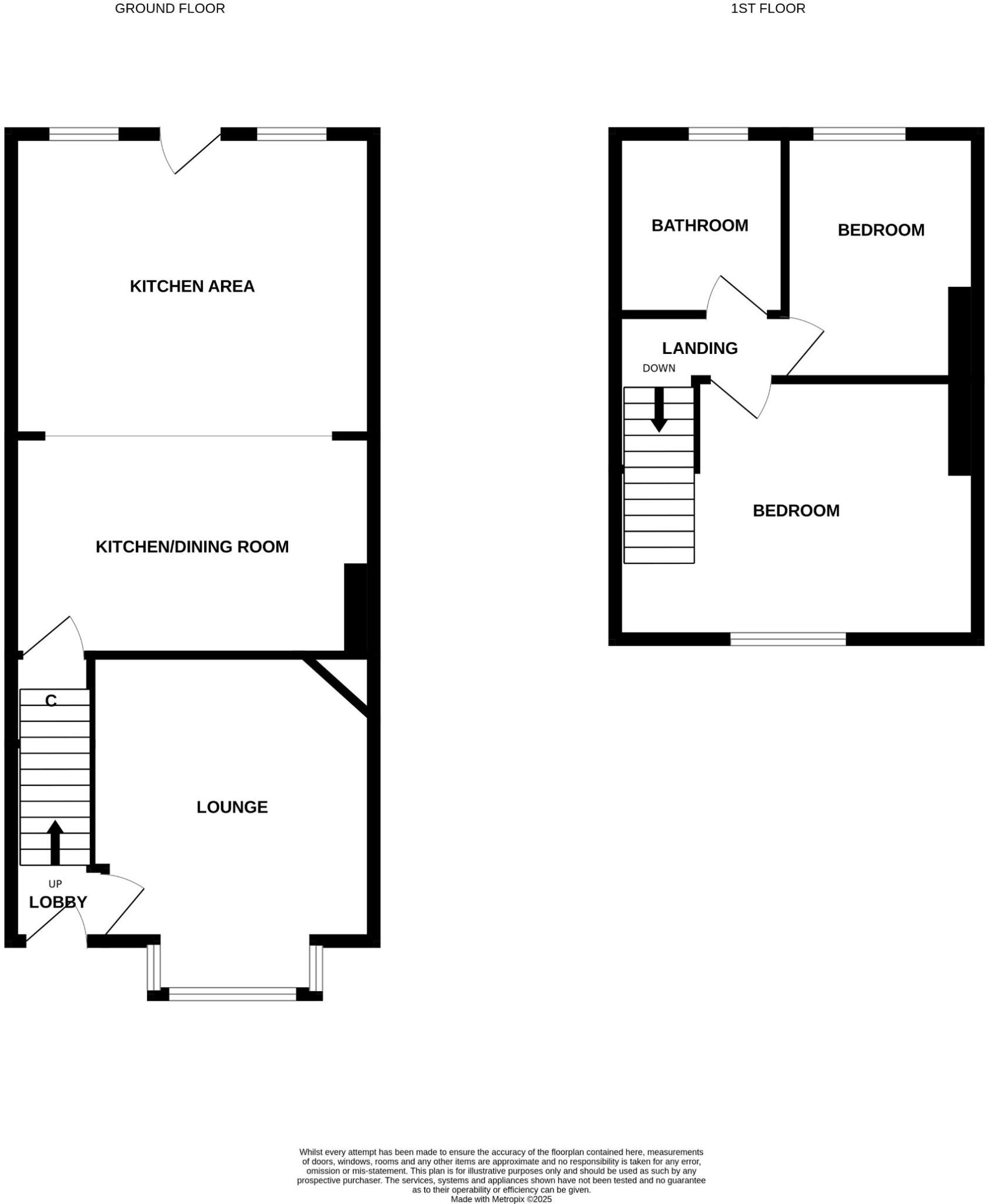
NO CHAIN. EXTENDED GROUND FLOOR WITH LARGE KITCHEN / DINER. 2 DOUBLE BEDROOMS. RECENT COMBINATION BOILER. Offered chain free, this extended 2 bed mid terrace house provides a great living space, 2 double bedrooms and excellent access to Durham City.
Property Oracle says ..
Therefore, we give this property 6 / 10. *Disclaimer: This is our option and does constitute a recommendation or financial advice. Do your own research. *
- Price
- 8
- Condition
- 5
- Location
- 7
- Land
- 6
- Bedrooms
- 2
- Bathrooms
- 1
The heatmap indicates the level of crime in the area. The color of the heatmap indicates the crime severity and recency.
Metrics Year-on-Year
- Average area value
- 211,000.00 £Increased by 2.49 %
- Average area rental value
- 961.00 £/moDecreased by 14.43 %
- Est rental Yield
- 5.47 %Decreased by 16.49 %
- Crime Rate
- 3.00 %Unchanged by 0.00 %
from 205,865.00 £
from 1,123.00 £/mo
from 6.55 %
from 3.00 %
Agent Activity
Copeland Residential created the listing.
Nearby Schools
| Name | Type | Ofsted | Distance |
|---|---|---|---|
| Sacriston Academy | Academy Sponsor Led | 0.69 KM | |
| St Bede'S Catholic Primary School, Sacriston | Academy Converter | 1.18 KM | |
| Witton Gilbert Primary School | Community School | Good | 1.99 KM |
| Nettlesworth Primary School | Community School | Good | 2.53 KM |
| Edmondsley Primary School | Community School | Good | 2.77 KM |
Images
Nearby Streets
| Name | Average Price | Average Sqft | Distance |
|---|---|---|---|
| Abbey Mews | £ 0 | 0 | 0.00 KM |
| Lilac Avenue | £ 0 | 0 | 0.00 KM |
| Highfield | £ 0 | 0 | 0.00 KM |
| Meadow View | £ 0 | 0 | 0.00 KM |
| Croft Street | £ 0 | 0 | 0.00 KM |
Nearby Transport
| Name | NLC | TLC | Distance |
|---|---|---|---|
| Durham | 7745 | DHM | 5.92 KM |
| Chester-Le-Street | 7736 | CLS | 6.58 KM |
Nearby Listings
| Address | Price | Type | Score | Distance |
|---|---|---|---|---|
| Findon Hill, Sacriston, DH7 | £ 100,000 | BUY | 6 / 10 | 0.00 KM |
| Holmesland Villas, Sacriston, Durham, County Durham, DH7 | £ 210,000 | BUY | 7 / 10 | 0.05 KM |
| Holmesland Villas, Sacriston, Durham, DH7 | £ 230,000 | BUY | Unknown | 0.08 KM |
| 18 Findon Hill, Sacriston, Durham, County Durham, DH7 | £ 20,000 | BUY | 5 / 10 | 0.09 KM |
| Findon Hill, Sacriston, Durham, DH7 | £ 125,000 | BUY | 6 / 10 | 0.10 KM |
Nearby Properties
| Address | Price | Distance |
|---|---|---|
| 2 Holmesland Villas | £ 145,500 | 0.05 KM |
| 9 Holmesland Villas | £ 180,000 | 0.05 KM |
| 1 Holmesland Villas | £ 160,000 | 0.05 KM |
| 8 Holmesland Villas | £ 160,000 | 0.05 KM |
| 16 Findon Hill | £ 93,000 | 0.06 KM |