Marylands Road, Maida Vale, London, W9
By Foxtons
£ 550,000
Reviews
2 out of 5 stars
Foxtons says ..
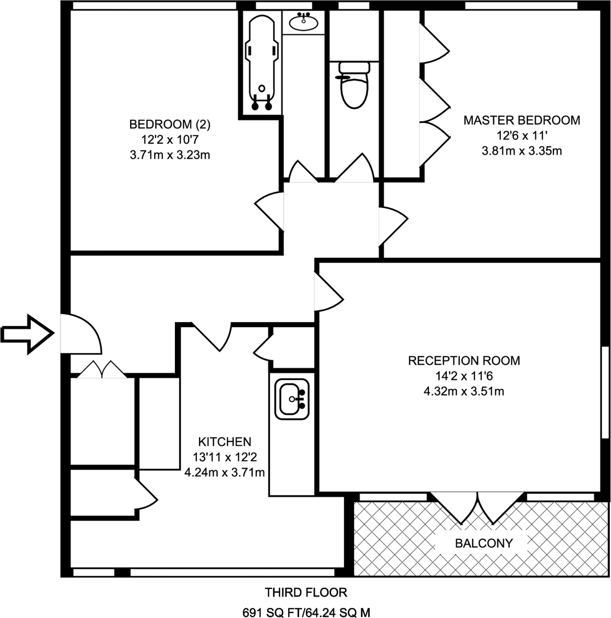
This two bedroom flat which is placed on the third floor of a purpose-built apartment building offers great living space in a fantastic residential area.
Property Oracle says ..
This is a two-bedroom flat in Maida Vale, London. The location is good, with access to local amenities and schools. However, the property is in need of renovation, which is reflected in the asking price. The flat does not have any land associated with it. Overall, this property could be a good investment for someone willing to undertake the necessary renovations.
Therefore, we give this property 4 / 10. *Disclaimer: This is our option and does constitute a recommendation or financial advice. Do your own research. *
- Price
- 7
- Condition
- 3
- Location
- 7
- Land
- 1
- Bedrooms
- 2
- Bathrooms
- 1
- Sqft (est)
- 691.47
The heatmap indicates the level of crime in the area. The color of the heatmap indicates the crime severity and recency.
Metrics Year-on-Year
- Average area value
- 689,089.00 £Decreased by 2.95 %
- Est sale value
- 724,660.56 £Increased by 51.23 %
- Average area rental value
- 2,316.00 £/moIncreased by 5.08 %
- Est letting value
- 2,074.41 £/moIncreased by 50.00 %
- Est rental Yield
- 4.03 %Increased by 8.33 %
- Crime Rate
- 5.00 %Unchanged by 0.00 %
Agent Activity
Foxtons created the listing.
Nearby Schools
| Name | Type | Ofsted | Distance |
|---|---|---|---|
| Paddington Academy | Academy Sponsor Led | Outstanding | 0.15 KM |
| Ark Atwood Primary Academy | Free Schools | Outstanding | 0.21 KM |
| Our Lady Of Dolours Catholic Primary | Voluntary Aided School | Good | 0.38 KM |
| Westminster Academy | Academy Sponsor Led | Outstanding | 0.40 KM |
| St Mary Magdalene Cofe Primary School | Voluntary Aided School | Good | 0.41 KM |
Images
Nearby Streets
| Name | Average Price | Average Sqft | Distance |
|---|---|---|---|
| Thorngate Road | £ 800,000 | 0 | 0.00 KM |
| Sutherland Avenue | £ 0 | 0 | 0.00 KM |
| Chippenham Mews | £ 800,000 | 0 | 0.00 KM |
| Rowington Close | £ 0 | 0 | 0.00 KM |
| Formosa Street | £ 0 | 0 | 0.00 KM |
Nearby Transport
| Name | NLC | TLC | Distance |
|---|---|---|---|
| Kilburn High Road | 1415 | KBN | 1.44 KM |
| Queens Park (London) | 1419 | QPW | 1.70 KM |
| Paddington | 3087 | PAD | 2.08 KM |
| South Hampstead | 1451 | SOH | 2.46 KM |
| Brondesbury | 1437 | BSY | 2.53 KM |
Nearby Listings
| Address | Price | Type | Score | Distance |
|---|---|---|---|---|
| Marylands Road, Maida Vale, London, W9 | £ 495,000 | BUY | Unknown | 0.00 KM |
| Marylands Road, Maida Vale, London, W9 | £ 550,000 | BUY | 4 / 10 | 0.00 KM |
| Surrendale Place, Little Venice, London | £ 1,100,000 | BUY | 7 / 10 | 0.03 KM |
| Sutherland Avenue, London, W9 | £ 895,000 | BUY | 6 / 10 | 0.06 KM |
| Sutherland Avenue, Maida Vale | £ 700,000 | BUY | 7 / 10 | 0.07 KM |
Nearby Properties
| Address | Price | Distance |
|---|---|---|
| 13c Surrendale Place | £ 146,000 | 0.04 KM |
| 13b Surrendale Place | £ 610,000 | 0.04 KM |
| 12a Surrendale Place | £ 2,050,000 | 0.04 KM |
| 13d Surrendale Place | £ 305,000 | 0.04 KM |
| 13a Surrendale Place | £ 685,700 | 0.04 KM |