Lordship Park, London
By Nathan K Real Estate
£ 550,000
Reviews
3 out of 5 stars
Nathan K Real Estate says ..
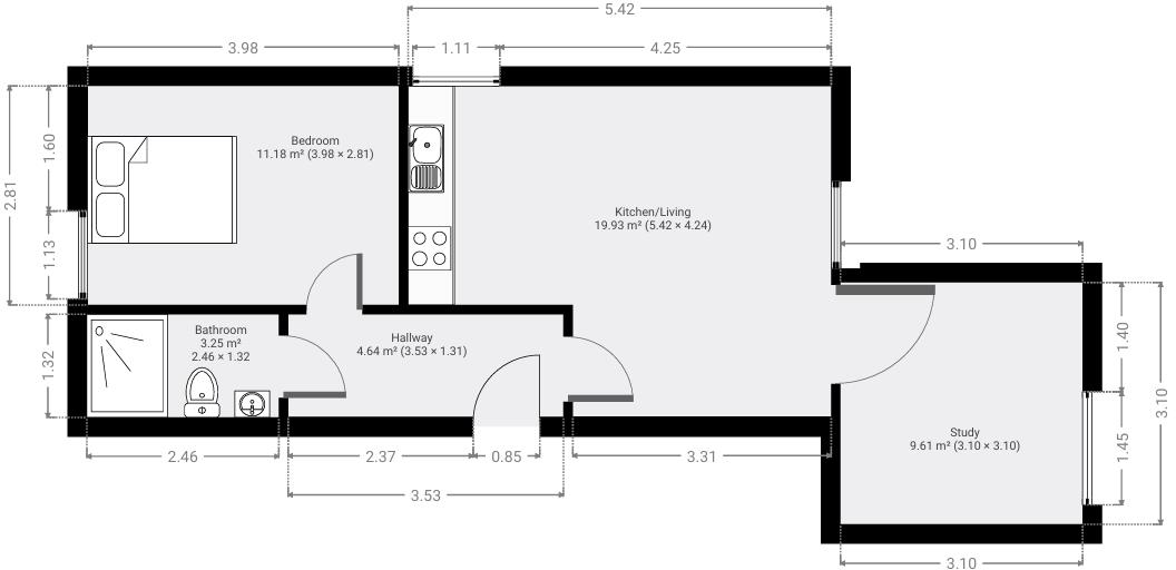
Nestled in the charming area of Lordship Park, London, this delightful Victorian apartment offers a perfect blend of modern living and period charm. Originally built in 1900, this newly refurbished first-floor conversion boasts a spacious 516 square feet of well-designed accommodation. .
Property Oracle says ..
This is a 2-bedroom apartment located on Lordship Park in Stamford Hill West, Hackney, London. The property is listed for £550,000 and has a square footage of 523.23. Nearby schools include Grazebrook Primary School (rated Outstanding) and St Mary’S Church Of England Primary School (rated Good). Transportation options include Harringay Green Lanes and Stamford Hill, both on the London Overground. The average price in the area is £683,165, and the average price per square foot is £377. The property appears to be reasonably priced given its location and size. However, it has no land/garden. The property is located close to several schools and transportation links, making it a convenient location for families and commuters.
Therefore, we give this property 6 / 10. *Disclaimer: This is our option and does constitute a recommendation or financial advice. Do your own research. *
- Price
- 7
- Condition
- 7
- Location
- 7
- Land
- 3
- Bedrooms
- 2
- Bathrooms
- 1
- Sqft (est)
- 523.23
The heatmap indicates the level of crime in the area. The color of the heatmap indicates the crime severity and recency.
Metrics Year-on-Year
- Average area value
- 683,165.00 £Decreased by 33.92 %
- Est sale value
- 197,257.71 £Increased by 12.20 %
- Average area rental value
- 1,373.00 £/moDecreased by 34.56 %
- Est letting value
- 0.00 £/mo
- Est rental Yield
- 2.41 %Decreased by 1.23 %
- Crime Rate
- 1.00 %Unchanged by 0.00 %
Agent Activity
Nathan K Real Estate created the listing.
Nearby Schools
| Name | Type | Ofsted | Distance |
|---|---|---|---|
| Woodberry Down Children'S Centre | Children's Centre | 0.62 KM | |
| Grazebrook Primary School | Community School | Outstanding | 0.70 KM |
| Beis Chinuch Lebonos Girls School | Other Independent School | Requires improvement | 0.73 KM |
| St Mary'S Church Of England Primary School, Stoke Newington | Voluntary Aided School | Good | 0.92 KM |
| Betty Layward Primary School | Community School | Good | 0.93 KM |
Images
Nearby Streets
| Name | Average Price | Average Sqft | Distance |
|---|---|---|---|
| Greenway Close | £ 775,000 | 0 | 0.00 KM |
| Sim Street | £ 0 | 0 | 0.00 KM |
| Riversdale Road | £ 887,857 | 0 | 0.00 KM |
| Datchworth Court | £ 0 | 0 | 0.00 KM |
| Springpark Drive | £ 0 | 0 | 0.00 KM |
Nearby Transport
| Name | NLC | TLC | Distance |
|---|---|---|---|
| Harringay Green Lanes | 7401 | HRY | 1.69 KM |
| Stamford Hill | 6968 | SMH | 1.78 KM |
| Canonbury | 1441 | CNN | 1.80 KM |
| Stoke Newington | 6934 | SKW | 1.83 KM |
| Finsbury Park | 6119 | FPK | 1.86 KM |
Nearby Listings
| Address | Price | Type | Score | Distance |
|---|---|---|---|---|
| Lordship Park, London | £ 550,000 | BUY | 6 / 10 | 0.00 KM |
| Lordship Park, London | £ 625,000 | BUY | 6 / 10 | 0.01 KM |
| Lordship Park, London | £ 585,000 | BUY | 6 / 10 | 0.03 KM |
| Lordship Park, London | £ 775,000 | BUY | 5 / 10 | 0.06 KM |
| Lordship Park, London, N16 | £ 400,000 | BUY | 7 / 10 | 0.07 KM |
Nearby Properties
| Address | Price | Distance |
|---|---|---|
| 45e Lordship Park | £ 386,000 | 0.06 KM |
| 45b Lordship Park | £ 450,000 | 0.06 KM |
| 37d Lordship Park | £ 250,000 | 0.06 KM |
| 15c Lordship Park | £ 569,000 | 0.06 KM |
| 13d Lordship Park | £ 601,500 | 0.06 KM |