Fidden Avenue, Northwich, Cheshire, CW9 7ZB
By Miller Metcalfe
£ 197,500
Reviews
3 out of 5 stars
Miller Metcalfe says ..
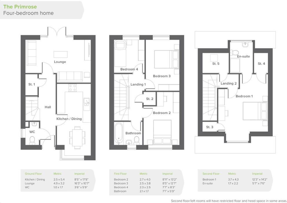
Offered on 50% Shared Ownership The Primrose is a stylish and spacious family home set over three floors. The ground floor of this stunning new home features a separate lounge area and a kitchen/diner with vinyl flooring and filled with high-quality integrated appliances.
Property Oracle says ..
This is a semi-detached property located in Northwich, Cheshire. The house appears to be in excellent condition, with modern interiors and a well-maintained garden. The property is situated within a reasonable distance of local amenities, including schools and transportation links. The asking price of £197,500 seems competitive compared to the average property price in the area. Overall, this property presents a good opportunity for potential buyers looking for a modern, well-located home.
Therefore, we give this property 7 / 10. *Disclaimer: This is our option and does constitute a recommendation or financial advice. Do your own research. *
- Price
- 8
- Condition
- 9
- Location
- 6
- Land
- 7
- Bedrooms
- 4
- Bathrooms
- 2
The heatmap indicates the level of crime in the area. The color of the heatmap indicates the crime severity and recency.
Metrics Year-on-Year
- Average area value
- 258,571.00 £Decreased by 18.16 %
- Average area rental value
- 1,230.00 £/moIncreased by 21.30 %
- Est rental Yield
- 5.71 %Increased by 48.31 %
- Crime Rate
- 3.00 %Unchanged by 0.00 %
Agent Activity
Miller Metcalfe created the listing.
Nearby Schools
| Name | Type | Ofsted | Distance |
|---|---|---|---|
| The Rudheath Senior Academy | Academy Sponsor Led | Good | 0.94 KM |
| Victoria Road Primary School | Academy Converter | Requires improvement | 1.11 KM |
| Victoria Road Children'S Centre | Children's Centre | 1.20 KM | |
| Rudheath Primary Academy And Nursery | Academy Sponsor Led | Good | 1.54 KM |
| Witton Church Walk Cofe Aided Nursery And Primary School | Voluntary Aided School | Good | 1.77 KM |
Images
Nearby Streets
| Name | Average Price | Average Sqft | Distance |
|---|---|---|---|
| Fidden Avenue | £ 0 | 0 | 0.00 KM |
| Vale View | £ 240,000 | 0 | 0.00 KM |
| Marple Road | £ 160,000 | 0 | 0.00 KM |
| William Street | £ 140,000 | 0 | 0.00 KM |
| Salt Drive | £ 326,067 | 0 | 0.00 KM |
Nearby Transport
| Name | NLC | TLC | Distance |
|---|---|---|---|
| Northwich | 2326 | NWI | 0.71 KM |
| Lostock Gralam | 2307 | LTG | 2.89 KM |
| Greenbank | 2325 | GBK | 4.96 KM |
| Hartford (Cheshire) | 2230 | HTF | 7.31 KM |
| Winsford | 2269 | WSF | 7.88 KM |
Nearby Listings
| Address | Price | Type | Score | Distance |
|---|---|---|---|---|
| Fidden Avenue, Northwich, Cheshire, CW9 7ZB | £ 197,500 | BUY | 7 / 10 | 0.00 KM |
| Fidden Avenue, Northwich, Cheshire, CW9 7ZA | £ 152,500 | BUY | 6 / 10 | 0.00 KM |
| Fidden Avenue, Northwich, Cheshire, CW9 7ZA | £ 160,000 | BUY | 7 / 10 | 0.00 KM |
| Plot 60, Orchard View, Northwich | £ 320,000 | BUY | 6 / 10 | 0.15 KM |
| Plot 14, Orchard View, Northwich | £ 305,000 | BUY | 7 / 10 | 0.15 KM |
Nearby Properties
| Address | Price | Distance |
|---|---|---|
| 63 James Street | £ 74,000 | 0.22 KM |
| 18 James Street | £ 90,500 | 0.22 KM |
| 45 James Street | £ 103,000 | 0.22 KM |
| 59 James Street | £ 48,000 | 0.22 KM |
| 36 James Street | £ 135,000 | 0.22 KM |