Rampton Baseley says ..
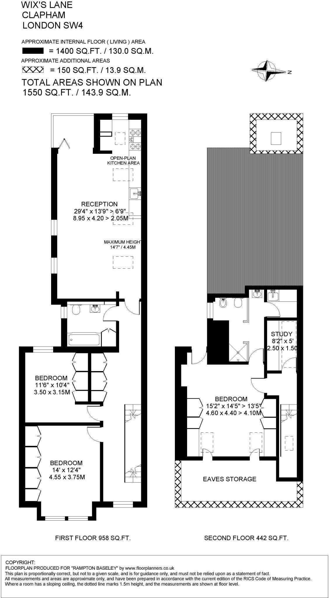
This fantastic, three-bedroom split-level flat is ideally positioned on a sought-after residential street close to Clapham Common in the area known as The Northside. Bright, airy and very well presented throughout, the living space is arranged over the upper floors of a Victorian conversion and m...
Property Oracle says ..
Therefore, we give this property 6 / 10. *Disclaimer: This is our option and does constitute a recommendation or financial advice. Do your own research. *
- Price
- 6
- Condition
- 8
- Location
- 8
- Land
- 3
- Bedrooms
- 3
- Bathrooms
- 2
- Sqft (est)
- 959.56
The heatmap indicates the level of crime in the area. The color of the heatmap indicates the crime severity and recency.
Metrics Year-on-Year
- Average area value
- 778,214.00 £Increased by 6.31 %
- Est sale value
- 907,743.76 £Decreased by 2.07 %
- Average area rental value
- 3,038.00 £/moIncreased by 13.91 %
- Est letting value
- 2,878.68 £/moUnchanged by 0.00 %
- Est rental Yield
- 4.68 %Increased by 7.09 %
- Crime Rate
- 3.00 %Unchanged by 0.00 %
from 732,014.00 £
from 926,934.96 £
from 2,667.00 £/mo
from 2,878.68 £/mo
from 4.37 %
from 3.00 %
Agent Activity
Rampton Baseley created the listing.
Nearby Schools
| Name | Type | Ofsted | Distance |
|---|---|---|---|
| Belleville Wix Academy | Academy Sponsor Led | Good | 0.11 KM |
| Eaton House The Manor School | Other Independent School | 0.15 KM | |
| Parkgate House School | Other Independent School | Good | 0.38 KM |
| Macaulay Church Of England Primary School | Voluntary Aided School | Outstanding | 0.40 KM |
| John Burns Primary School | Community School | Good | 0.75 KM |
Images
Nearby Streets
| Name | Average Price | Average Sqft | Distance |
|---|---|---|---|
| Lavender Hill | £ 0 | 0 | 0.00 KM |
| Beaufoy Road | £ 0 | 0 | 0.00 KM |
| Woodmere Close | £ 0 | 0 | 0.00 KM |
| Forth Bridge Road | £ 917,500 | 0 | 0.00 KM |
| Heather Close | £ 468,333 | 0 | 0.00 KM |
Nearby Transport
| Name | NLC | TLC | Distance |
|---|---|---|---|
| Queenstown Road (Battersea) | 5596 | QRB | 1.41 KM |
| Wandsworth Road | 5372 | WWR | 1.59 KM |
| Battersea Park | 5420 | BAK | 1.60 KM |
| Clapham High Street | 5301 | CLP | 2.06 KM |
| Clapham Junction | 5595 | CLJ | 2.14 KM |
Nearby Listings
| Address | Price | Type | Score | Distance |
|---|---|---|---|---|
| Wix's Lane, SW4 | £ 1,075,000 | BUY | 6 / 10 | 0.00 KM |
| Wix's Lane, London, SW4 | £ 750,000 | BUY | 6 / 10 | 0.02 KM |
| WIX'S LANE, SW4 | £ 1,250,000 | BUY | 6 / 10 | 0.02 KM |
| Wixs Lane, Clapham, London, SW4 | £ 1,100,000 | BUY | 6 / 10 | 0.05 KM |
| Wixs Lane, Clapham Common | £ 375,000 | BUY | 5 / 10 | 0.06 KM |
Nearby Properties
| Address | Price | Distance |
|---|---|---|
| 47 Wixs Lane | £ 782,100 | 0.03 KM |
| 49a Wixs Lane | £ 432,500 | 0.03 KM |
| 41a Wixs Lane | £ 332,250 | 0.03 KM |
| 45 Wixs Lane | £ 515,000 | 0.03 KM |
| 47a Wixs Lane | £ 680,000 | 0.03 KM |