Building Plot, Gartcows Road, Falkirk, FK1 5QT
By Castlebrae Sales and Letting Ltd
£ 99,500
Reviews
2 out of 5 stars
Castlebrae Sales and Letting Ltd says ..
Castlebrae are delighted to market this rarely available building plot which will appeal to self-builders and developers alike. The plot enjoys a charming location, conveniently placed on Gartcows Road, Falkirk.
Property Oracle says ..
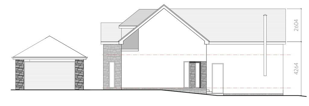
This listing presents a building plot located on Gartcows Road in Falkirk, Scotland. The plot is marketed towards self-builders and developers. While the listing lacks specific details regarding the plot’s dimensions, architectural drawings suggest a sizable area suitable for a new-build house. The property’s attractiveness hinges on the buyer’s ability to obtain the necessary planning permissions. Its proximity to Falkirk High train station is a definite positive, enhancing its appeal. The surrounding area appears to include a mix of housing types, suggesting a diverse community. The absence of detailed information on the plot’s size and the lack of comparable sales data makes it difficult to definitively assess the list price. Prospective buyers should conduct thorough due diligence, including investigating planning permissions and conducting comparative market analysis in the surrounding area before proceeding. Furthermore, the cost of construction for the house planned must be factored in to determine the ultimate financial feasibility and return on investment.
Therefore, we give this property 5 / 10. *Disclaimer: This is our option and does constitute a recommendation or financial advice. Do your own research. *
- Price
- 7
- Condition
- 1
- Location
- 7
- Land
- 6
- Bedrooms
- 0
- Bathrooms
- 0
The heatmap indicates the level of crime in the area. The color of the heatmap indicates the crime severity and recency.
Metrics Year-on-Year
- Average area value
- 490,000.00 £Decreased by 5.86 %
- Average area rental value
- 1,975.00 £/moIncreased by 83.72 %
- Est rental Yield
- 4.84 %Increased by 95.16 %
- Crime Rate
- 0.00 %
Agent Activity
Castlebrae Sales and Letting Ltd marked this listing as sold.
Castlebrae Sales and Letting Ltd created the listing.
Nearby Schools
| Name | Type | Ofsted | Distance |
|---|---|---|---|
| Oakwood School | Offshore Schools | 3.77 KM |
Images
Nearby Streets
| Name | Average Price | Average Sqft | Distance |
|---|---|---|---|
| Majors Place | £ 0 | 0 | 0.00 KM |
| Drossie Road | £ 0 | 0 | 0.00 KM |
| Hamilton Drive | £ 0 | 0 | 0.00 KM |
| Union Canal Towpath | £ 258,500 | 0 | 0.00 KM |
| Glenochil Road | £ 224,000 | 0 | 0.00 KM |
Nearby Transport
| Name | NLC | TLC | Distance |
|---|---|---|---|
| Falkirk High | 9931 | FKK | 0.21 KM |
| Falkirk Grahamston | 9930 | FKG | 1.28 KM |
| Camelon | 9878 | CMO | 3.12 KM |
| Larbert | 9876 | LBT | 5.32 KM |
| Polmont | 9936 | PMT | 8.61 KM |
Nearby Listings
| Address | Price | Type | Score | Distance |
|---|---|---|---|---|
| Building Plot, Gartcows Road, Falkirk, FK1 5QT | £ 99,500 | BUY | 5 / 10 | 0.00 KM |
| 30 Gartcows Road, FK1 5QT | £ 345,000 | BUY | 7 / 10 | 0.02 KM |
| Majors Place, Falkirk. FK1 5QS | £ 220,000 | BUY | 8 / 10 | 0.04 KM |
| 18, Albert Road, Falkirk, FK1 5LS | £ 359,000 | BUY | 7 / 10 | 0.06 KM |
| Albert Road, Falkirk, FK1 | £ 358,000 | BUY | 7 / 10 | 0.12 KM |