20 West Road, Saline, Dunfermline KY12 9UN
HA

20 West Road, Saline, Dunfermline KY12 9UN

By Harper & Stone Limited

£ 425,000

Reviews

3 out of 5 stars

Harper & Stone Limited says ..

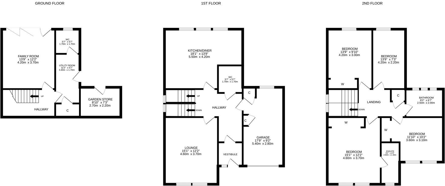
Harper & Stone are delighted to present to the market 20 West Road in Saline, a newly built property in 2023 boasting 170sqm of modern family living space laid out across three levels set within the small parish of Saline. The accommodation is presented as below: Upper Ground Fl...

Property Oracle says ..

This property is a newly built (2023), four-bedroom detached house located in Saline, Fife. The listing showcases a modern design with high-quality fixtures and fittings. The interior is presented in excellent condition, featuring a contemporary kitchen, multiple bathrooms and what appears to be a well-proportioned living space. The exterior shows a clean, modern aesthetic. The property also benefits from having an attached garage and a rear garden. However, more information is required on the size of the garden and surrounding amenities (schools, transportation links) to fully assess the location and the overall value proposition. The absence of price per sqft data in nearby listings limits the ability to provide a detailed price comparison. The provided images suggest a high quality of finish and attention to detail, making it an attractive property for family living. While the location in Saline is generally viewed favorably, additional information is needed on proximity to schools and transport to definitively determine the suitability to all buyers.

Therefore, we give this property 6 / 10. *Disclaimer: This is our option and does constitute a recommendation or financial advice. Do your own research. *

Price
7
Condition
9
Location
7
Land
4
Bedrooms
4
Bathrooms
2
Sqft (est)
1,814.36

The heatmap indicates the level of crime in the area. The color of the heatmap indicates the crime severity and recency.

Metrics Year-on-Year

Average area value
546,663.00 £
Increased by 20.32 %
from 454,336.00 £
Est sale value
1,077,729.84 £
Increased by 55.50 %
from 693,085.52 £
Average area rental value
2,315.00 £/mo
Increased by 58.13 %
from 1,464.00 £/mo
Est letting value
3,628.72 £/mo
Increased by 100.00 %
from 1,814.36 £/mo
Est rental Yield
5.08 %
Increased by 31.27 %
from 3.87 %
Crime Rate
0.00 %
from 0.00 %

Agent Activity

  • Harper & Stone Limited created the listing.

Images

07a.jpg 46.jpg Utility Room 20 West Road 20 West Road 12.jpg 13.jpg lounge6.jpg 07.jpg 04.jpg Bedroom Bedroom Bathroom Family Room Utility Room WC 20 West Road 20 West Road Garden

Nearby Streets

NameAverage PriceAverage SqftDistance
West Road £ 425,00000.00 KM
Craighouse Place £ 350,00000.00 KM
The Glebe £ 000.00 KM
Argyll Place £ 193,33300.00 KM
Oaklea £ 000.00 KM

Nearby Listings

AddressPriceTypeScoreDistance
20 West Road, Saline, Dunfermline KY12 9UN £ 425,000BUY6 / 100.00 KM
25 Bridge Street, Saline, KY12 9TS £ 360,000BUY6 / 100.25 KM
4 The Glebe, Saline KY12 9UT £ 399,995BUY8 / 100.28 KM
West Road, Saline, Dunfermline, Fife £ 397,000BUY6 / 100.37 KM
51 Eastercraig Gardens, Saline, KY12 9TJ £ 155,000BUY6 / 100.40 KM