Nightingale Way, London E6
BA

Nightingale Way, London E6

By Barrain Property Advisors

£ 575,000

Reviews

2 out of 5 stars

Barrain Property Advisors says ..

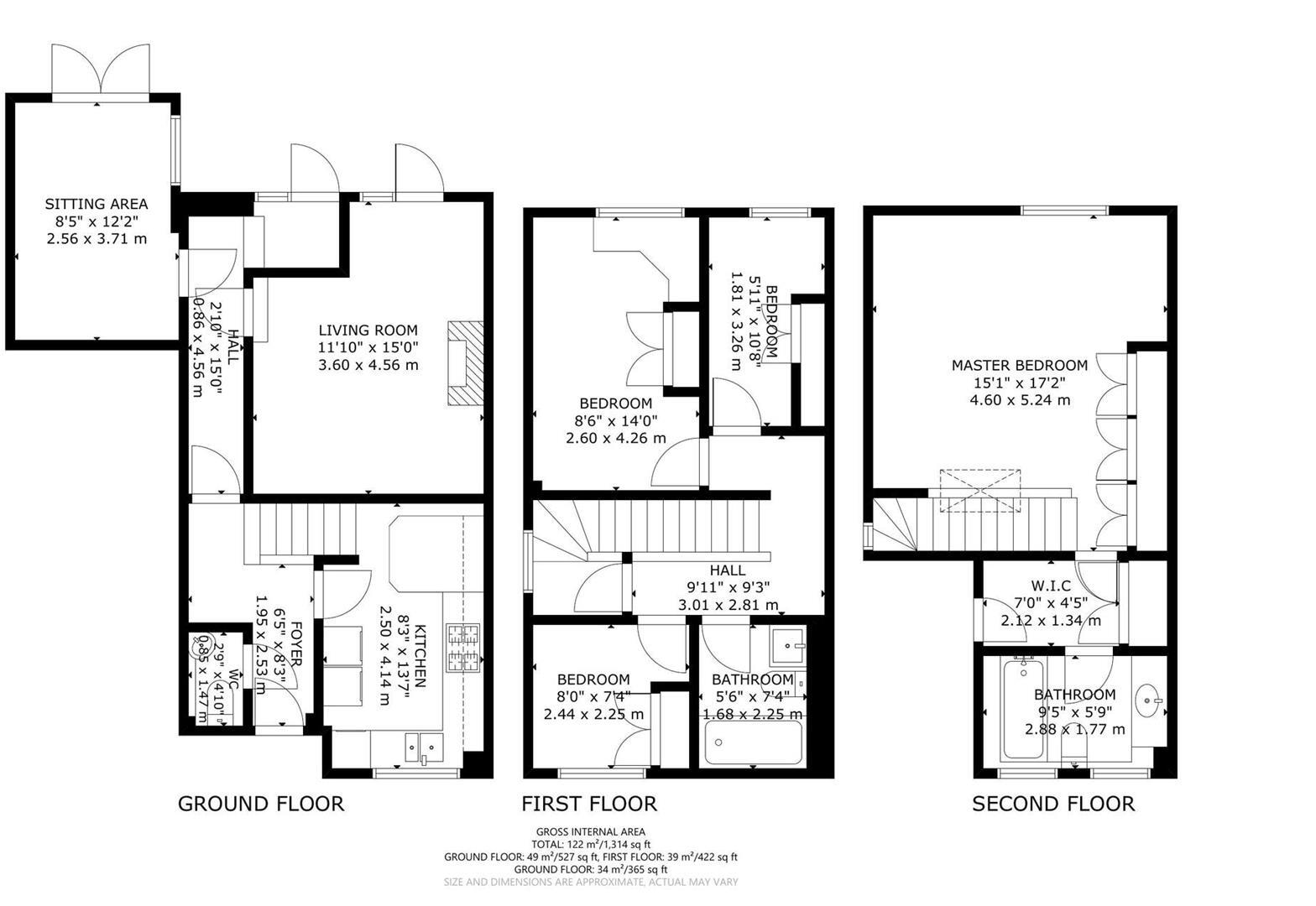
Introducing this large, semi-detached family residence on quiet Nightingale Way in Beckton. Complete with four large bedrooms, a spacious lounge and integrated kitchen. Without a doubt, there is a wealth of sleeping and living accommodation! All of this is just a short walk to Beckton s...

Property Oracle says ..

This four-bedroom, two-bathroom property located on Nightingale Way in Beckton, Newham, is listed at £575,000. The exterior presents a typical suburban aesthetic. The interior images reveal a property that would benefit from modernization. The kitchen and bathrooms have dated fixtures and finishes. The bedrooms are of a reasonable size and the flooring is consistent throughout most of the house. There is also a small garden at the rear. The property’s condition suggests that a significant amount of renovation or refurbishment work might be required by a new buyer to bring it up to contemporary standards. The location offers convenient access to several transport links and is near schools. This property may appeal to families seeking a property in a reasonably priced part of London who are willing to undertake renovations. Buyers should undertake their own thorough survey before purchase.

Therefore, we give this property 5 / 10. *Disclaimer: This is our option and does constitute a recommendation or financial advice. Do your own research. *

Price
7
Condition
5
Location
7
Land
4
Bedrooms
4
Bathrooms
2

The heatmap indicates the level of crime in the area. The color of the heatmap indicates the crime severity and recency.

Metrics Year-on-Year

Average area value
337,750.00 £
Decreased by 9.08 %
from 371,474.00 £
Average area rental value
1,661.00 £/mo
Decreased by 18.06 %
from 2,027.00 £/mo
Est rental Yield
5.90 %
Decreased by 9.92 %
from 6.55 %
Crime Rate
4.00 %
Unchanged by 0.00 %
from 4.00 %

Agent Activity

  • Barrain Property Advisors created the listing.

Nearby Schools

NameTypeOfstedDistance
North Beckton Primary SchoolAcademy Converter0.42 KM
Kingsford Community SchoolCommunity SchoolGood0.45 KM
Beckton And Royal Docks Children'S CentreChildren's Centre0.90 KM
Ellen Wilkinson Primary SchoolCommunity SchoolGood0.90 KM
Roman Road Primary SchoolCommunity SchoolGood1.09 KM

Images

WhatsApp Image 2025-01-23 at 15.26.23 (4).jpeg WhatsApp Image 2025-01-23 at 14.11.55.jpeg WhatsApp Image 2025-01-23 at 14.39.12 (1).jpeg WhatsApp Image 2025-01-23 at 15.26.23 (1).jpeg WhatsApp Image 2025-01-23 at 15.26.23.jpeg WhatsApp Image 2025-01-23 at 15.26.23 (2).jpeg WhatsApp Image 2025-01-23 at 15.26.35.jpeg WhatsApp Image 2025-01-23 at 14.11.56.jpeg WhatsApp Image 2025-01-23 at 14.39.12 (2).jpeg WhatsApp Image 2025-01-23 at 14.11.56 (1).jpeg WhatsApp Image 2025-01-23 at 14.11.56 (2).jpeg WhatsApp Image 2025-01-23 at 14.39.13.jpeg WhatsApp Image 2025-01-23 at 15.26.23 (3).jpeg WhatsApp Image 2025-01-23 at 14.11.56 (3).jpeg WhatsApp Image 2025-01-23 at 14.11.57.jpeg

Nearby Streets

NameAverage PriceAverage SqftDistance
Begonia Close £ 575,00000.00 KM
Nightingale Way £ 575,00000.00 KM
Lobelia Close £ 000.00 KM
Bellflower Close £ 000.00 KM
Dundonald Close £ 000.00 KM

Nearby Transport

NameNLCTLCDistance
Woolwich Dockyard5153WWD2.96 KM
Woolwich Arsenal5152WWA3.56 KM
Woodgrange Park7467WGR3.65 KM
Barking7492BKG3.90 KM
Manor Park6883MNP3.95 KM

Nearby Listings

AddressPriceTypeScoreDistance
Bracken Close, London, E6 £ 450,000BUY6 / 100.07 KM
Bracken Close, Beckton £ 285,000BUY6 / 100.11 KM
Bracken Close, Beckton, London, E6 £ 525,000BUY7 / 100.11 KM
Holyhead Close, Beckton, E6 5YN £ 500,000BUY5 / 100.11 KM
Valiant Way, London £ 250,000BUYUnknown0.11 KM

Nearby Properties

AddressPriceDistance
5 Lymington Close £ 242,0000.04 KM
8 Lymington Close £ 80,0000.04 KM
7 Lymington Close £ 396,0000.04 KM
14 Lymington Close £ 470,0000.04 KM
3 Lymington Close £ 195,0000.04 KM