Top Floor Flat St Elmo, 35a Sands Road, Paignton, Torbay, TQ4 6EG
By Network Auctions Limited
£ 79,000
Reviews
2 out of 5 stars
Network Auctions Limited says ..
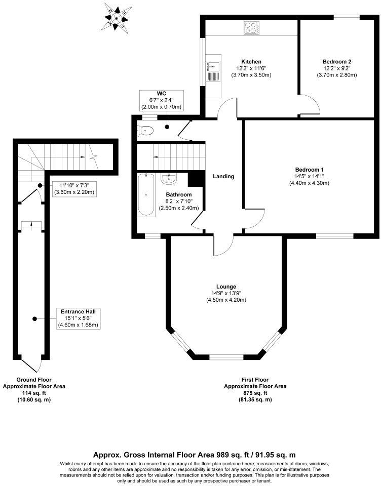
FOR SALE BY PUBLIC AUCTION - Thursday 17th July 2025 at £79,000+ A spacious, 2-bedroom first-floor flat (989 sq ft) with a private rear garden. Prime location just back from the seafront. The flat requires refurbishment. Development potential, vacant.
Property Oracle says ..
The property is located on Sands Road in Paignton, Torbay, Devon. Paignton is a seaside town in South Devon, popular with families and tourists alike. The apartment is within walking distance of Paignton train station and close to local schools such as Curledge Street Academy. The images suggest that the property is in poor condition and requires extensive renovation. The kitchen appears to be in a state of disrepair, with damaged flooring and a collapsing ceiling. The bathroom also looks dated and worn. The living spaces and bedrooms show signs of wear and tear, with peeling wallpaper and dated carpets. The property does have some land and garden space. The list price is £79,000. The average price per square foot in the area is £263. The property has a square footage of 820.83, which would give an expected price of £215,978.29. This suggests that the property is priced competitively, likely reflecting the condition of the property.
Therefore, we give this property 5 / 10. *Disclaimer: This is our option and does constitute a recommendation or financial advice. Do your own research. *
- Price
- 9
- Condition
- 2
- Location
- 7
- Land
- 5
- Bedrooms
- 2
- Bathrooms
- 0
- Sqft (est)
- 820.83
The heatmap indicates the level of crime in the area. The color of the heatmap indicates the crime severity and recency.
Metrics Year-on-Year
- Average area value
- 139,650.00 £Decreased by 39.91 %
- Est sale value
- 210,132.48 £Increased by 4.49 %
- Average area rental value
- 961.00 £/moIncreased by 5.72 %
- Est letting value
- 820.83 £/mo
- Est rental Yield
- 8.26 %Increased by 76.12 %
- Crime Rate
- 11.00 %Unchanged by 0.00 %
Agent Activity
Network Auctions Limited created the listing.
Nearby Schools
| Name | Type | Ofsted | Distance |
|---|---|---|---|
| Curledge Street Academy | Academy Converter | Good | 0.66 KM |
| Curledge Street Children'S Centre | Children's Centre Linked Site | 0.69 KM | |
| Paignton & Brixham Children'S Centre | Children's Centre | 0.69 KM | |
| St Michael'S Church Of England Academy | Free Schools | 0.89 KM | |
| Preston Bridge School | Other Independent Special School | 0.96 KM |
Images
Nearby Streets
| Name | Average Price | Average Sqft | Distance |
|---|---|---|---|
| Stafford Road | £ 0 | 0 | 0.00 KM |
| Whitstone Orchard | £ 0 | 0 | 0.00 KM |
| Antony Crescent | £ 116,125 | 0 | 0.00 KM |
| Hyde Road | £ 250,000 | 0 | 0.00 KM |
| Church Path | £ 0 | 0 | 0.00 KM |
Nearby Transport
| Name | NLC | TLC | Distance |
|---|---|---|---|
| Paignton | 3427 | PGN | 0.31 KM |
| Torquay | 3434 | TQY | 3.79 KM |
| Torre | 3432 | TRR | 4.82 KM |
Nearby Listings
| Address | Price | Type | Score | Distance |
|---|---|---|---|---|
| Sands Road, Paignton, Devon | £ 575,000 | BUY | Unknown | 0.01 KM |
| Sands Road, Paignton, TQ4 | £ 495,000 | BUY | 6 / 10 | 0.01 KM |
| Queens Road, Paignton, TQ4 | £ 585,000 | BUY | 6 / 10 | 0.07 KM |
| Queens Road, Paignton, TQ4 | £ 585,000 | BUY | 6 / 10 | 0.07 KM |
| 35a Sands Road, Paignton TQ4 6EG | £ 20,000 | BUY | 5 / 10 | 0.12 KM |
Nearby Properties
| Address | Price | Distance |
|---|---|---|
| 31c Sands Road | £ 62,000 | 0.01 KM |
| 31a Sands Road | £ 162,500 | 0.01 KM |
| 27 Sands Road | £ 427,000 | 0.01 KM |
| 11 Sands Road | £ 158,000 | 0.01 KM |
| 29 Sands Road | £ 350,000 | 0.01 KM |