DA
Southlands Road, Bromley
By DAVID JAMES LETTING & PROPERTY MANAGEMENT
£ 720,000
Reviews
3 out of 5 stars
DAVID JAMES LETTING & PROPERTY MANAGEMENT says ..
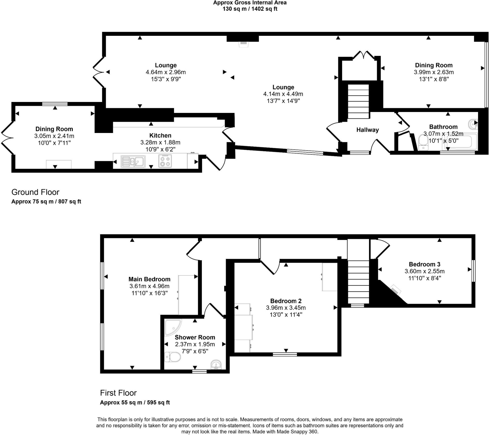
Full of charm, history and individuality, Bluebells is a beautifully unique three bedroom home tucked away in a private setting on Southlands Road.
Property Oracle says ..
Therefore, we give this property 7 / 10. *Disclaimer: This is our option and does constitute a recommendation or financial advice. Do your own research. *
- Price
- 8
- Condition
- 7
- Location
- 8
- Land
- 8
- Bedrooms
- 3
- Bathrooms
- 2
The heatmap indicates the level of crime in the area. The color of the heatmap indicates the crime severity and recency.
Metrics Year-on-Year
- Average area value
- 792,143.00 £Decreased by 2.39 %
- Average area rental value
- 3,133.00 £/moIncreased by 38.32 %
- Est rental Yield
- 4.75 %Increased by 41.79 %
- Crime Rate
- 5.00 %Unchanged by 0.00 %
from 811,511.00 £
from 2,265.00 £/mo
from 3.35 %
from 5.00 %
Agent Activity
DAVID JAMES LETTING & PROPERTY MANAGEMENT created the listing.
Nearby Schools
| Name | Type | Ofsted | Distance |
|---|---|---|---|
| Bickley Park School | Other Independent School | 0.54 KM | |
| Bullers Wood School For Boys | Free Schools | 1.02 KM | |
| St George'S, Bickley, Church Of England Primary School | Academy Converter | Good | 1.27 KM |
| Raglan Primary School | Academy Converter | Good | 1.29 KM |
| Bullers Wood School | Academy Converter | Outstanding | 1.47 KM |
Images
Nearby Streets
| Name | Average Price | Average Sqft | Distance |
|---|---|---|---|
| Lindsey Close | £ 1,075,000 | 0 | 0.00 KM |
| St. Michael's Close | £ 800,000 | 0 | 0.00 KM |
| Woodside Road | £ 0 | 0 | 0.00 KM |
| Fashoda Road | £ 700,000 | 0 | 0.00 KM |
| Waldo Road | £ 0 | 0 | 0.00 KM |
Nearby Transport
| Name | NLC | TLC | Distance |
|---|---|---|---|
| Bickley | 5063 | BKL | 0.44 KM |
| Chislehurst | 5099 | CIT | 1.82 KM |
| Elmstead Woods | 5135 | ESD | 2.31 KM |
| Bromley South | 5064 | BMS | 2.95 KM |
| Sundridge Park | 5155 | SUP | 3.14 KM |
Nearby Listings
| Address | Price | Type | Score | Distance |
|---|---|---|---|---|
| Southlands Road, Bromley | £ 720,000 | BUY | 7 / 10 | 0.00 KM |
| Southlands Road, Bromley, BR1 | £ 1,500,000 | BUY | 6 / 10 | 0.02 KM |
| Parkside Avenue, Bromley, Kent, BR1 | £ 550,000 | BUY | 7 / 10 | 0.14 KM |
| Parkside Avenue, Bickley Bromley | £ 550,000 | BUY | 7 / 10 | 0.14 KM |
| Lime Close, Bickley | £ 559,995 | BUY | Unknown | 0.16 KM |
Nearby Properties
| Address | Price | Distance |
|---|---|---|
| 246a Southlands Road | £ 215,000 | 0.01 KM |
| 258 Southlands Road | £ 592,500 | 0.01 KM |
| 256 Southlands Road | £ 720,000 | 0.01 KM |
| 238 Southlands Road | £ 472,500 | 0.01 KM |
| 254 Southlands Road | £ 322,500 | 0.01 KM |