Harefield Road, Uxbridge, UB8
By Christopher Nevill
£ 565,000
Reviews
3 out of 5 stars
Christopher Nevill says ..
This charming end of terrace cottage is situated on the favoured north side of town, just 0.5 miles from the high street with its extensive range of facilities and tube station.
Property Oracle says ..
The property is an end of terrace house located on Harefield Road in Uxbridge, UB8 1PW. Uxbridge offers good transport links with several train stations within a reasonable distance, providing access to London and surrounding areas. The proximity to schools, such as the Outstanding-rated John Locke Academy and St Mary’s Catholic Primary School, is a positive aspect for families. However, the specific quality of the local amenities and the overall desirability of the location would benefit from further investigation.
The images show a property that appears to be well-maintained and recently renovated. The kitchen and bathrooms look modern and updated, suggesting that the property is in good condition. There is evidence of a garden, which adds to the property’s appeal. The size of the garden appears relatively modest but provides outdoor space.
The list price of £565,000 is slightly above the average house price in the area (£550,351). However, without knowing the square footage of the property, a definitive assessment of value for money cannot be made. The lack of square footage data prevents a comparison with the average price per square foot (£490). Further information on the property’s size and features is needed to provide a comprehensive price analysis. A comparison to similar properties in the area would also be beneficial.
Therefore, we give this property 7 / 10. *Disclaimer: This is our option and does constitute a recommendation or financial advice. Do your own research. *
- Price
- 7
- Condition
- 9
- Location
- 7
- Land
- 6
- Bedrooms
- 3
- Bathrooms
- 2
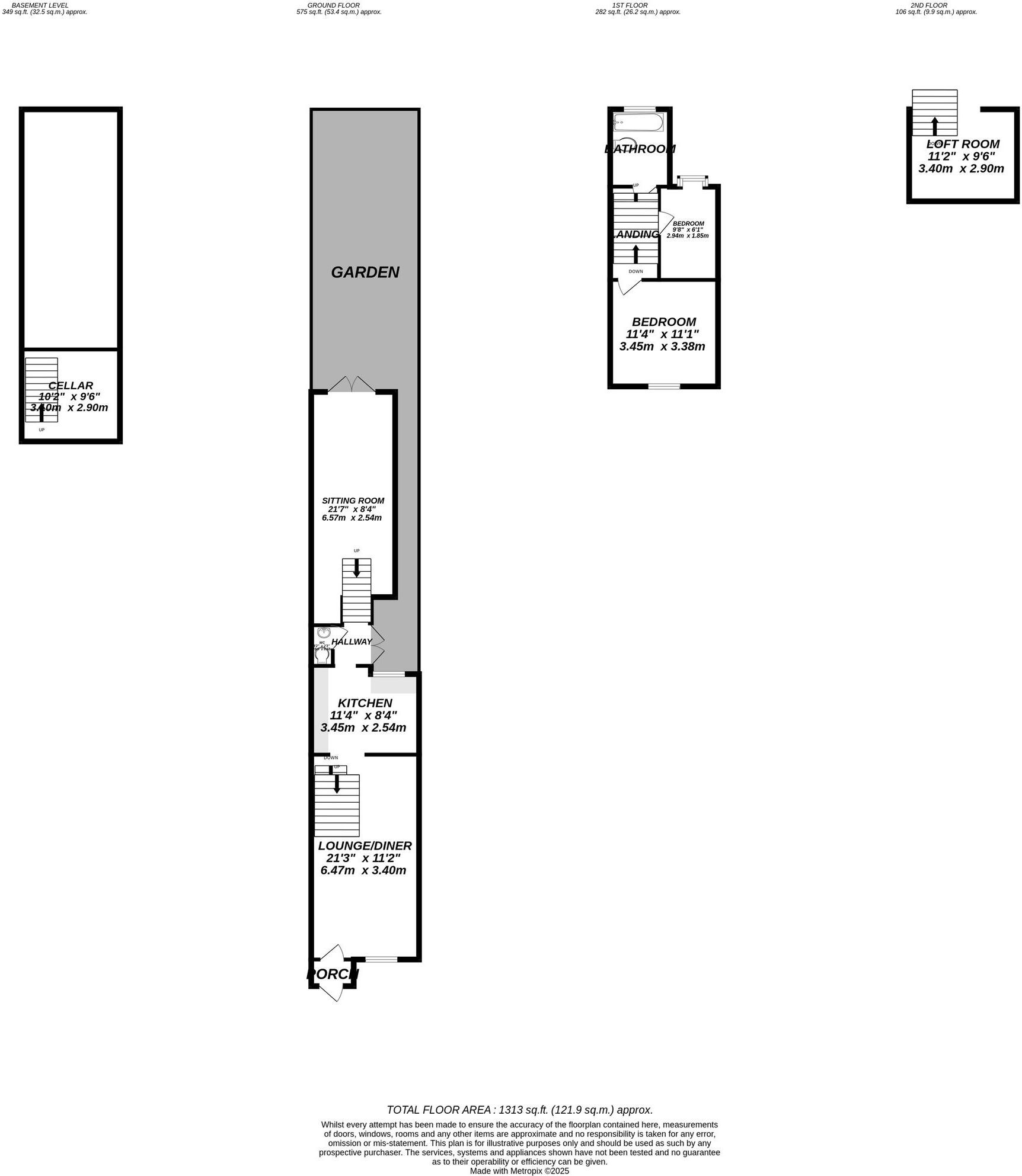
- Sqft (est)
- 1,312.12
The heatmap indicates the level of crime in the area. The color of the heatmap indicates the crime severity and recency.
Metrics Year-on-Year
- Average area value
- 488,667.00 £Decreased by 11.40 %
- Est sale value
- 637,690.32 £Decreased by 11.15 %
- Average area rental value
- 1,931.00 £/moDecreased by 5.71 %
- Est letting value
- 1,312.12 £/moDecreased by 50.00 %
- Est rental Yield
- 4.74 %Increased by 6.28 %
- Crime Rate
- 2.00 %Unchanged by 0.00 %
Agent Activity
Christopher Nevill created the listing.
Nearby Schools
| Name | Type | Ofsted | Distance |
|---|---|---|---|
| Hermitage Primary School | Academy Converter | 0.65 KM | |
| Hcuc (Harrow College & Uxbridge College) | Further Education | 1.01 KM | |
| St Andrew'S C Of E Primary School | Voluntary Aided School | Requires improvement | 1.33 KM |
| John Locke Academy | Academy Sponsor Led | Outstanding | 1.59 KM |
| St Mary'S Catholic Primary School | Voluntary Aided School | Outstanding | 1.60 KM |
Images
Nearby Streets
| Name | Average Price | Average Sqft | Distance |
|---|---|---|---|
| Gravel Hill | £ 1,300,000 | 0 | 0.00 KM |
| Sanderson Road | £ 0 | 0 | 0.00 KM |
| Lancaster Road | £ 0 | 0 | 0.00 KM |
| The Hermitage | £ 367,500 | 0 | 0.00 KM |
| Braybourne Close | £ 0 | 0 | 0.00 KM |
Nearby Transport
| Name | NLC | TLC | Distance |
|---|---|---|---|
| Denham | 3052 | DNM | 3.54 KM |
| West Ruislip | 3059 | WRU | 4.67 KM |
| West Drayton | 3174 | WDT | 4.96 KM |
| Denham Golf Club | 3060 | DGC | 5.37 KM |
| Iver | 3170 | IVR | 6.06 KM |
Nearby Listings
| Address | Price | Type | Score | Distance |
|---|---|---|---|---|
| Harefield Road, Uxbridge, UB8 | £ 565,000 | BUY | 7 / 10 | 0.00 KM |
| Harefield Road, Uxbridge, UB8 | £ 640,000 | BUY | Unknown | 0.02 KM |
| Harefield Road, Uxbridge, UB8 1PS | £ 1,250,000 | BUY | 6 / 10 | 0.07 KM |
| Harefield Road, Uxbridge | £ 525,000 | BUY | Unknown | 0.10 KM |
| 191 Harefield Road, Uxbridge | £ 410,000 | BUY | 6 / 10 | 0.15 KM |
Nearby Properties
| Address | Price | Distance |
|---|---|---|
| 90 Harefield Road | £ 249,950 | 0.09 KM |
| 129 Harefield Road | £ 485,000 | 0.09 KM |
| 100 Harefield Road | £ 265,000 | 0.09 KM |
| 147 Harefield Road | £ 397,500 | 0.09 KM |
| 159 Harefield Road | £ 420,000 | 0.09 KM |