Ormeley Road, SW12
RA

Ormeley Road, SW12

By Rampton Baseley

£ 1,450,000

Reviews

4 out of 5 stars

Rampton Baseley says ..

An immaculately presented four-bedroom Victorian terraced house. Situated on one of the most popular roads in central Balham.

Property Oracle says ..

This four-bedroom Victorian terraced house located on Ormeley Road in Balham, Wandsworth, presents a compelling proposition for prospective buyers. The property’s key strength lies in its location within a highly sought-after area of South London. Balham offers a blend of urban convenience and residential charm, with excellent transport links and various nearby amenities, including shops, restaurants, parks and highly-rated schools. The property itself appears to be in excellent condition. High quality renovations, modern fittings, and a well-maintained garden are apparent in the provided photographs. The interior is stylishly decorated, and there is evidence of a recently completed extension that greatly enhances living space. The extension of the kitchen and living spaces seamlessly integrates with the garden, offering a beautiful indoor-outdoor flow. However, without square footage data on comparable properties, the property’s value for money can not be definitively ascertained. While the price point seems consistent with market expectations, a thorough comparison against detailed property information of recent sales is needed for a comprehensive assessment of value. Overall, this property represents a desirable offering in a prime London location, though interested buyers should still conduct their independent assessment of its price and value.

Therefore, we give this property 8 / 10. *Disclaimer: This is our option and does constitute a recommendation or financial advice. Do your own research. *

Price
7
Condition
9
Location
9
Land
7
Bedrooms
4
Bathrooms
2
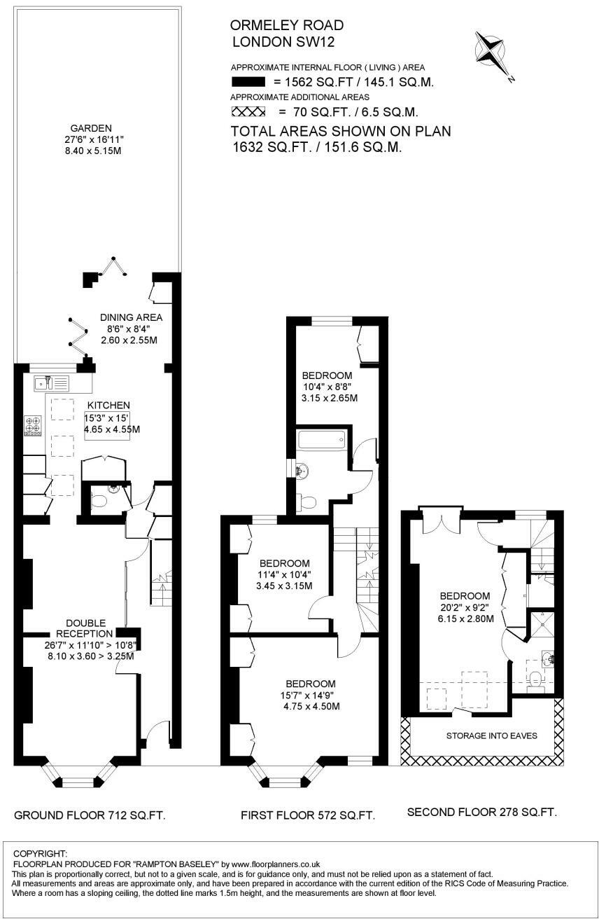
Sqft (est)
1,632.00

The heatmap indicates the level of crime in the area. The color of the heatmap indicates the crime severity and recency.

Metrics Year-on-Year

Average area value
864,722.00 £
Decreased by 7.25 %
from 932,318.00 £
Est sale value
1,552,032.00 £
Increased by 10.58 %
from 1,403,520.00 £
Average area rental value
2,933.00 £/mo
Decreased by 2.56 %
from 3,010.00 £/mo
Est letting value
4,896.00 £/mo
Increased by 50.00 %
from 3,264.00 £/mo
Est rental Yield
4.07 %
Increased by 5.17 %
from 3.87 %
Crime Rate
10.00 %
Unchanged by 0.00 %
from 10.00 %

Agent Activity

  • Rampton Baseley marked this listing as sold.

  • Rampton Baseley created the listing.

Nearby Schools

NameTypeOfstedDistance
London Steiner SchoolOther Independent SchoolInadequate0.43 KM
Alderbrook Primary SchoolCommunity SchoolGood0.48 KM
Henry Cavendish Primary SchoolCommunity SchoolOutstanding0.51 KM
St Bernadette Catholic Junior SchoolVoluntary Aided SchoolGood0.59 KM
La Retraite Roman Catholic Girls' SchoolVoluntary Aided SchoolOutstanding0.59 KM

Images

Picture No. 24 Picture No. 22 Picture No. 19 Picture No. 12 Picture No. 23 Picture No. 17 Picture No. 16 Picture No. 20 Picture No. 08 Picture No. 03 Picture No. 21 Picture No. 04 Picture No. 05 Picture No. 06 Picture No. 11 Picture No. 13 Picture No. 07 Picture No. 09 Picture No. 25

Nearby Streets

NameAverage PriceAverage SqftDistance
Zennor Road £ 000.00 KM
Caister Mews £ 000.00 KM
Oakmead Road £ 000.00 KM
Oakmead Mews £ 000.00 KM
Falcon Mews £ 699,95000.00 KM

Nearby Transport

NameNLCTLCDistance
Balham5399BAL0.59 KM
Wandsworth Common5395WSW1.77 KM
Streatham Hill5435SRH2.37 KM
Streatham5383STE2.77 KM
Clapham High Street5301CLP2.80 KM

Nearby Listings

AddressPriceTypeScoreDistance
Ormeley Road, SW12 £ 1,450,000BUY8 / 100.00 KM
Ormeley Road, Balham £ 1,750,000BUY9 / 100.01 KM
Ormeley Road, SW12 £ 725,000BUY7 / 100.05 KM
Laitwood Road, London, SW12 £ 1,500,000BUY8 / 100.06 KM
Badminton Road, SW12 £ 875,000BUY7 / 100.07 KM

Nearby Properties

AddressPriceDistance
50 Laitwood Road £ 450,0000.06 KM
54 Laitwood Road £ 450,0000.06 KM
60 Laitwood Road £ 599,9500.06 KM
70 Laitwood Road £ 1,350,0000.06 KM
72 Laitwood Road £ 981,0000.06 KM