Saxon Drive, West Acton, London, W3
By Japan Services Rent
£ 850,000
Reviews
3 out of 5 stars
Japan Services Rent says ..
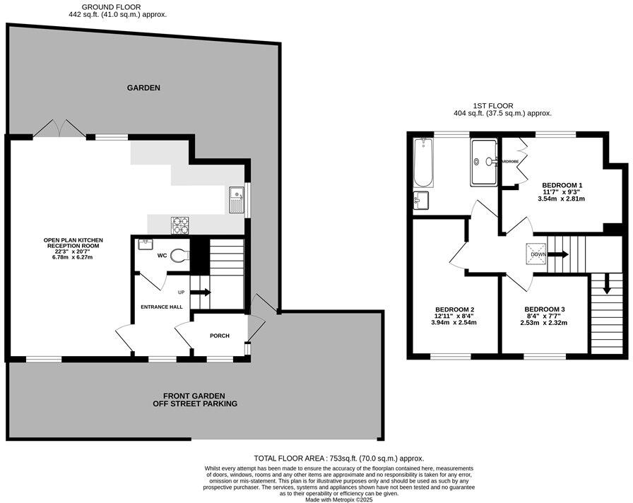
Well presented detached three bedroom house located on this quiet residential road. The property is arranged over two floors offering light living throughout, three bedrooms, bright open plan kitchen reception room, modern fitted kitchen, downstairs WC, first floor family bathroom, side access, m...
Property Oracle says ..
This three-bedroom, one-bathroom house located on Saxon Drive in West Acton, London, is presented for sale at £850,000. The property’s location offers proximity to several schools with various Ofsted ratings, including some rated ‘Outstanding’, making it attractive to families. Transportation links are available but require some travel time; Acton Main Line station is approximately 1.43km away. The property itself appears well-maintained from the provided photographs, with a clean and modern interior. The kitchen and bathroom seem recently updated. The property includes a garden, though it appears relatively small. The lack of square footage data for the house and plot prevents a precise evaluation of the property’s value per square foot, making a definitive judgment on the price difficult. However, comparing it to nearby listings, the price seems reasonable within the current market conditions. Potential buyers should be aware that the property may require future maintenance or upgrades to sustain its current condition. Overall, the property presents a viable option for those seeking a family home in a reasonably convenient location, but further details, particularly regarding the property’s size, are required for a more comprehensive assessment.
Therefore, we give this property 6 / 10. *Disclaimer: This is our option and does constitute a recommendation or financial advice. Do your own research. *
- Price
- 7
- Condition
- 6
- Location
- 7
- Land
- 4
- Bedrooms
- 3
- Bathrooms
- 1
The heatmap indicates the level of crime in the area. The color of the heatmap indicates the crime severity and recency.
Metrics Year-on-Year
- Average area value
- 633,524.00 £Decreased by 17.79 %
- Average area rental value
- 2,128.00 £/moIncreased by 15.40 %
- Est rental Yield
- 4.03 %Increased by 40.42 %
- Crime Rate
- 3.00 %Unchanged by 0.00 %
Agent Activity
Japan Services Rent created the listing.
Nearby Schools
| Name | Type | Ofsted | Distance |
|---|---|---|---|
| West Acton Primary School | Community School | Good | 0.14 KM |
| The Japanese School | Other Independent School | Inadequate | 0.49 KM |
| Holy Family Catholic Primary School | Voluntary Aided School | Outstanding | 0.57 KM |
| The Ellen Wilkinson School For Girls | Foundation School | Outstanding | 0.92 KM |
| St Vincent'S Catholic Primary School | Voluntary Aided School | Good | 0.93 KM |
Images
Nearby Streets
| Name | Average Price | Average Sqft | Distance |
|---|---|---|---|
| Station Parade | £ 0 | 0 | 0.00 KM |
| Queens Drive | £ 0 | 0 | 0.00 KM |
| The Link | £ 0 | 0 | 0.00 KM |
| Walton Way | £ 491,389 | 0 | 0.00 KM |
| Queens Drive | £ 475,000 | 0 | 0.00 KM |
Nearby Transport
| Name | NLC | TLC | Distance |
|---|---|---|---|
| Acton Main Line | 3000 | AML | 1.43 KM |
| Acton Central | 1404 | ACC | 2.11 KM |
| South Acton | 1452 | SAT | 2.28 KM |
| Ealing Broadway | 3190 | EAL | 2.47 KM |
| Stonebridge Park | 1454 | SBP | 2.94 KM |
Nearby Listings
| Address | Price | Type | Score | Distance |
|---|---|---|---|---|
| Saxon Drive, West Acton, London, W3 | £ 850,000 | BUY | 6 / 10 | 0.00 KM |
| Saxon Drive, West Acton, W3 | £ 899,950 | BUY | 6 / 10 | 0.00 KM |
| Saxon Drive, London | £ 750,000 | BUY | 6 / 10 | 0.01 KM |
| Saxon Drive, West Acton, London, W3 | £ 799,995 | BUY | 6 / 10 | 0.08 KM |
| Princes Gardens, West Acton, West Acton, W3 | £ 750,000 | BUY | 6 / 10 | 0.10 KM |
Nearby Properties
| Address | Price | Distance |
|---|---|---|
| 199 Noel Road | £ 360,000 | 0.05 KM |
| 185 Noel Road | £ 750,000 | 0.05 KM |
| 223 Noel Road | £ 575,000 | 0.05 KM |
| 227 Noel Road | £ 406,000 | 0.05 KM |
| 233 Noel Road | £ 530,000 | 0.05 KM |