Church Street, Dunmow, Essex, CM6
FI

Church Street, Dunmow, Essex, CM6

By Fine & Country

£ 500,000

Reviews

3 out of 5 stars

Fine & Country says ..

This beautifully finished and spacious Grade II Listed cottage offers spacious and versatile living accommodation, retaining many original features, with parts of the property dating to the 1600’s. The property has high ceilings with exposed timbers, similarly to the walls. The property i...

Property Oracle says ..

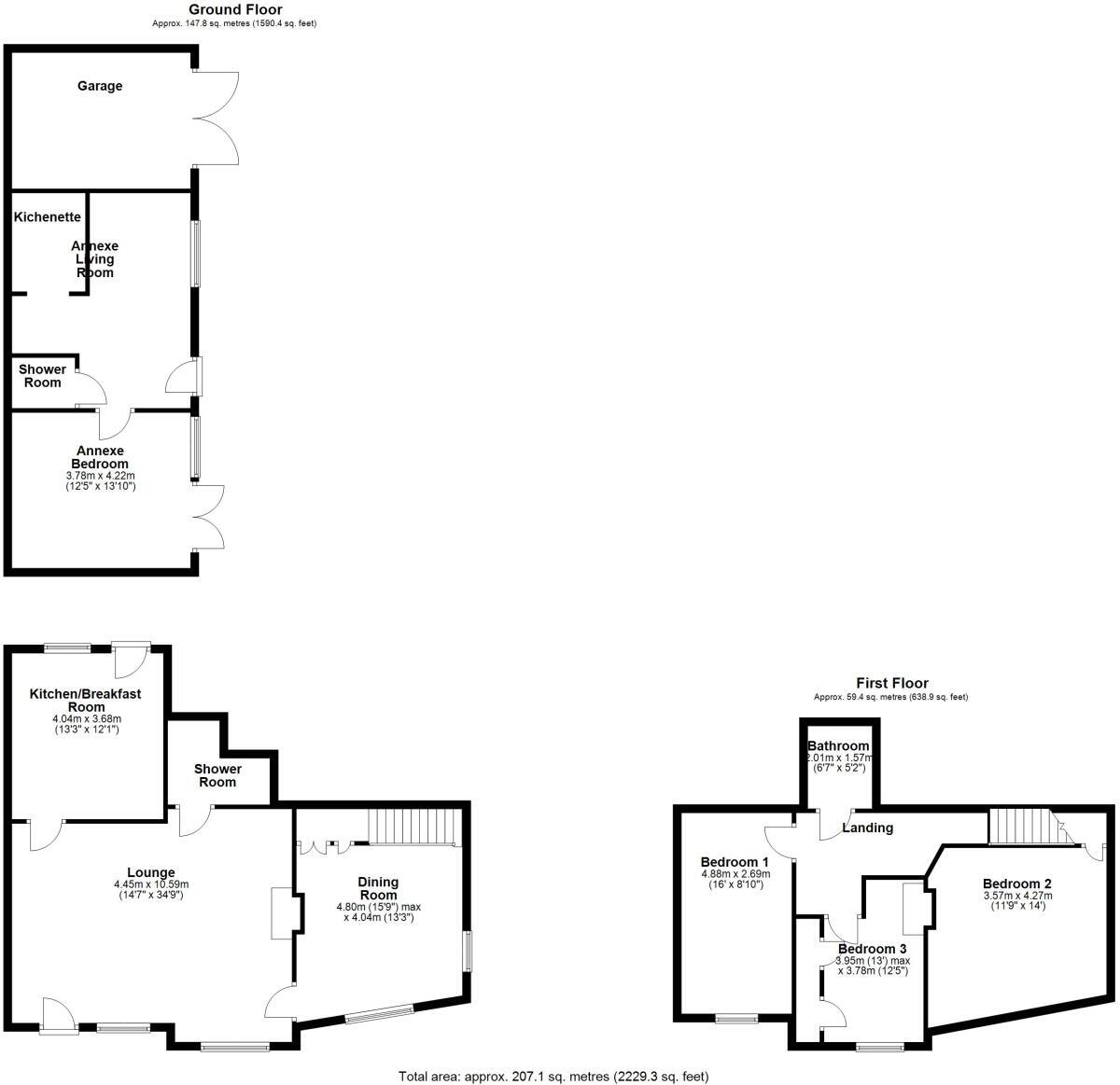
This property is a 3 bedroom, 2 bathroom semi-detached house located on Church Street, in Great Dunmow, Essex. The property is a period property, with exposed beams and original features, which have been blended with modern updates. The house is in good condition and benefits from a private rear courtyard garden. The location is excellent, being situated in the heart of Great Dunmow. This charming market town offers a range of amenities including shops, restaurants, and schools. The proximity to these schools is a significant advantage for families. The property’s condition appears to be very good. The images show a well-maintained interior with a blend of modern and period features. The property has clearly been updated and modernised in parts, but retains many of its original features. The plot size is relatively small at 2,229.30 sqft, however, it does include a private courtyard garden, which is a desirable feature in a town centre location. Considering the property’s size (2,150 sqft), location, condition, and the inclusion of a garden, the list price of £500,000 appears to be slightly above the average price per square foot for the area (£504). However, the unique character of this period property, combined with its desirable location, could justify the higher price. Nearby comparable properties show prices ranging from £260,000 to £640,000, indicating a wide range of values in the area. The lack of sqft data for nearby properties makes a precise comparison difficult. However, this property’s size and features suggest a price at the higher end of the market is reasonable.

Therefore, we give this property 7 / 10. *Disclaimer: This is our option and does constitute a recommendation or financial advice. Do your own research. *

Price
7
Condition
9
Location
9
Land
6
Bedrooms
3
Bathrooms
2
Sqft (est)
2,150.00
Lot (est)
2,229.30

The heatmap indicates the level of crime in the area. The color of the heatmap indicates the crime severity and recency.

Metrics Year-on-Year

Average area value
310,833.00 £
Decreased by 19.99 %
from 388,484.00 £
Est sale value
961,050.00 £
Decreased by 3.25 %
from 993,300.00 £
Average area rental value
1,673.00 £/mo
Increased by 30.50 %
from 1,282.00 £/mo
Est letting value
4,300.00 £/mo
Increased by 100.00 %
from 2,150.00 £/mo
Est rental Yield
6.46 %
Increased by 63.13 %
from 3.96 %
Crime Rate
11.00 %
Unchanged by 0.00 %
from 11.00 %

Agent Activity

  • Fine & Country created the listing.

Nearby Schools

NameTypeOfstedDistance
Utt2/A Little Goslings Family Hub Delivery SiteChildren's Centre Linked Site0.79 KM
Helena Romanes SchoolAcademy ConverterRequires improvement1.27 KM
Dunmow St Mary'S Primary SchoolFoundation SchoolGood1.45 KM
Great Dunmow Primary SchoolFoundation SchoolGood1.99 KM
Great Easton Church Of England Voluntary Aided Primary SchoolVoluntary Aided SchoolGood4.12 KM

Images

Picture No. 22 Picture No. 28 Picture No. 03 Picture No. 20 Picture No. 02 Picture No. 15 Picture No. 04 Picture No. 11 Picture No. 05 Picture No. 07 Picture No. 08 Picture No. 14 Picture No. 06 Picture No. 25 Picture No. 12 Picture No. 13 Picture No. 16 Picture No. 23 Picture No. 24 Picture No. 27 Picture No. 26 Picture No. 30

Nearby Streets

NameAverage PriceAverage SqftDistance
Church View £ 000.00 KM
Poundfields £ 380,00000.00 KM
Lionels Close £ 1,155,00000.00 KM
The Dell £ 000.00 KM
Bradley Close £ 000.00 KM

Nearby Listings

AddressPriceTypeScoreDistance
Church Street, Dunmow, Essex, CM6 £ 500,000BUY7 / 100.00 KM
Church Street, Dunmow, Essex, CM6 £ 325,000BUY7 / 100.00 KM
Church Street, Dunmow, CM6 £ 325,000BUY7 / 100.03 KM
Church Gardens, Great Dunmow £ 365,000BUY6 / 100.17 KM
Church End, Lindsell, Dunmow, CM6 3QR £ 800,000BUY7 / 100.18 KM

Nearby Properties

AddressPriceDistance
30 Church Street £ 330,0000.04 KM
26 Church Street £ 640,0000.04 KM
28 Church Street £ 260,0000.04 KM
26a Church Street £ 305,0000.04 KM
34 Church Street £ 295,0000.04 KM