Troughton Road, Charlton, SE7
By Conran Estates
£ 850,000
Reviews
3 out of 5 stars
Conran Estates says ..
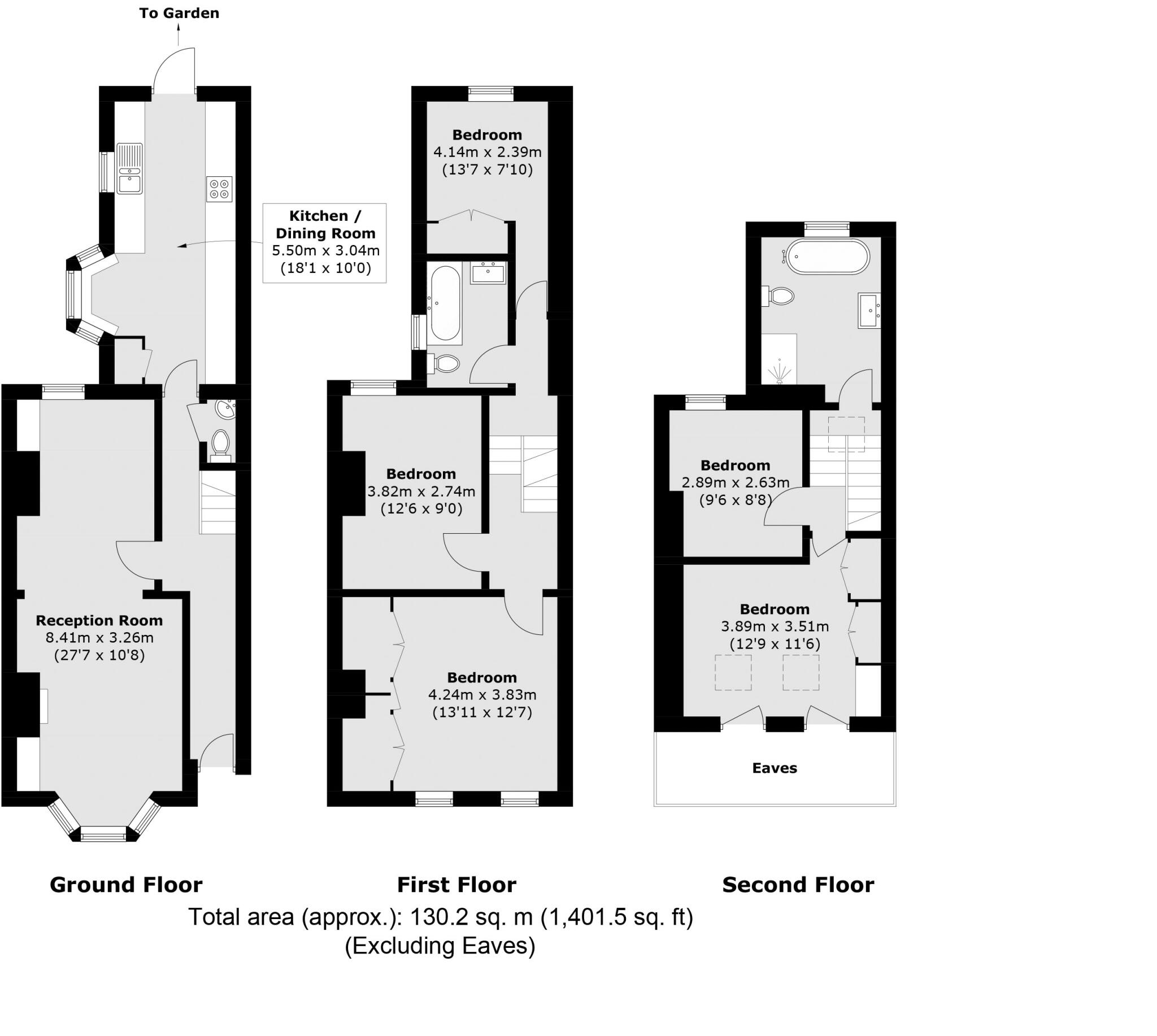
Offers between £825,000 to £850,000 We’re delighted to present this stunning Victorian terraced house, which has been beautifully renovated to a high standard, seamlessly blending period charm with modern finishes.
Property Oracle says ..
This is a 5-bedroom terraced house in Charlton, London. The property benefits from its proximity to local schools and transportation. The house appears to be in good condition, with a modern kitchen and bathrooms. It also features a garden. The asking price of £850,000 seems reasonable given the size and location, but comparable sales data suggests there may be room for negotiation.
Therefore, we give this property 6 / 10. *Disclaimer: This is our option and does constitute a recommendation or financial advice. Do your own research. *
- Price
- 6
- Condition
- 8
- Location
- 7
- Land
- 6
- Bedrooms
- 5
- Bathrooms
- 2
- Sqft (est)
- 1,401.46
The heatmap indicates the level of crime in the area. The color of the heatmap indicates the crime severity and recency.
Metrics Year-on-Year
- Average area value
- 557,097.00 £Increased by 12.74 %
- Est sale value
- 986,627.84 £Increased by 22.65 %
- Average area rental value
- 2,359.00 £/moIncreased by 2.83 %
- Est letting value
- 2,802.92 £/moUnchanged by 0.00 %
- Est rental Yield
- 5.08 %Decreased by 8.80 %
- Crime Rate
- 11.00 %Unchanged by 0.00 %
Agent Activity
Conran Estates created the listing.
Nearby Schools
| Name | Type | Ofsted | Distance |
|---|---|---|---|
| Fossdene Primary School | Community School | Good | 0.33 KM |
| Our Lady Of Grace Catholic Primary School | Voluntary Aided School | Outstanding | 0.69 KM |
| Sherington Primary School | Community School | Outstanding | 0.82 KM |
| Sherington Primary School And Children'S Centre | Children's Centre | 0.82 KM | |
| Leigh Academy Blackheath | Free Schools | 1.13 KM |
Images
Nearby Streets
| Name | Average Price | Average Sqft | Distance |
|---|---|---|---|
| Woolwich Road | £ 352,500 | 0 | 0.00 KM |
| Fossdene Road | £ 330,000 | 0 | 0.00 KM |
| Bowen Drive | £ 483,000 | 0 | 0.00 KM |
| Empire Close | £ 229,750 | 0 | 0.00 KM |
| Harold Gibbons Court | £ 0 | 0 | 0.00 KM |
Nearby Transport
| Name | NLC | TLC | Distance |
|---|---|---|---|
| Charlton | 5144 | CTN | 0.29 KM |
| Westcombe Park | 5151 | WCB | 1.17 KM |
| Kidbrooke | 5108 | KDB | 2.76 KM |
| Maze Hill | 5149 | MZH | 2.88 KM |
| Woolwich Dockyard | 5153 | WWD | 2.92 KM |
Nearby Listings
| Address | Price | Type | Score | Distance |
|---|---|---|---|---|
| Troughton Road, Charlton, SE7 | £ 850,000 | BUY | 6 / 10 | 0.00 KM |
| Woolwich Road, Charlton | £ 500,000 | BUY | 6 / 10 | 0.06 KM |
| Troughton Road, London, SE7 | £ 649,950 | BUY | 6 / 10 | 0.08 KM |
| Troughton Road, Charlton | £ 675,000 | BUY | 6 / 10 | 0.08 KM |
| Troughton Road, Charlton, London, SE7 | £ 649,000 | BUY | 6 / 10 | 0.09 KM |
Nearby Properties
| Address | Price | Distance |
|---|---|---|
| 46 Troughton Road | £ 159,995 | 0.06 KM |
| 64 Troughton Road | £ 520,000 | 0.06 KM |
| 70 Troughton Road | £ 586,099 | 0.06 KM |
| 42 Troughton Road | £ 69,709 | 0.06 KM |
| 137 Troughton Road | £ 250,000 | 0.08 KM |