Jackson & Co ltd says ..
A well-proportioned three-bedroom home ideally situated in a popular residential area to the north of Colchester. Offering spacious living accommodation and excellent potential for modernisation, this property is perfect for first-time buyers, young families, or investors.
Property Oracle says ..
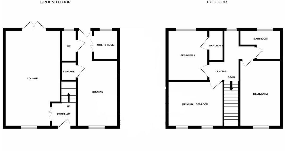
This end-of-terrace property on Forest Road, Colchester, offers three bedrooms and one bathroom within 975 sqft. While the kitchen has been modernized, the bathrooms are dated, suggesting a need for renovation. The property benefits from a garden with a patio. Located in Greenstead, it has access to nearby schools and transportation, including Hythe (Essex) station. The asking price of £260,000 seems reasonable given the property’s condition, size, and location relative to the local market. The property is listed with Jackson & Co ltd.
Therefore, we give this property 6 / 10. *Disclaimer: This is our option and does constitute a recommendation or financial advice. Do your own research. *
- Price
- 7
- Condition
- 5
- Location
- 6
- Land
- 7
- Bedrooms
- 3
- Bathrooms
- 1
- Sqft (est)
- 975.00
The heatmap indicates the level of crime in the area. The color of the heatmap indicates the crime severity and recency.
Metrics Year-on-Year
- Average area value
- 343,500.00 £Decreased by 10.23 %
- Est sale value
- 293,475.00 £Increased by 62.70 %
- Average area rental value
- 1,207.00 £/moDecreased by 5.18 %
- Est letting value
- 975.00 £/mo
- Est rental Yield
- 4.22 %Increased by 5.76 %
- Crime Rate
- 8.00 %Unchanged by 0.00 %
Agent Activity
Jackson & Co ltd created the listing.
Nearby Schools
| Name | Type | Ofsted | Distance |
|---|---|---|---|
| Unity Primary Academy | Academy Sponsor Led | Good | 0.50 KM |
| Col1/A St Anne'S And Castle Family Hub Delivery Site | Children's Centre Linked Site | 0.73 KM | |
| Col1 Greenstead Family Hub Delivery Site | Children's Centre | 0.85 KM | |
| Willow Brook Primary School And Nursery | Academy Sponsor Led | Good | 1.12 KM |
| Colchester Academy | Academy Sponsor Led | Good | 1.20 KM |
Images
Nearby Streets
| Name | Average Price | Average Sqft | Distance |
|---|---|---|---|
| Jasmine Close | £ 0 | 0 | 0.00 KM |
| Hythe Station Road | £ 0 | 0 | 0.00 KM |
| Willow Tree Court | £ 0 | 0 | 0.00 KM |
| Colonia Court | £ 0 | 0 | 0.00 KM |
| Hythe Quay | £ 64,750 | 0 | 0.00 KM |
Nearby Transport
| Name | NLC | TLC | Distance |
|---|---|---|---|
| Hythe (Essex) | 6851 | HYH | 0.44 KM |
| Colchester Town | 6853 | CET | 2.77 KM |
| Colchester | 6861 | COL | 4.30 KM |
| Wivenhoe | 6860 | WIV | 4.66 KM |
| Alresford (Essex) | 6847 | ALR | 8.45 KM |
Nearby Listings
| Address | Price | Type | Score | Distance |
|---|---|---|---|---|
| Forest Road, Colchester | £ 260,000 | BUY | 6 / 10 | 0.00 KM |
| Forest Road, Colchester, Essex, CO4 | £ 270,000 | BUY | 6 / 10 | 0.00 KM |
| Geranium Walk, Colchester, Colchester, CO4 | £ 195,000 | BUY | 7 / 10 | 0.02 KM |
| Two Bedroom Maisonette Forest rd | £ 150,000 | BUY | 4 / 10 | 0.10 KM |
| Forest Road, Colchester | £ 180,000 | BUY | 6 / 10 | 0.11 KM |
Nearby Properties
| Address | Price | Distance |
|---|---|---|
| 76 Forest Road | £ 150,000 | 0.00 KM |
| 64 Forest Road | £ 59,000 | 0.00 KM |
| 63 Forest Road | £ 150,000 | 0.00 KM |
| 53 Forest Road | £ 140,000 | 0.00 KM |
| 61 Forest Road | £ 137,500 | 0.00 KM |