MADE says ..
A spacious THREE BEDROOM FAMILY HOME with a garage located in a convenient position within easy walking distance of local shops at Ore Village and good transport links including Ore railway station. Hastings Old Town is also within easy reach offering additional shopping and leisure facilities al...
Property Oracle says ..
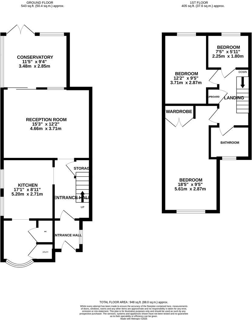
This three-bedroom end of terrace house is located on School Road in Tressell, Hastings. The property benefits from a good-sized garden with a patio area and additional outbuildings, including a large shed. The interior is presented in good order and has recently been decorated. The kitchen and bathroom appear modern and well-maintained. The location is convenient with nearby schools and transportation links. The asking price is slightly above the average price per square foot for the area, but considering the property’s condition, size, and the inclusion of the garden and outbuildings, it could represent fair value for money.
Therefore, we give this property 7 / 10. *Disclaimer: This is our option and does constitute a recommendation or financial advice. Do your own research. *
- Price
- 7
- Condition
- 8
- Location
- 7
- Land
- 7
- Bedrooms
- 3
- Bathrooms
- 1
- Sqft (est)
- 794.39
- Lot (est)
- 948.00
The heatmap indicates the level of crime in the area. The color of the heatmap indicates the crime severity and recency.
Metrics Year-on-Year
- Average area value
- 277,222.00 £Decreased by 5.45 %
- Est sale value
- 280,419.67 £Increased by 23.00 %
- Average area rental value
- 750.00 £/moDecreased by 40.00 %
- Est letting value
- 0.00 £/moDecreased by 100.00 %
- Est rental Yield
- 3.25 %Decreased by 36.52 %
- Crime Rate
- 11.00 %Unchanged by 0.00 %
Agent Activity
MADE created the listing.
Nearby Schools
| Name | Type | Ofsted | Distance |
|---|---|---|---|
| All Saints Cofe Junior Academy | Academy Sponsor Led | Good | 0.58 KM |
| Sandown Primary School And Nursery | Community School | Good | 0.61 KM |
| East Hastings Children'S Centre | Children's Centre | 0.70 KM | |
| Dudley Infant Academy | Academy Converter | Good | 0.87 KM |
| Ore Village Primary Academy | Academy Sponsor Led | Good | 0.96 KM |
Images
Nearby Streets
| Name | Average Price | Average Sqft | Distance |
|---|---|---|---|
| North Passage | £ 995,000 | 0 | 0.00 KM |
| Lords Lane | £ 0 | 0 | 0.00 KM |
| Southdown Avenue | £ 140,000 | 0 | 0.00 KM |
| Granger Way | £ 0 | 0 | 0.00 KM |
| Egremont Place | £ 230,000 | 0 | 0.00 KM |
Nearby Transport
| Name | NLC | TLC | Distance |
|---|---|---|---|
| Ore | 5021 | ORE | 1.47 KM |
| Hastings | 5219 | HGS | 3.36 KM |
| Three Oaks | 5028 | TOK | 3.54 KM |
| St Leonards Warrior Square | 5239 | SLQ | 5.14 KM |
| Doleham | 5036 | DLH | 5.38 KM |
Nearby Listings
| Address | Price | Type | Score | Distance |
|---|---|---|---|---|
| School Road, Hastings | £ 325,000 | BUY | 7 / 10 | 0.00 KM |
| Old London Road, Hastings, East Sussex, TN35 | £ 375,000 | BUY | 7 / 10 | 0.06 KM |
| Old London Road, Hastings | £ 400,000 | BUY | 7 / 10 | 0.06 KM |
| School Road, Hastings | £ 230,000 | BUY | 6 / 10 | 0.07 KM |
| Ashburnham Road, Hastings | £ 499,950 | BUY | 6 / 10 | 0.08 KM |
Nearby Properties
| Address | Price | Distance |
|---|---|---|
| 4 School Road | £ 125,000 | 0.09 KM |
| 5 School Road | £ 122,000 | 0.09 KM |
| 8 School Road | £ 165,000 | 0.09 KM |
| 21 School Road | £ 170,000 | 0.09 KM |
| 3 School Road | £ 105,000 | 0.09 KM |