Orchard says ..
**COMING SOON REGISTER YOUR INTEREST** The Officers Park Collection. Historic Elegance Meets Modern Living. Nestled in the heart of Deepcut, The Officers Park is a truly distinctive residential development, offering 33 beautifully appointed one and two bedroom apartments within...
Property Oracle says ..
Therefore, we give this property 6 / 10. *Disclaimer: This is our option and does constitute a recommendation or financial advice. Do your own research. *
- Price
- 7
- Condition
- 9
- Location
- 7
- Land
- 1
- Bedrooms
- 2
- Bathrooms
- 1
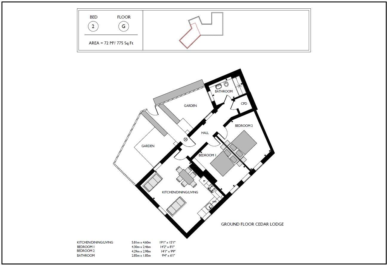
- Sqft (est)
- 775.00
The heatmap indicates the level of crime in the area. The color of the heatmap indicates the crime severity and recency.
Metrics Year-on-Year
- Average area value
- 602,000.00 £Increased by 36.20 %
- Est sale value
- 359,600.00 £Increased by 10.21 %
- Average area rental value
- 1,100.00 £/moDecreased by 51.92 %
- Est letting value
- 0.00 £/moDecreased by 100.00 %
- Est rental Yield
- 2.19 %Decreased by 64.73 %
- Crime Rate
- 0.00 %
from 441,997.00 £
from 326,275.00 £
from 2,288.00 £/mo
from 1,550.00 £/mo
from 6.21 %
from 0.00 %
Agent Activity
Orchard created the listing.
Nearby Schools
| Name | Type | Ofsted | Distance |
|---|---|---|---|
| Portesbery School | Community Special School | Good | 0.87 KM |
| Heather Ridge Infant School | Community School | Outstanding | 2.82 KM |
| Ravenscote Junior School | Academy Converter | 3.41 KM | |
| Carwarden House Community School | Academy Special Converter | Good | 3.43 KM |
| Sandringham Infant & Nursery Academy | Academy Converter | Good | 3.45 KM |
Images
Nearby Streets
| Name | Average Price | Average Sqft | Distance |
|---|---|---|---|
| Bracken Hill | £ 0 | 0 | 0.00 KM |
| Union Road | £ 0 | 0 | 0.00 KM |
| Forest Drive | £ 0 | 0 | 0.00 KM |
| Mindenhurst Northern Access Roundabout | £ 0 | 0 | 0.00 KM |
| Wilson Court | £ 0 | 0 | 0.00 KM |
Nearby Transport
| Name | NLC | TLC | Distance |
|---|---|---|---|
| Ash Vale | 5547 | AHV | 4.53 KM |
| North Camp | 5636 | NCM | 5.00 KM |
| Farnborough North | 5688 | FNN | 5.21 KM |
| Frimley | 5683 | FML | 5.72 KM |
| Ash | 5641 | ASH | 6.33 KM |
Nearby Listings
| Address | Price | Type | Score | Distance |
|---|---|---|---|---|
| Deepcut, Surrey, GU16 | £ 350,000 | BUY | 6 / 10 | 0.00 KM |
| Deepcut, Surrey, GU16 | £ 240,000 | BUY | Unknown | 0.00 KM |
| Deepcut, Surrey, GU16 | £ 245,000 | BUY | 7 / 10 | 0.01 KM |
| Deepcut, Surrey, GU16 | £ 250,000 | BUY | 5 / 10 | 0.03 KM |
| Deepcut, Surrey, GU16 | £ 375,000 | BUY | 6 / 10 | 0.03 KM |
Nearby Properties
| Address | Price | Distance |
|---|---|---|
| 10 Strawberry Court | £ 250,000 | 0.88 KM |
| 25 Strawberry Court | £ 335,000 | 0.88 KM |
| 18 Strawberry Court | £ 229,950 | 0.88 KM |
| 4 Strawberry Court | £ 245,000 | 0.88 KM |
| 1 Strawberry Court | £ 750,000 | 0.88 KM |