Hollydale Road, Nunhead, SE15
By Wooster & Stock
£ 350,000
Reviews
3 out of 5 stars
Wooster & Stock says ..
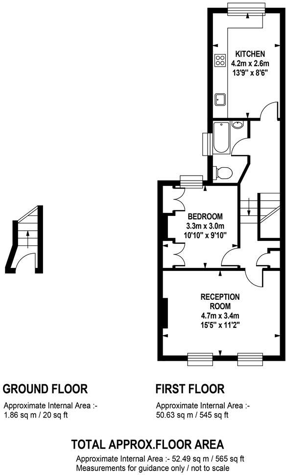
Well Proportioned One Bed Period Conversion in Popular Mature Spot. Taking the upper floor of a handsome period building along the much-loved, mature and residential Hollydale Road is this super one bedder! It enjoys separate living room and kitchen/diner and a nicely sized double bedroo...
Property Oracle says ..
This is a one-bedroom flat on Hollydale Road, Nunhead. The property is in a good location, close to schools and transport links. The flat appears to be in reasonable condition, with a modern kitchen and bathroom. The asking price of £350,000 seems reasonable for the area and size of the property. The flat is 565 sqft, and the average price per sqft in the area is £829.
Therefore, we give this property 6 / 10. *Disclaimer: This is our option and does constitute a recommendation or financial advice. Do your own research. *
- Price
- 8
- Condition
- 7
- Location
- 7
- Land
- 3
- Bedrooms
- 1
- Bathrooms
- 1
- Sqft (est)
- 565.00
The heatmap indicates the level of crime in the area. The color of the heatmap indicates the crime severity and recency.
Metrics Year-on-Year
- Average area value
- 759,842.00 £Increased by 24.51 %
- Est sale value
- 468,385.00 £Increased by 23.55 %
- Average area rental value
- 2,535.00 £/moDecreased by 1.90 %
- Est letting value
- 1,130.00 £/moUnchanged by 0.00 %
- Est rental Yield
- 4.00 %Decreased by 21.26 %
- Crime Rate
- 4.00 %Unchanged by 0.00 %
Agent Activity
Wooster & Stock created the listing.
Nearby Schools
| Name | Type | Ofsted | Distance |
|---|---|---|---|
| The St Thomas The Apostle College | Voluntary Aided School | Outstanding | 0.17 KM |
| Hollydale Primary School | Community School | Good | 0.40 KM |
| John Donne Primary School | Academy Converter | 0.74 KM | |
| St Mary Magdalene Church Of England Primary School | Voluntary Aided School | Good | 0.79 KM |
| Edmund Waller Primary School | Community School | Good | 0.81 KM |
Images
Nearby Streets
| Name | Average Price | Average Sqft | Distance |
|---|---|---|---|
| Grimwade Close | £ 900,000 | 0 | 0.00 KM |
| Gibbon Road | £ 0 | 0 | 0.00 KM |
| Beacon Gate | £ 0 | 0 | 0.00 KM |
| Carlton Grove | £ 350,000 | 0 | 0.00 KM |
| Nazareth Gardens | £ 900,000 | 0 | 0.00 KM |
Nearby Transport
| Name | NLC | TLC | Distance |
|---|---|---|---|
| Nunhead | 5068 | NHD | 0.48 KM |
| Queens Road Peckham | 5424 | QRP | 0.50 KM |
| Peckham Rye | 5423 | PMR | 1.51 KM |
| New Cross Gate | 5345 | NXG | 1.82 KM |
| Brockley | 5404 | BCY | 2.08 KM |
Nearby Listings
| Address | Price | Type | Score | Distance |
|---|---|---|---|---|
| Hollydale Road, Nunhead, SE15 | £ 350,000 | BUY | 6 / 10 | 0.00 KM |
| Hollydale Road, Nunhead, London, SE15 | £ 1,350,000 | BUY | 8 / 10 | 0.06 KM |
| Lanvanor Road,London,SE15 2BT | £ 1,000,000 | BUY | 6 / 10 | 0.11 KM |
| Ansdell Road, Nunhead, SE15 | £ 900,000 | BUY | 6 / 10 | 0.12 KM |
| Ansdell Road, Nunhead, SE15 | £ 900,000 | BUY | Unknown | 0.12 KM |
Nearby Properties
| Address | Price | Distance |
|---|---|---|
| 141 Hollydale Road | £ 928,000 | 0.06 KM |
| 133a Hollydale Road | £ 543,350 | 0.06 KM |
| 143a Hollydale Road | £ 142,000 | 0.06 KM |
| 169 Hollydale Road | £ 142,000 | 0.06 KM |
| 129 Hollydale Road | £ 745,000 | 0.06 KM |