The Norfolk Agents says ..
A 3-bedroom detached family home, situated on a small development just a short walk from the town centre. Garage, driveway & enclosed garden. No onward chain.
Property Oracle says ..
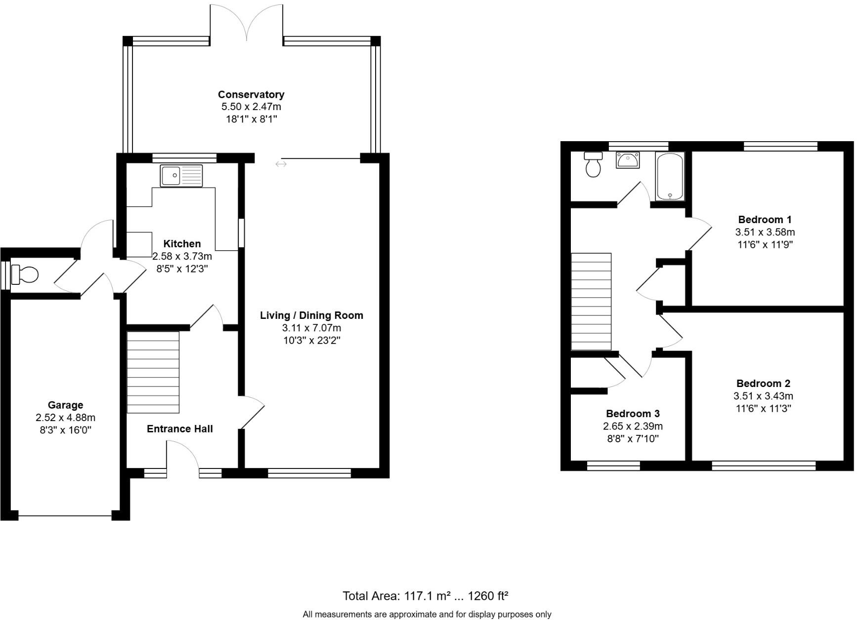
This detached property on Driftlands, Fakenham, offers three bedrooms and one bathroom. While the square footage isn’t specified, the property includes a conservatory and a well-maintained garden with a pond and shed. The interior is somewhat dated and could benefit from modernisation. Located in a residential area with nearby schools, it’s suitable for families. The asking price of £330,000 is slightly above the local average, but the garden and detached status add value.
Therefore, we give this property 7 / 10. *Disclaimer: This is our option and does constitute a recommendation or financial advice. Do your own research. *
- Price
- 7
- Condition
- 6
- Location
- 7
- Land
- 8
- Bedrooms
- 3
- Bathrooms
- 1
- Sqft (est)
- 951.96
The heatmap indicates the level of crime in the area. The color of the heatmap indicates the crime severity and recency.
Metrics Year-on-Year
- Average area value
- 313,000.00 £Increased by 3.13 %
- Est sale value
- 262,740.96 £Decreased by 3.83 %
- Average area rental value
- 908.00 £/moDecreased by 15.14 %
- Est letting value
- 0.00 £/moDecreased by 100.00 %
- Est rental Yield
- 3.48 %Decreased by 17.73 %
- Crime Rate
- 8.00 %Unchanged by 0.00 %
Agent Activity
The Norfolk Agents created the listing.
Nearby Schools
| Name | Type | Ofsted | Distance |
|---|---|---|---|
| Fakenham Gateway Surestart Children'S Centre | Children's Centre | 0.36 KM | |
| Fakenham Infant And Nursery School | Academy Converter | 0.44 KM | |
| Fakenham Junior School | Academy Converter | 0.84 KM | |
| Duke Of Lancaster School | Free Schools Special | 1.19 KM | |
| Fakenham Academy | Academy Sponsor Led | Good | 1.68 KM |
Images
Nearby Streets
| Name | Average Price | Average Sqft | Distance |
|---|---|---|---|
| Magnolia Close | £ 475,000 | 0 | 0.00 KM |
| Buckenham Close | £ 0 | 0 | 0.00 KM |
| Lancaster Avenue | £ 0 | 0 | 0.00 KM |
| Elizabeth Avenue | £ 399,950 | 0 | 0.00 KM |
| Charles Road | £ 250,000 | 0 | 0.00 KM |
Nearby Listings
| Address | Price | Type | Score | Distance |
|---|---|---|---|---|
| Driftlands, Fakenham | £ 330,000 | BUY | 7 / 10 | 0.00 KM |
| Driftlands, Fakenham, Norfolk, NR21 8EB | £ 255,000 | BUY | 7 / 10 | 0.10 KM |
| Driftlands, Fakenham, Norfolk, NR21 8EB | £ 190,000 | BUY | Unknown | 0.10 KM |
| Driftlands, FAKENHAM | £ 300,000 | BUY | 7 / 10 | 0.10 KM |
| Driftlands, Fakenham, Norfolk, NR21 | £ 395,000 | BUY | 6 / 10 | 0.10 KM |
Nearby Properties
| Address | Price | Distance |
|---|---|---|
| 4a Driftlands | £ 165,000 | 0.10 KM |
| 6 Driftlands | £ 152,000 | 0.10 KM |
| 4 Driftlands | £ 185,000 | 0.10 KM |
| 42 Driftlands | £ 265,000 | 0.10 KM |
| 21 Driftlands | £ 180,000 | 0.10 KM |