Haverhill Road, Hyde Farm Estate, London, SW12
By Foxtons
£ 1,000,000
Reviews
4 out of 5 stars
Foxtons says ..
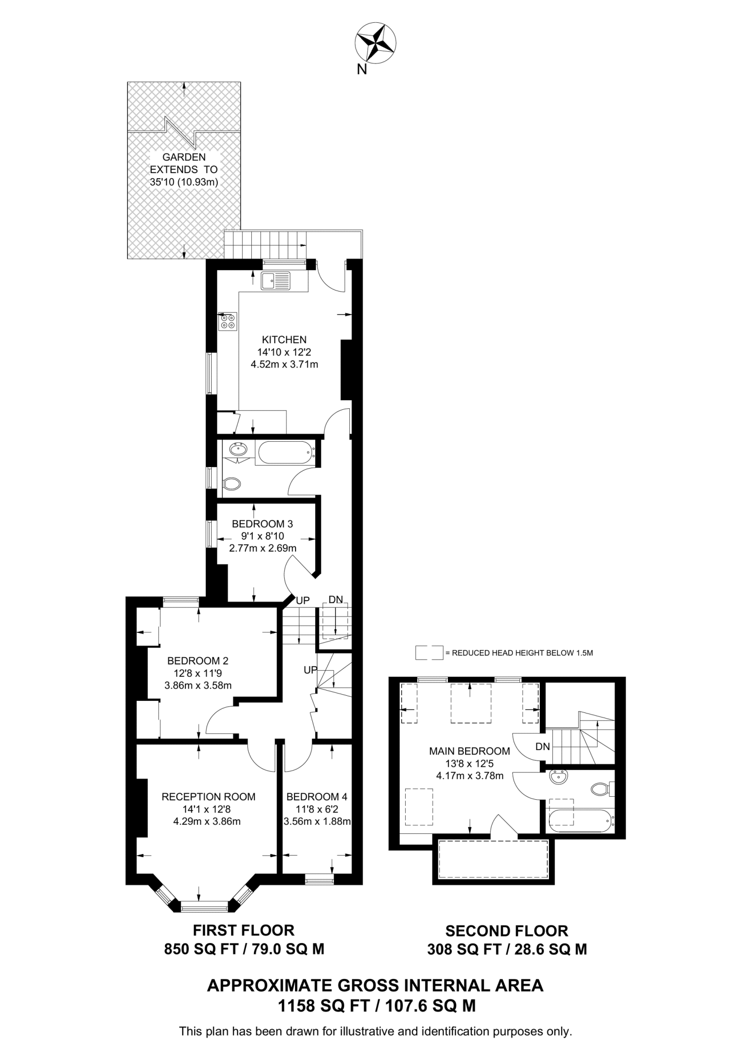
This gorgeous split level flat is set over the 1st and 2nd floor and offers 4 wonderful double bedrooms, a private garden, separate integrated kitchen and a beautiful reception room with bay window.
Property Oracle says ..
This property is located on Haverhill Road in the Hyde Farm Estate, London, SW12. The area benefits from being close to several highly-rated primary schools such as Henry Cavendish and Telferscot Primary School, both rated as outstanding by Ofsted. Transport links are also convenient, with Balham station approximately 1.26km away, providing access to the Southern line. The property itself is a four-bedroom house with two bathrooms, spanning 1,158 sqft on a plot of 3,510 sqft. Based on the images provided, the property appears to be well-maintained and recently renovated, with a modern kitchen and bathrooms. The presence of a garden adds to its appeal. Comparing the list price of £1,000,000 to the average price of £794,343 and average price per sqft of £768 in the area, the property seems slightly overpriced, considering comparable properties in the area. However, the larger plot size and renovated condition could justify a higher price.
Therefore, we give this property 8 / 10. *Disclaimer: This is our option and does constitute a recommendation or financial advice. Do your own research. *
- Price
- 7
- Condition
- 9
- Location
- 9
- Land
- 8
- Bedrooms
- 4
- Bathrooms
- 2
- Sqft (est)
- 1,158.00
- Lot (est)
- 3,510.00
The heatmap indicates the level of crime in the area. The color of the heatmap indicates the crime severity and recency.
Metrics Year-on-Year
- Average area value
- 1,013,333.00 £Increased by 57.05 %
- Est sale value
- 1,111,680.00 £Increased by 32.60 %
- Average area rental value
- 2,574.00 £/moDecreased by 0.85 %
- Est letting value
- 2,316.00 £/moUnchanged by 0.00 %
- Est rental Yield
- 3.05 %Decreased by 36.85 %
- Crime Rate
- 2.00 %Unchanged by 0.00 %
Agent Activity
Foxtons created the listing.
Nearby Schools
| Name | Type | Ofsted | Distance |
|---|---|---|---|
| Henry Cavendish Primary School | Community School | Outstanding | 0.33 KM |
| Telferscot Primary School | Community School | Outstanding | 0.44 KM |
| The Michael Tippett College | Special Post 16 Institution | 0.48 KM | |
| London Steiner School | Other Independent School | Inadequate | 0.50 KM |
| The Weir Link Children'S Centre | Children's Centre | 0.57 KM |
Images
Nearby Streets
| Name | Average Price | Average Sqft | Distance |
|---|---|---|---|
| Margaret Rutherford Place | £ 0 | 0 | 0.00 KM |
| Zennor Road | £ 0 | 0 | 0.00 KM |
| Mortimer Close | £ 716,667 | 0 | 0.00 KM |
| Ryde Vale | £ 375,000 | 0 | 0.00 KM |
| Oakmead Road | £ 0 | 0 | 0.00 KM |
Nearby Transport
| Name | NLC | TLC | Distance |
|---|---|---|---|
| Balham | 5399 | BAL | 1.26 KM |
| Streatham Hill | 5435 | SRH | 1.60 KM |
| Streatham | 5383 | STE | 2.12 KM |
| Wandsworth Common | 5395 | WSW | 2.50 KM |
| Streatham Common | 5384 | SRC | 2.69 KM |
Nearby Listings
| Address | Price | Type | Score | Distance |
|---|---|---|---|---|
| Haverhill Road, Hyde Farm Estate, London, SW12 | £ 1,000,000 | BUY | 8 / 10 | 0.00 KM |
| Emmanuel Road, Balham | £ 880,000 | BUY | 7 / 10 | 0.05 KM |
| Haverhill Road, Balham | £ 950,000 | BUY | 8 / 10 | 0.05 KM |
| Emmanuel Road, SW12 | £ 775,000 | BUY | 6 / 10 | 0.07 KM |
| Emmanuel Road, London, SW12 | £ 550,000 | BUY | 6 / 10 | 0.07 KM |
Nearby Properties
| Address | Price | Distance |
|---|---|---|
| 73a Haverhill Road | £ 665,000 | 0.02 KM |
| 97 Haverhill Road | £ 595,000 | 0.02 KM |
| 87a Haverhill Road | £ 211,000 | 0.02 KM |
| 101 Haverhill Road | £ 562,000 | 0.02 KM |
| 55 Haverhill Road | £ 1,200,000 | 0.02 KM |