James.Dean says ..
In a quiet residential area is this great, two bed, semi-detached house. An ideal starter home or investment it also benefits from a garage, parking and easily managed gardens.
Property Oracle says ..
Therefore, we give this property 7 / 10. *Disclaimer: This is our option and does constitute a recommendation or financial advice. Do your own research. *
- Price
- 7
- Condition
- 8
- Location
- 7
- Land
- 7
- Bedrooms
- 2
- Bathrooms
- 0
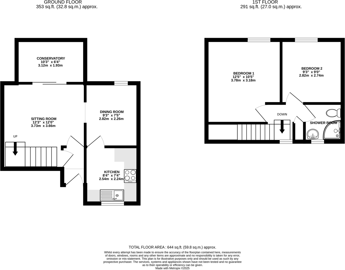
- Sqft (est)
- 556.00
The heatmap indicates the level of crime in the area. The color of the heatmap indicates the crime severity and recency.
Metrics Year-on-Year
- Average area value
- 311,704.00 £Increased by 34.17 %
- Est sale value
- 203,496.00 £Increased by 10.57 %
- Average area rental value
- 1,067.00 £/moDecreased by 19.35 %
- Est letting value
- 556.00 £/moUnchanged by 0.00 %
- Est rental Yield
- 4.11 %Decreased by 39.82 %
- Crime Rate
- 4.00 %Unchanged by 0.00 %
from 232,321.00 £
from 184,036.00 £
from 1,323.00 £/mo
from 556.00 £/mo
from 6.83 %
from 4.00 %
Agent Activity
James.Dean created the listing.
Nearby Schools
| Name | Type | Ofsted | Distance |
|---|---|---|---|
| Priory C.I.W. School | Welsh Establishment | 0.57 KM | |
| Mount Street C.P. Junior | Welsh Establishment | 0.90 KM | |
| Mount Street C.P. Infants | Welsh Establishment | 0.96 KM | |
| Brecon High School | Welsh Establishment | 1.15 KM | |
| Ysgol Y Bannau | Welsh Establishment | 1.27 KM |
Images
Nearby Streets
| Name | Average Price | Average Sqft | Distance |
|---|---|---|---|
| Pontwillim | £ 320,556 | 0 | 0.00 KM |
| Beech Grove | £ 327,714 | 0 | 0.00 KM |
| Maes-y-Ffynnon | £ 137,500 | 0 | 0.00 KM |
| Danycrug | £ 130,000 | 0 | 0.00 KM |
| Bron-y-Crug | £ 150,000 | 0 | 0.00 KM |
Nearby Listings
| Address | Price | Type | Score | Distance |
|---|---|---|---|---|
| Pontwilym, Brecon, LD3 | £ 280,000 | BUY | 7 / 10 | 0.00 KM |
| Pontwilym, Brecon, LD3 | £ 250,000 | BUY | 5 / 10 | 0.00 KM |
| Pontwilym, Brecon, Powys. | £ 240,000 | BUY | 7 / 10 | 0.00 KM |
| Pontwilym, Brecon, LD3 | £ 245,000 | BUY | 7 / 10 | 0.00 KM |
| Parc Pendre, Brecon, LD3 | £ 295,000 | BUY | Unknown | 0.13 KM |
Nearby Properties
| Address | Price | Distance |
|---|---|---|
| 81 Pontwilym | £ 236,000 | 0.01 KM |
| 47 Pontwilym | £ 177,000 | 0.01 KM |
| 68 Pontwilym | £ 177,500 | 0.01 KM |
| 65 Pontwilym | £ 155,000 | 0.01 KM |
| 63 Pontwilym | £ 166,000 | 0.01 KM |