Camp Road, St. Albans, Hertfordshire, AL1
By Frost's Estate Agents
£ 270,000
Reviews
3 out of 5 stars
Frost's Estate Agents says ..
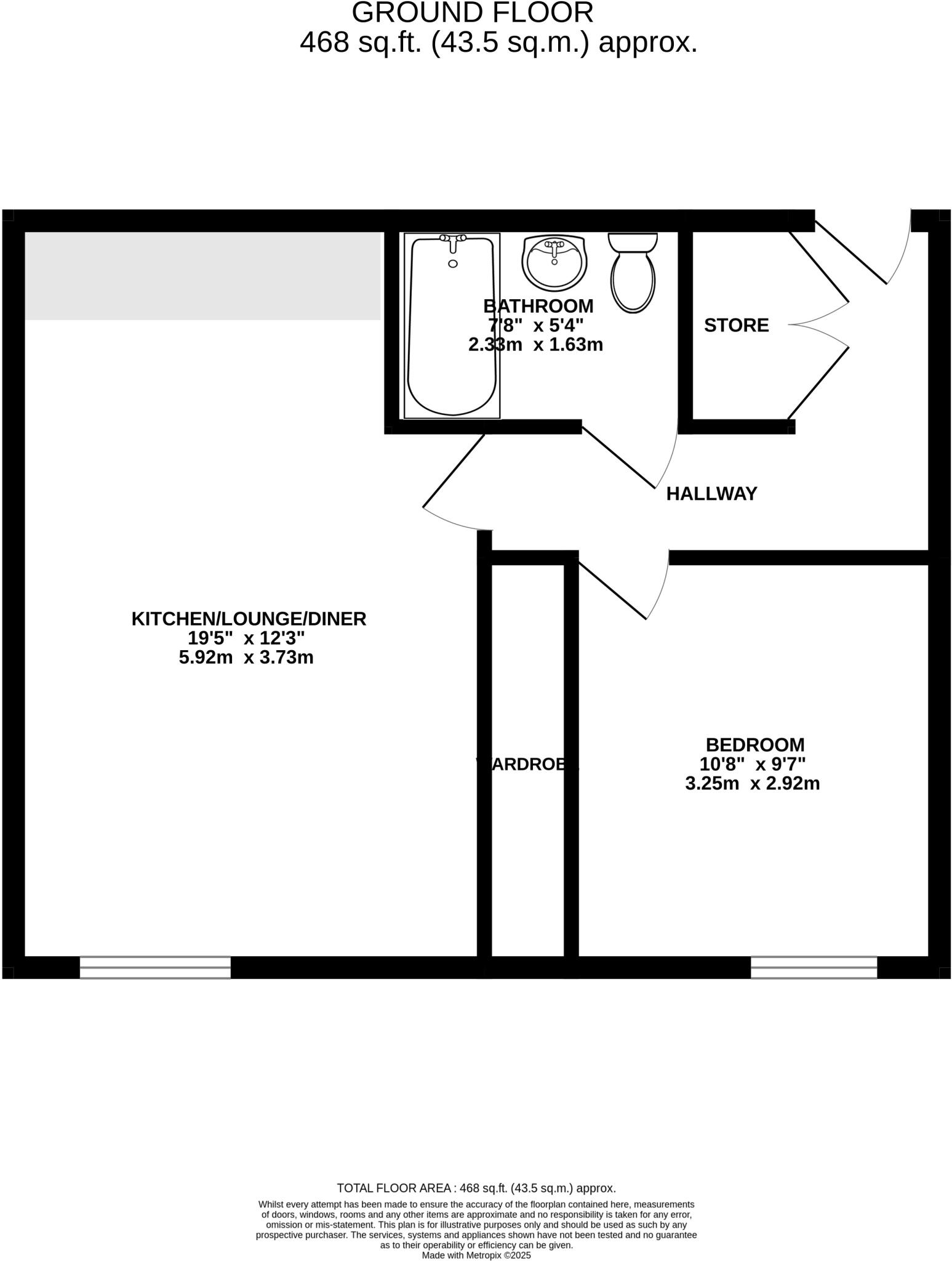
A one bedroom first floor apartment providing open-plan living with integrated appliances in the kitchen, a double bedroom and modern bathroom. This apartment is located 0.5 miles from St Albans city station and 0.9 miles from the city centre. The apartment comprises internally of an e...
Property Oracle says ..
This property is a one-bedroom apartment located in St. Albans, Hertfordshire. The apartment appears modern and well-maintained, based on the provided images. The location is convenient, with nearby transportation links and schools. However, the lack of information regarding square footage and plot size makes it difficult to fully assess the value. The list price is lower than the average price for the area, but comparable to other nearby apartments. More information is needed to provide a complete analysis.
Therefore, we give this property 6 / 10. *Disclaimer: This is our option and does constitute a recommendation or financial advice. Do your own research. *
- Price
- 7
- Condition
- 9
- Location
- 8
- Land
- 3
- Bedrooms
- 1
- Bathrooms
- 1
- Sqft (est)
- 372.35
- Lot (est)
- 468.00
The heatmap indicates the level of crime in the area. The color of the heatmap indicates the crime severity and recency.
Metrics Year-on-Year
- Average area value
- 445,205.00 £Decreased by 3.69 %
- Est sale value
- 240,165.75 £Increased by 20.34 %
- Average area rental value
- 1,836.00 £/moIncreased by 4.79 %
- Est letting value
- 744.70 £/moUnchanged by 0.00 %
- Est rental Yield
- 4.95 %Increased by 8.79 %
- Crime Rate
- 5.00 %Unchanged by 0.00 %
Agent Activity
Frost's Estate Agents created the listing.
Nearby Schools
| Name | Type | Ofsted | Distance |
|---|---|---|---|
| St Alban & St Stephen Catholic Primary School & Nursery | Voluntary Aided School | Outstanding | 0.34 KM |
| Fleetville Junior School | Academy Converter | 0.36 KM | |
| Sa8 Fleetville Family Centre | Children's Centre | 0.41 KM | |
| Cunningham Hill Infant School | Community School | Outstanding | 0.59 KM |
| Cunningham Hill Junior School | Community School | Outstanding | 0.59 KM |
Images
Nearby Streets
| Name | Average Price | Average Sqft | Distance |
|---|---|---|---|
| Ramsey Close | £ 0 | 0 | 0.00 KM |
| Park Avenue | £ 0 | 0 | 0.00 KM |
| Shirley Road | £ 0 | 0 | 0.00 KM |
| De Novo Place | £ 0 | 0 | 0.00 KM |
| Buttermere Close | £ 0 | 0 | 0.00 KM |
Nearby Transport
| Name | NLC | TLC | Distance |
|---|---|---|---|
| St Albans City | 1548 | SAC | 1.16 KM |
| St Albans Abbey | 1562 | SAA | 2.86 KM |
| Park Street | 1561 | PKT | 3.69 KM |
| How Wood (Hertfordshire) | 1563 | HWW | 4.65 KM |
| Bricket Wood | 1560 | BWO | 6.74 KM |
Nearby Listings
| Address | Price | Type | Score | Distance |
|---|---|---|---|---|
| Camp Road, St. Albans, Hertfordshire, AL1 | £ 270,000 | BUY | 6 / 10 | 0.00 KM |
| Camp Road, St. Albans, Hertfordshire, AL1 | £ 290,000 | BUY | 5 / 10 | 0.00 KM |
| Apex House, 81 Camp Road, St. Albans, Hertfordshire | £ 290,000 | BUY | 7 / 10 | 0.00 KM |
| Camp Road, St. Albans, Hertfordshire, AL1 | £ 475,000 | BUY | 6 / 10 | 0.00 KM |
| Camp Road, St. Albans, Hertfordshire, AL1 | £ 285,000 | BUY | Unknown | 0.00 KM |
Nearby Properties
| Address | Price | Distance |
|---|---|---|
| 45 Campfield Road | £ 650,000 | 0.21 KM |
| 30 Hawkshill | £ 148,000 | 0.21 KM |
| 11 Hawkshill | £ 175,000 | 0.21 KM |
| 17 Hawkshill | £ 145,500 | 0.21 KM |
| 39 Hawkshill | £ 92,000 | 0.21 KM |