Westbourne Gardens, Hyndland, Glasgow
RE

Westbourne Gardens, Hyndland, Glasgow

By Rettie & Co

£ 760,000

Reviews

4 out of 5 stars

Rettie & Co says ..

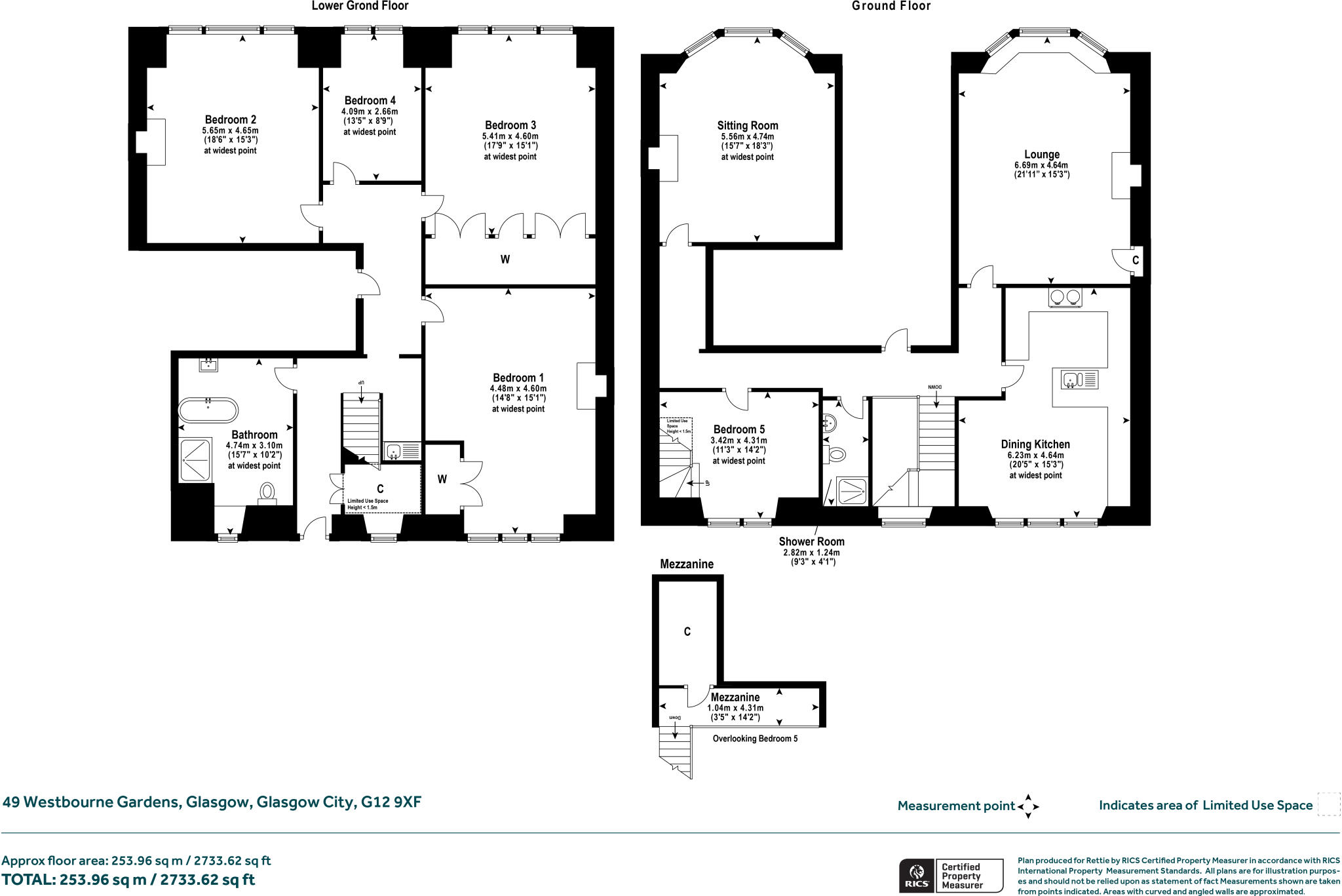
Extending to circa 2700 square feet this is an extremely spacious ground and garden level conversion which forms part of an elegant three storey blonde sandstone townhouse. 49 Westbourne gardens is of a rarely available style due to having a double frontage and this results in a beauti...

Property Oracle says ..

This property is a large four bedroom apartment located in Westbourne Gardens, Hyndland, Glasgow. The apartment is in a traditional building and has been well maintained. It benefits from a large garden to the rear. The location is excellent, being close to Hyndland train station and several other amenities. The price is high, but the property is of high quality and in a sought-after location.

Therefore, we give this property 8 / 10. *Disclaimer: This is our option and does constitute a recommendation or financial advice. Do your own research. *

Price
7
Condition
8
Location
9
Land
8
Bedrooms
4
Bathrooms
3
Sqft (est)
2,108.00
Lot (est)
2,733.62

The heatmap indicates the level of crime in the area. The color of the heatmap indicates the crime severity and recency.

Metrics Year-on-Year

Average area value
273,565.00 £
Increased by 3.79 %
from 263,578.00 £
Est sale value
594,456.00 £
Increased by 9.73 %
from 541,756.00 £
Average area rental value
1,350.00 £/mo
Decreased by 11.01 %
from 1,517.00 £/mo
Est letting value
2,108.00 £/mo
Unchanged by 0.00 %
from 2,108.00 £/mo
Est rental Yield
5.92 %
Decreased by 14.33 %
from 6.91 %
Crime Rate
0.00 %
from 0.00 %

Agent Activity

  • Rettie & Co created the listing.

Images

Picture No. 38 Picture No. 42 Picture No. 43 Picture No. 44 Picture No. 47 Picture No. 46 Picture No. 50 Picture No. 49 Picture No. 48 Picture No. 71 Picture No. 52 Picture No. 53 Picture No. 69 Picture No. 70 Picture No. 83 Picture No. 72 Picture No. 73 Picture No. 74 Picture No. 80 Picture No. 54 Picture No. 55 Picture No. 56 Picture No. 63 Picture No. 62 Picture No. 64 Picture No. 57 Picture No. 58 Picture No. 59 Picture No. 60 Picture No. 61 Picture No. 82 Picture No. 65 Picture No. 66 Picture No. 76 Picture No. 77 Picture No. 41 Picture No. 40 Picture No. 35 Picture No. 36 Picture No. 37 Picture No. 67

Nearby Streets

NameAverage PriceAverage SqftDistance
Hughenden Road £ 000.00 KM
Devonshire Gardens Lane £ 000.00 KM
Hughenden Drive £ 000.00 KM
Belhaven Terrace West Lane £ 450,00000.00 KM
Redlands Terrace Lane £ 000.00 KM

Nearby Transport

NameNLCTLCDistance
Hyndland9845HYN1.28 KM
Partick9917PTK1.41 KM
Kelvindale1655KVD1.53 KM
Maryhill9957MYH1.83 KM
Anniesland9972ANL2.26 KM

Nearby Listings

AddressPriceTypeScoreDistance
Westbourne Gardens, Hyndland, Glasgow £ 760,000BUY8 / 100.00 KM
Hyndland Road, Main Door Garden Flat, Hyndland, Glasgow, G12 9UZ £ 309,000BUYUnknown0.07 KM
Lancaster Terrace, Hyndland, Glasgow £ 635,000BUYUnknown0.08 KM
Hyndland Road, Flat 1, Hyndland, Glasgow, G12 9UY £ 329,000BUYUnknown0.09 KM
Hyndland Road, Ground Flat, Hyndland, Glasgow, G12 9UY £ 289,000BUY7 / 100.09 KM