Buck Lane, Kingsbury, London, NW9
By Acorn Properties Nwl
£ 350,000
Reviews
3 out of 5 stars
Acorn Properties Nwl says ..
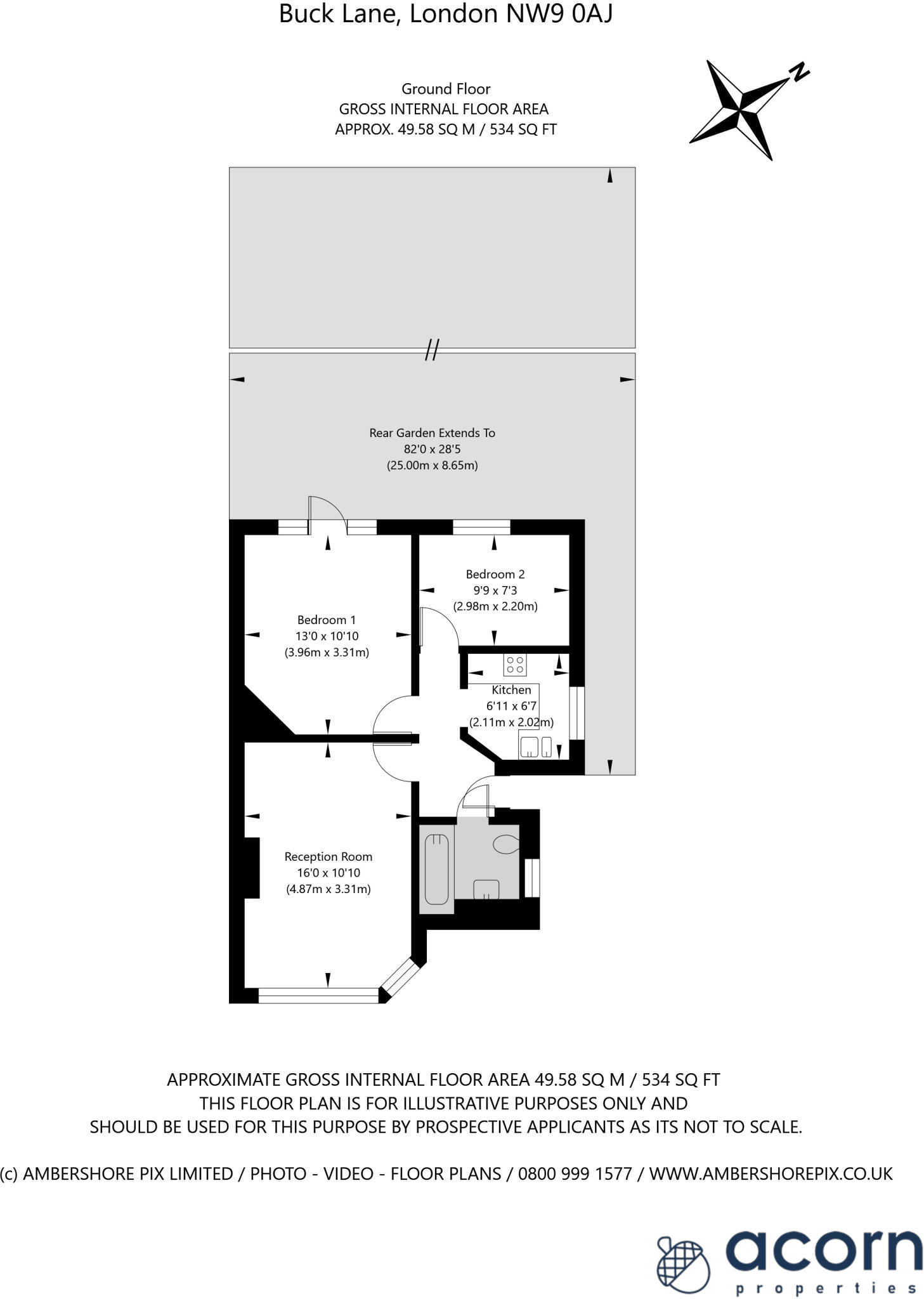
Acorn Properties are delighted to present this spacious Two-Bedroom Ground Floor Garden Maisonette, ideally located on Buck Lane. The property offers: Two generous double bedrooms Bright reception room Separate fitted kitchen Bathroom/WC Private 60ft rear garde...
Property Oracle says ..
This is a two-bedroom maisonette located in Kingsbury, London. The property offers 534 sqft of living space and includes a reception room, kitchen, and bathroom. While the interior appears to be in fair condition, the exterior and garden require some attention. The property is situated in a convenient location with access to local schools and transportation. The asking price of £350,000 seems reasonable given the location and size of the property, but potential buyers should factor in the cost of renovations.
Therefore, we give this property 6 / 10. *Disclaimer: This is our option and does constitute a recommendation or financial advice. Do your own research. *
- Price
- 7
- Condition
- 6
- Location
- 7
- Land
- 7
- Bedrooms
- 2
- Bathrooms
- 1
- Sqft (est)
- 534.00
The heatmap indicates the level of crime in the area. The color of the heatmap indicates the crime severity and recency.
Metrics Year-on-Year
- Average area value
- 537,278.00 £Decreased by 8.02 %
- Est sale value
- 210,396.00 £Decreased by 39.01 %
- Average area rental value
- 1,873.00 £/moDecreased by 4.63 %
- Est letting value
- 534.00 £/moDecreased by 50.00 %
- Est rental Yield
- 4.18 %Increased by 3.72 %
- Crime Rate
- 6.00 %Unchanged by 0.00 %
Agent Activity
Acorn Properties Nwl created the listing.
Nearby Schools
| Name | Type | Ofsted | Distance |
|---|---|---|---|
| Oliver Goldsmith Primary School | Community School | Good | 0.41 KM |
| Bnos Beis Yaakov Primary School | Other Independent School | Good | 0.46 KM |
| Brent River College | Pupil Referral Unit | Good | 0.72 KM |
| First Rung Independent School | Other Independent School | Good | 0.77 KM |
| Beis Yaakov Primary School | Voluntary Aided School | Good | 0.80 KM |
Images
Nearby Streets
| Name | Average Price | Average Sqft | Distance |
|---|---|---|---|
| The Retreat | £ 0 | 0 | 0.00 KM |
| Grove Crescent | £ 0 | 0 | 0.00 KM |
| Green Close | £ 0 | 0 | 0.00 KM |
| Old Kenton Lane | £ 0 | 0 | 0.00 KM |
| Westfield Close | £ 0 | 0 | 0.00 KM |
Nearby Transport
| Name | NLC | TLC | Distance |
|---|---|---|---|
| Hendon | 1522 | HEN | 2.49 KM |
| Mill Hill Broadway | 1527 | MIL | 3.34 KM |
| Wembley Stadium | 1509 | WCX | 4.41 KM |
| Stonebridge Park | 1454 | SBP | 4.88 KM |
| Wembley Central | 1423 | WMB | 5.40 KM |
Nearby Listings
| Address | Price | Type | Score | Distance |
|---|---|---|---|---|
| Buck Lane, Kingsbury, London, NW9 | £ 350,000 | BUY | 6 / 10 | 0.00 KM |
| Buck Lane, Kingsbury, London, NW9 | £ 335,000 | BUY | 7 / 10 | 0.02 KM |
| Buck Lane, London, NW9 | £ 725,000 | BUY | 7 / 10 | 0.05 KM |
| Stonegate Court, Buck Lane, Kingsbury, London, NW9 | £ 260,000 | BUY | 6 / 10 | 0.06 KM |
| Buck Lane, London, NW9 | £ 695,000 | BUY | Unknown | 0.09 KM |
Nearby Properties
| Address | Price | Distance |
|---|---|---|
| 92 Buck Lane | £ 240,000 | 0.00 KM |
| 90 Buck Lane | £ 219,950 | 0.01 KM |
| 86 Buck Lane | £ 270,000 | 0.01 KM |
| 81 Buck Lane | £ 299,950 | 0.04 KM |
| 79 Buck Lane | £ 275,000 | 0.04 KM |