Branksome Avenue, Stanford-le-Hope, Essex
By Tinsley & Co
£ 675,000
Reviews
3 out of 5 stars
Tinsley & Co says ..
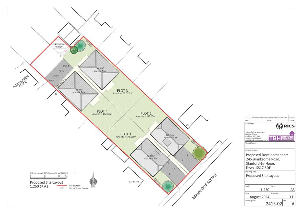
Tinsley & Co through our Land and New Homes Department are pleased to offer this excellent development opportunity occupying a 65' width plot of 0.31 acre situated in a popular turning in Stanford-le-Hope. Thurrock Council have granted permission ref 24/01250/FUL for the existing bungalow to ...
Property Oracle says ..
The property is listed as land with proposed development for four plots, situated on Branksome Avenue in Stanford-le-Hope, Essex. The location offers good access to local schools and transportation links. However, the existing property on the land requires extensive renovation. The asking price of £675,000 appears reasonable considering it includes planning permission for a new development, but prospective buyers should factor in construction costs.
Therefore, we give this property 6 / 10. *Disclaimer: This is our option and does constitute a recommendation or financial advice. Do your own research. *
- Price
- 6
- Condition
- 3
- Location
- 7
- Land
- 8
- Bedrooms
- 0
- Bathrooms
- 0
The heatmap indicates the level of crime in the area. The color of the heatmap indicates the crime severity and recency.
Metrics Year-on-Year
- Average area value
- 234,983.00 £Decreased by 47.41 %
- Average area rental value
- 1,345.00 £/moDecreased by 7.62 %
- Est rental Yield
- 6.87 %Increased by 75.70 %
- Crime Rate
- 4.00 %Unchanged by 0.00 %
Agent Activity
Tinsley & Co created the listing.
Nearby Schools
| Name | Type | Ofsted | Distance |
|---|---|---|---|
| Giffards Primary School | Academy Converter | Good | 0.86 KM |
| Ortu Gable Hall School | Academy Converter | Requires improvement | 0.94 KM |
| Arthur Bugler Primary School | Academy Converter | Good | 0.96 KM |
| Graham James Primary Academy | Academy Converter | Good | 1.08 KM |
| Abbots Hall Childrens Centre P2-5 | Children's Centre Linked Site | 1.14 KM |
Images
Nearby Streets
| Name | Average Price | Average Sqft | Distance |
|---|---|---|---|
| Willowhill | £ 450,000 | 0 | 0.00 KM |
| Orchard Way | £ 500,000 | 0 | 0.00 KM |
| Morley Link | £ 390,000 | 0 | 0.00 KM |
| Racheal Clarke Close | £ 0 | 0 | 0.00 KM |
| Racheal Clarke Road | £ 325,000 | 0 | 0.00 KM |
Nearby Transport
| Name | NLC | TLC | Distance |
|---|---|---|---|
| Stanford-Le-Hope | 7458 | SFO | 2.82 KM |
| Laindon | 7445 | LAI | 4.33 KM |
| Basildon | 7494 | BSO | 4.35 KM |
| East Tilbury | 7471 | ETL | 6.13 KM |
| Pitsea | 7452 | PSE | 7.86 KM |
Nearby Listings
| Address | Price | Type | Score | Distance |
|---|---|---|---|---|
| Branksome Avenue, Stanford-le-Hope, Essex | £ 675,000 | BUY | 6 / 10 | 0.00 KM |
| Balstonia Drive, Stanford-le-Hope | £ 600,000 | BUY | 7 / 10 | 0.09 KM |
| Branksome Avenue, Stanford-Le-Hope, SS17 | £ 550,000 | BUY | 7 / 10 | 0.10 KM |
| Aldria Road, Stanford-le-Hope, Essex, SS17 | £ 750,000 | BUY | 7 / 10 | 0.14 KM |
| Willow Hill, Stanford-Le-Hope, SS17 | £ 500,000 | BUY | 7 / 10 | 0.14 KM |
Nearby Properties
| Address | Price | Distance |
|---|---|---|
| 186 Branksome Avenue | £ 515,000 | 0.02 KM |
| 243 Branksome Avenue | £ 125,000 | 0.02 KM |
| Sherwood | £ 275,000 | 0.14 KM |
| 45 Balstonia Drive | £ 320,000 | 0.15 KM |
| 72 Balstonia Drive | £ 160,000 | 0.15 KM |