HA
Holbache Court, Oswestry, SY11
By Halls Estate Agents
£ 190,000
Reviews
2 out of 5 stars
Halls Estate Agents says ..
Nestled in the charming area of Holbache Court, Oswestry, this delightful apartment offers a unique blend of contemporary living within a historical building. With its prime location on the fringe of the town centre, residents can enjoy the convenience of local amenities while being just a stone...
Property Oracle says ..
Therefore, we give this property 5 / 10. *Disclaimer: This is our option and does constitute a recommendation or financial advice. Do your own research. *
- Price
- 6
- Condition
- 9
- Location
- 7
- Land
- 1
- Bedrooms
- 2
- Bathrooms
- 1
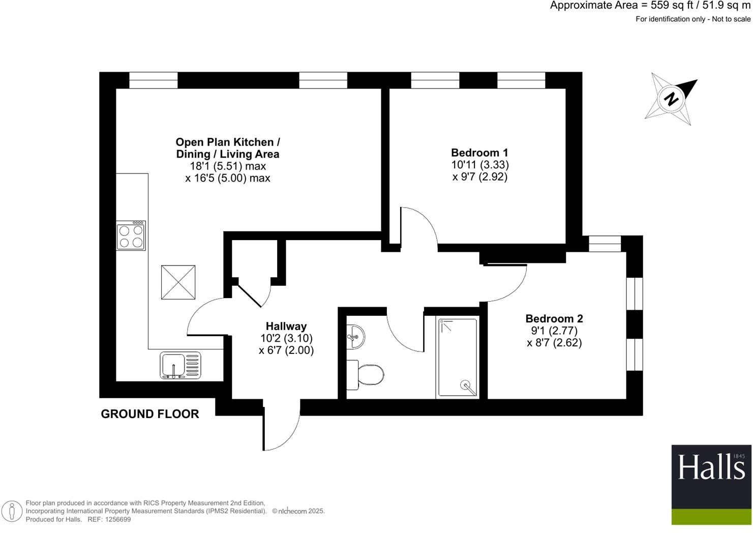
- Sqft (est)
- 559.00
The heatmap indicates the level of crime in the area. The color of the heatmap indicates the crime severity and recency.
Metrics Year-on-Year
- Average area value
- 243,278.00 £Decreased by 3.15 %
- Est sale value
- 174,967.00 £Increased by 28.81 %
- Average area rental value
- 1,186.00 £/moIncreased by 12.42 %
- Est letting value
- 559.00 £/moUnchanged by 0.00 %
- Est rental Yield
- 5.85 %Increased by 16.07 %
- Crime Rate
- 6.00 %Unchanged by 0.00 %
from 251,196.00 £
from 135,837.00 £
from 1,055.00 £/mo
from 559.00 £/mo
from 5.04 %
from 6.00 %
Agent Activity
Halls Estate Agents created the listing.
Nearby Schools
| Name | Type | Ofsted | Distance |
|---|---|---|---|
| Our Lady And St Oswald'S Catholic Primary School | Voluntary Aided School | Good | 0.25 KM |
| Oswestry School | Other Independent School | 0.40 KM | |
| Shropshire Nw Early Help Family Hub | Children's Centre | 0.53 KM | |
| The Marches School | Academy Converter | Good | 0.59 KM |
| Woodside Primary School | Academy Converter | Good | 1.20 KM |
Images
Nearby Streets
| Name | Average Price | Average Sqft | Distance |
|---|---|---|---|
| Jennings Road | £ 157,500 | 0 | 0.00 KM |
| Lord Street | £ 0 | 0 | 0.00 KM |
| Chapel Street | £ 0 | 0 | 0.00 KM |
| Castle Street | £ 127,500 | 0 | 0.00 KM |
| Mount Crescent | £ 369,950 | 0 | 0.00 KM |
Nearby Transport
| Name | NLC | TLC | Distance |
|---|---|---|---|
| Gobowen | 4457 | GOB | 4.70 KM |
| Chirk | 4449 | CRK | 8.37 KM |
Nearby Listings
| Address | Price | Type | Score | Distance |
|---|---|---|---|---|
| Holbache Court, Oswestry, SY11 | £ 190,000 | BUY | 5 / 10 | 0.00 KM |
| Apartment 6, Holbache Court | £ 279,950 | BUY | 6 / 10 | 0.02 KM |
| Welsh Walls, Oswestry | £ 515,000 | BUY | 7 / 10 | 0.03 KM |
| Apartment 3, Holbache Court | £ 179,950 | BUY | 5 / 10 | 0.03 KM |
| Apartment 9, Holbache Court | £ 239,950 | BUY | 6 / 10 | 0.05 KM |
Nearby Properties
| Address | Price | Distance |
|---|---|---|
| 8 Holbache Road | £ 64,000 | 0.05 KM |
| 16 Holbache Road | £ 182,500 | 0.05 KM |
| 11 Holbache Road | £ 166,650 | 0.05 KM |
| 2 Holbache Road | £ 161,300 | 0.05 KM |
| 1 Holbache Road | £ 225,000 | 0.05 KM |