Morton Way, Thornbury, BS35 3TS
MI

Morton Way, Thornbury, BS35 3TS

By Miller Homes Midlands

£ 415,000

Reviews

3 out of 5 stars

Miller Homes Midlands says ..

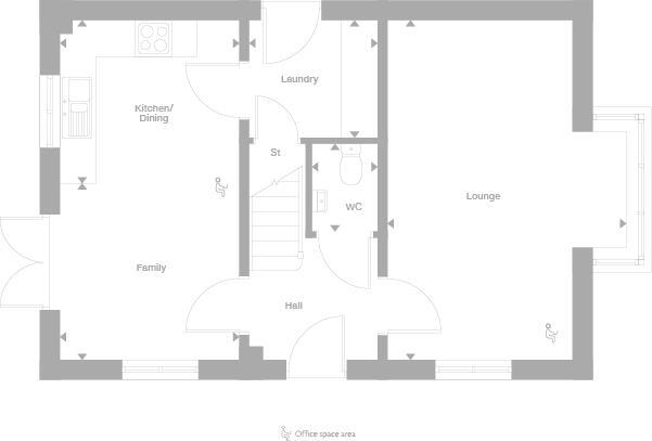
The Eaton - Available with Assisted Move! Ideal for moving up the ladder18FT lounge with bay window, open plan KITCHEN/DINER, LAUNDRY ROOM, principal bedroom with EN-SUITE, GARAGE.

Property Oracle says ..

This is a modern, detached property located in a desirable area of Thornbury. The property is in excellent condition and has a good-sized garden. However, the price is above the average for the area, suggesting it may be overpriced.

Therefore, we give this property 7 / 10. *Disclaimer: This is our option and does constitute a recommendation or financial advice. Do your own research. *

Price
6
Condition
9
Location
7
Land
7
Bedrooms
3
Bathrooms
0
Sqft (est)
730.00

The heatmap indicates the level of crime in the area. The color of the heatmap indicates the crime severity and recency.

Metrics Year-on-Year

Average area value
352,772.00 £
Decreased by 10.24 %
from 393,011.00 £
Est sale value
287,620.00 £
Increased by 9.14 %
from 263,530.00 £
Average area rental value
1,200.00 £/mo
Decreased by 11.50 %
from 1,356.00 £/mo
Est letting value
730.00 £/mo
Unchanged by 0.00 %
from 730.00 £/mo
Est rental Yield
4.08 %
Decreased by 1.45 %
from 4.14 %
Crime Rate
5.00 %
Unchanged by 0.00 %
from 5.00 %

Agent Activity

  • Miller Homes Midlands created the listing.

Nearby Schools

NameTypeOfstedDistance
Crossways Junior SchoolCommunity SchoolGood1.36 KM
Crossways Infant SchoolCommunity SchoolGood1.39 KM
New Siblands SchoolAcademy Special Converter1.48 KM
Christ The King Catholic Primary School, ThornburyVoluntary Aided SchoolGood1.83 KM
Thornbury Children'S CentreChildren's Centre Linked Site2.32 KM

Images

Representative image Representative image Representative image Representative image Representative image Representative image Representative image Representative image Representative image Representative image Representative image Representative image

Nearby Streets

NameAverage PriceAverage SqftDistance
Ten Acres Road £ 407,23900.00 KM
Cleve Leaze £ 151,93000.00 KM
Clover Ground £ 000.00 KM
Cleve Wood Road £ 699,50000.00 KM
Tamar Close £ 000.00 KM

Nearby Listings

AddressPriceTypeScoreDistance
Morton Way, Thornbury, BS35 3TS £ 455,000BUYUnknown0.00 KM
Morton Way, Thornbury, BS35 3TS £ 415,000BUY7 / 100.00 KM
Morton Way, Thornbury, BS35 3TS £ 485,000BUY7 / 100.00 KM
Morton Way, Thornbury, BS35 3TS £ 420,000BUY8 / 100.00 KM
Morton Way, Thornbury, BS35 3TS £ 485,000BUY7 / 100.00 KM

Nearby Properties

AddressPriceDistance
4 The Slad £ 425,0000.29 KM
The Bungalow £ 375,0000.29 KM
5 The Slad £ 435,0000.30 KM
Greystones £ 435,0000.30 KM
The Laurels £ 560,0000.46 KM