Carter Jonas says ..
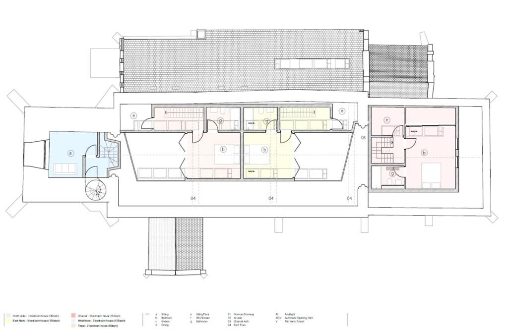
Chance to acquire a unique development opportunity to convert a historic church in a town centre location into 5 dwellings. Full planning permission was granted in November 2024 to convert the property, retaining the structure of the existing building.
Property Oracle says ..
Therefore, we give this property 4 / 10. *Disclaimer: This is our option and does constitute a recommendation or financial advice. Do your own research. *
- Price
- 3
- Condition
- 2
- Location
- 7
- Land
- 6
- Bedrooms
- 0
- Bathrooms
- 0
The heatmap indicates the level of crime in the area. The color of the heatmap indicates the crime severity and recency.
Metrics Year-on-Year
- Average area value
- 218,958.00 £Decreased by 7.69 %
- Average area rental value
- 1,112.00 £/moDecreased by 19.88 %
- Est rental Yield
- 6.09 %Decreased by 13.25 %
- Crime Rate
- 6.00 %Unchanged by 0.00 %
from 237,196.00 £
from 1,388.00 £/mo
from 7.02 %
from 6.00 %
Agent Activity
Carter Jonas created the listing.
Nearby Schools
| Name | Type | Ofsted | Distance |
|---|---|---|---|
| The Damara School | Other Independent Special School | 0.17 KM | |
| Thetford Grammar School | Other Independent School | 0.23 KM | |
| Diamond Academy | Academy Sponsor Led | 0.54 KM | |
| Queensway Infant Academy And Nursery | Academy Sponsor Led | 0.59 KM | |
| Thetford Children'S Centre (Phase 1) | Children's Centre | 0.69 KM |
Images
Nearby Streets
| Name | Average Price | Average Sqft | Distance |
|---|---|---|---|
| Roger Bigod Mews | £ 0 | 0 | 0.00 KM |
| Bridge Street | £ 0 | 0 | 0.00 KM |
| Bridges Walk | £ 0 | 0 | 0.00 KM |
| Hillary Road | £ 0 | 0 | 0.00 KM |
| Icknield Close | £ 0 | 0 | 0.00 KM |
Nearby Transport
| Name | NLC | TLC | Distance |
|---|---|---|---|
| Thetford | 7203 | TTF | 0.85 KM |
Nearby Listings
| Address | Price | Type | Score | Distance |
|---|---|---|---|---|
| Bury Road, Thetford, IP24 | £ 300,000 | BUY | 4 / 10 | 0.00 KM |
| Old Bury Road, Thetford | £ 300,000 | BUY | 7 / 10 | 0.11 KM |
| Bury Road, Thetford, IP24 | £ 180,000 | BUY | 7 / 10 | 0.14 KM |
| Hanbury Court, Thetford | £ 150,000 | BUY | 5 / 10 | 0.14 KM |
| Hanbury Court, Thetford | £ 90,000 | BUY | 5 / 10 | 0.14 KM |
Nearby Properties
| Address | Price | Distance |
|---|---|---|
| 3 Star Lane | £ 134,500 | 0.05 KM |
| 5 Star Lane | £ 185,000 | 0.05 KM |
| 25 Bury Road | £ 100,000 | 0.09 KM |
| 4 St Marys Court | £ 34,885 | 0.09 KM |
| 6 St Marys Court | £ 42,750 | 0.09 KM |