Valerian Close, New Rossington, Doncaster, Dn11
By The Property Hive
£ 315,000
Reviews
3 out of 5 stars
The Property Hive says ..
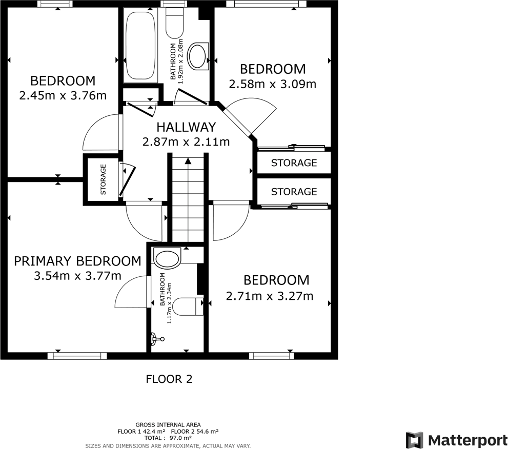
Tucked away in a quiet cul-de-sac in the sought-after area of New Rossington, this beautifully presented four-bedroom detached home on Valerian Close offers modern family living throughout. To the front, there's a driveway and garage providing ample off-road parking. At the heart of the home i...
Property Oracle says ..
Therefore, we give this property 7 / 10. *Disclaimer: This is our option and does constitute a recommendation or financial advice. Do your own research. *
- Price
- 7
- Condition
- 8
- Location
- 7
- Land
- 7
- Bedrooms
- 4
- Bathrooms
- 3
The heatmap indicates the level of crime in the area. The color of the heatmap indicates the crime severity and recency.
Metrics Year-on-Year
- Average area value
- 230,555.00 £Decreased by 9.92 %
- Average area rental value
- 928.00 £/moIncreased by 13.87 %
- Est rental Yield
- 4.83 %Increased by 26.44 %
- Crime Rate
- 17.00 %Unchanged by 0.00 %
from 255,933.00 £
from 815.00 £/mo
from 3.82 %
from 17.00 %
Agent Activity
The Property Hive created the listing.
Nearby Schools
| Name | Type | Ofsted | Distance |
|---|---|---|---|
| Pheasant Bank Academy | Academy Converter | Good | 0.99 KM |
| Grange Lane Infant Academy | Academy Converter | Good | 1.43 KM |
| Rossington Children'S Centre | Children's Centre | 1.67 KM | |
| Willow Primary School | Academy Sponsor Led | 2.05 KM | |
| St Joseph'S School, A Catholic Voluntary Academy | Academy Sponsor Led | Good | 2.55 KM |
Images
Nearby Streets
| Name | Average Price | Average Sqft | Distance |
|---|---|---|---|
| Valerian Close | £ 0 | 0 | 0.00 KM |
| Rowan Close | £ 0 | 0 | 0.00 KM |
| Collier Close | £ 0 | 0 | 0.00 KM |
| Bevin Close | £ 0 | 0 | 0.00 KM |
| Garland Road | £ 252,833 | 0 | 0.00 KM |
Nearby Transport
| Name | NLC | TLC | Distance |
|---|---|---|---|
| Doncaster | 6417 | DON | 6.96 KM |
| Kirk Sandall | 6527 | KKS | 9.23 KM |
| Bentley (South Yorkshire) | 8352 | BYK | 9.50 KM |
Nearby Listings
| Address | Price | Type | Score | Distance |
|---|---|---|---|---|
| Valerian Close, New Rossington, Doncaster, Dn11 | £ 315,000 | BUY | 7 / 10 | 0.00 KM |
| Valerian Close, Doncaster, DN11 | £ 107,500 | BUY | Unknown | 0.05 KM |
| Davy Road, Rossington | £ 240,000 | BUY | Unknown | 0.06 KM |
| Davy Road, New Rossington, Doncaster, South Yorkshire, DN11 0LQ | £ 180,000 | BUY | 7 / 10 | 0.06 KM |
| Davy Road, New Rossington, Doncaster | £ 290,000 | BUY | 7 / 10 | 0.08 KM |
Nearby Properties
| Address | Price | Distance |
|---|---|---|
| 123 Heatherfields Crescent | £ 230,000 | 0.43 KM |
| 19 Bankwood Crescent | £ 135,000 | 0.53 KM |
| 12 Bankwood Crescent | £ 52,000 | 0.53 KM |
| 35 Bankwood Crescent | £ 78,000 | 0.53 KM |
| 15 Bankwood Crescent | £ 90,000 | 0.53 KM |