Brean Down Avenue, Weston-Super-Mare
By Stephen & Co
£ 695,000
Reviews
3 out of 5 stars
Stephen & Co says ..
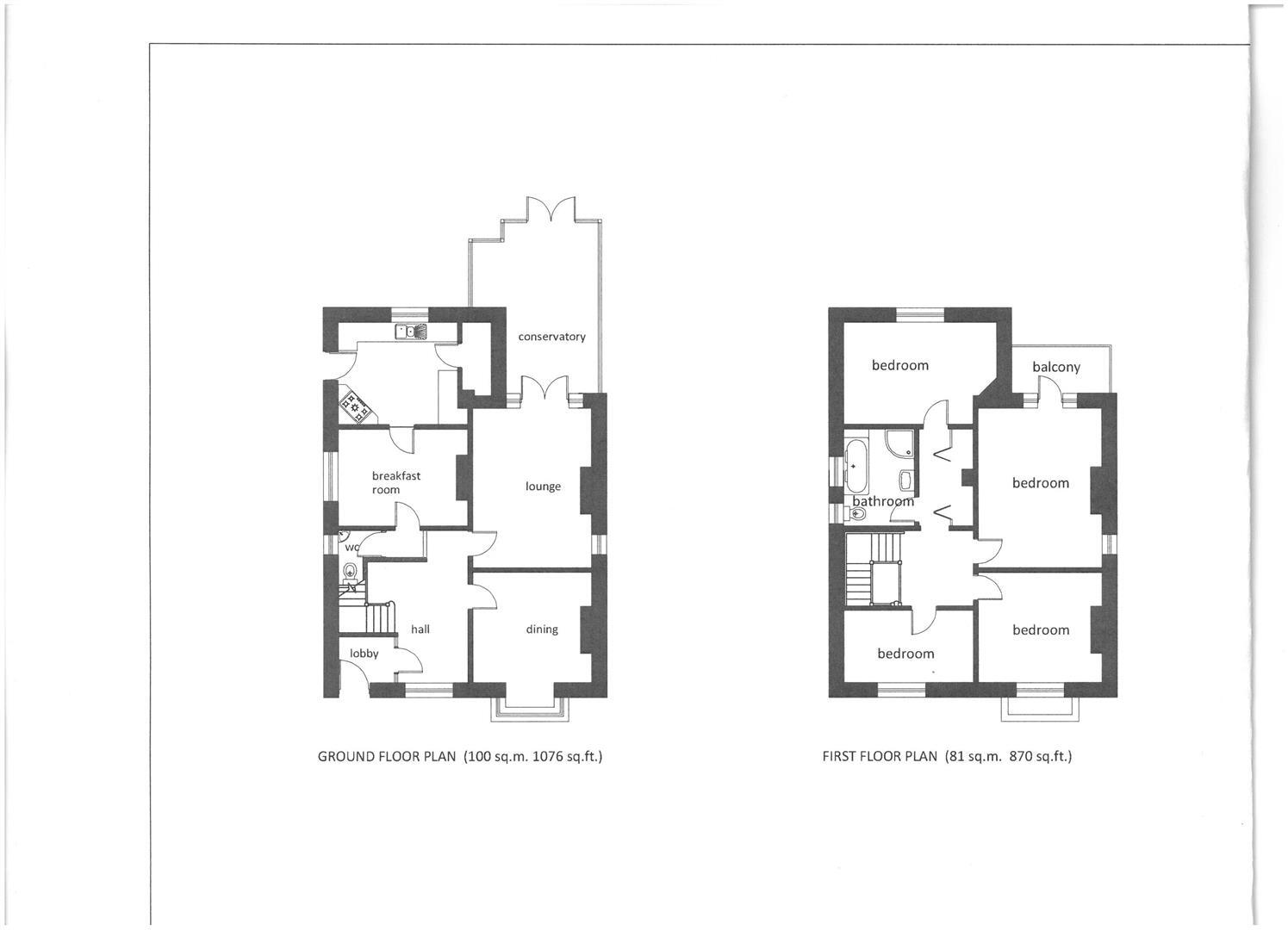
*CASH BUYERS ONLY* Located in this highly sought after position in the South Ward, within 2 miles of the Town Centre, Sea Front, Railway Station and other amenities. A 4 Bedroom Detached House standing in a generous plot with a large south facing rear garden. The property requires some m...
Property Oracle says ..
This property is a four-bedroom detached house located in Weston-Super-Mare, North Somerset. It benefits from being close to local schools and transport links. The property itself is a period property that has had some modernisation, but could benefit from further updating to improve its condition and presentation. The garden is of a reasonable size, but could be improved with some landscaping. The list price seems reasonable compared to similar properties in the area, but a full survey would be recommended to confirm the condition and value.
Therefore, we give this property 6 / 10. *Disclaimer: This is our option and does constitute a recommendation or financial advice. Do your own research. *
- Price
- 7
- Condition
- 6
- Location
- 7
- Land
- 6
- Bedrooms
- 4
- Bathrooms
- 1
- Sqft (est)
- 1,948.27
The heatmap indicates the level of crime in the area. The color of the heatmap indicates the crime severity and recency.
Metrics Year-on-Year
- Average area value
- 881,250.00 £Increased by 10.74 %
- Est sale value
- 1,344,306.30 £Increased by 54.71 %
- Average area rental value
- 1,300.00 £/moDecreased by 43.36 %
- Est letting value
- 1,948.27 £/moUnchanged by 0.00 %
- Est rental Yield
- 1.77 %Decreased by 48.84 %
- Crime Rate
- 3.00 %Unchanged by 0.00 %
Agent Activity
Stephen & Co created the listing.
Nearby Schools
| Name | Type | Ofsted | Distance |
|---|---|---|---|
| Broadoak Academy | Academy Converter | 0.24 KM | |
| Uphill Village Academy | Academy Converter | 0.93 KM | |
| Westhaven School | Foundation Special School | Good | 1.04 KM |
| Windwhistle Primary School | Academy Converter | 1.28 KM | |
| South Weston Children'S Centre | Children's Centre | 1.32 KM |
Images
Nearby Streets
| Name | Average Price | Average Sqft | Distance |
|---|---|---|---|
| Windwhistle Road | £ 745,000 | 0 | 0.00 KM |
| Lyndhurst Road | £ 0 | 0 | 0.00 KM |
| Wingard Court | £ 335,000 | 0 | 0.00 KM |
| Malvern Road | £ 187,500 | 0 | 0.00 KM |
| Marine Parade | £ 350,000 | 0 | 0.00 KM |
Nearby Transport
| Name | NLC | TLC | Distance |
|---|---|---|---|
| Weston-Super-Mare | 3391 | WSM | 1.64 KM |
| Weston Milton | 3388 | WNM | 4.32 KM |
| Worle | 3390 | WOR | 8.06 KM |
Nearby Listings
| Address | Price | Type | Score | Distance |
|---|---|---|---|---|
| Brean Down Avenue, Weston-Super-Mare | £ 695,000 | BUY | 6 / 10 | 0.00 KM |
| Broad Oak Road, Weston super Mare - EXCLUSIVE LOCATION | £ 725,000 | BUY | 8 / 10 | 0.12 KM |
| Elmsleigh Road, Weston - PREMIER ADDRESS | £ 750,000 | BUY | 8 / 10 | 0.13 KM |
| Elmsleigh Road, Weston-Super-Mare, BS23 | £ 775,000 | BUY | 7 / 10 | 0.13 KM |
| Elmsleigh Road, Weston-super-Mare | £ 750,000 | BUY | 8 / 10 | 0.17 KM |
Nearby Properties
| Address | Price | Distance |
|---|---|---|
| 28 Brean Down Avenue | £ 352,500 | 0.03 KM |
| 44 Brean Down Avenue | £ 358,500 | 0.03 KM |
| 23 Brean Down Avenue | £ 499,950 | 0.03 KM |
| 25 Brean Down Avenue | £ 470,000 | 0.03 KM |
| 26 Brean Down Avenue | £ 455,000 | 0.03 KM |