Vardon Drive, Bishop's Stortford, Hertfordshire, CM23
By Intercounty
£ 675,000
Reviews
3 out of 5 stars
Intercounty says ..
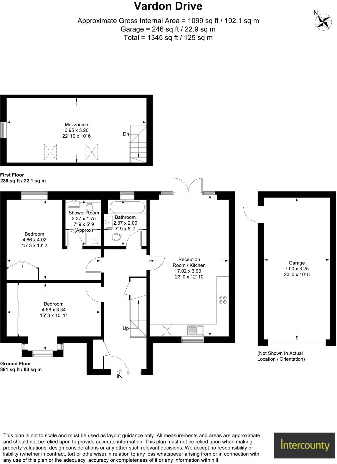
A rarely available detached property located in the charming area of Vardon Drive, Bishop’s Stortford. Internal accommodation comprises a stunning open-plan lounge and kitchen breakfast room, equipped with integrated appliances, two double bedrooms, accompanied by two bathrooms,...
Property Oracle says ..
This is a well-presented, modern bungalow in a desirable location. The property has been recently renovated and is in excellent condition. The garden is a good size and the property is located close to good schools and transport links. The price is slightly above average for the area, but this is reflected in the condition and location of the property.
Therefore, we give this property 7 / 10. *Disclaimer: This is our option and does constitute a recommendation or financial advice. Do your own research. *
- Price
- 6
- Condition
- 9
- Location
- 7
- Land
- 7
- Bedrooms
- 2
- Bathrooms
- 2
- Sqft (est)
- 1,099.00
The heatmap indicates the level of crime in the area. The color of the heatmap indicates the crime severity and recency.
Metrics Year-on-Year
- Average area value
- 556,868.00 £Decreased by 2.64 %
- Est sale value
- 627,529.00 £Increased by 20.72 %
- Average area rental value
- 1,405.00 £/moIncreased by 8.58 %
- Est letting value
- 1,099.00 £/moUnchanged by 0.00 %
- Est rental Yield
- 3.03 %Increased by 11.81 %
- Crime Rate
- 6.00 %Unchanged by 0.00 %
Agent Activity
Intercounty created the listing.
Nearby Schools
| Name | Type | Ofsted | Distance |
|---|---|---|---|
| Summercroft Primary School | Academy Converter | Good | 0.50 KM |
| Birchwood High School | Academy Converter | Good | 0.59 KM |
| Eh3 Buttercups Family Centre | Children's Centre | 0.72 KM | |
| All Saints Church Of England Primary School And Nursery, Bishop'S Stortford | Voluntary Aided School | Good | 1.10 KM |
| Thorn Grove Primary School | Community School | Good | 1.25 KM |
Images
Nearby Streets
| Name | Average Price | Average Sqft | Distance |
|---|---|---|---|
| Vardon Drive | £ 0 | 0 | 0.00 KM |
| Braid Close | £ 0 | 0 | 0.00 KM |
| Norris Close | £ 830,000 | 0 | 0.00 KM |
| Shortcroft | £ 721,667 | 0 | 0.00 KM |
| Raynham Road | £ 252,500 | 0 | 0.00 KM |
Nearby Transport
| Name | NLC | TLC | Distance |
|---|---|---|---|
| Bishops Stortford | 6800 | BIS | 2.10 KM |
| Stansted Mountfitchet | 6833 | SST | 4.00 KM |
| Sawbridgeworth | 6806 | SAW | 6.63 KM |
| Elsenham (Essex) | 6832 | ESM | 7.53 KM |
| Stansted Airport | 6834 | SSD | 8.79 KM |
Nearby Listings
| Address | Price | Type | Score | Distance |
|---|---|---|---|---|
| Vardon Drive, Bishop's Stortford, Hertfordshire, CM23 | £ 675,000 | BUY | 7 / 10 | 0.00 KM |
| Vardon Drive, Bishops Stortford | £ 649,995 | BUY | Unknown | 0.15 KM |
| Braid Close, Bishop's Stortford, Hertfordshire, CM23 | £ 600,000 | BUY | 7 / 10 | 0.15 KM |
| Manor Links, Bishop's Stortford, Hertfordshire, CM23 | £ 1,095,000 | BUY | 8 / 10 | 0.16 KM |
| Braid Close, Bishop's Stortford, Hertfordshire, CM23 | £ 450,000 | BUY | 7 / 10 | 0.20 KM |
Nearby Properties
| Address | Price | Distance |
|---|---|---|
| 7 Manor Links | £ 570,000 | 0.16 KM |
| 26 Manor Links | £ 425,000 | 0.16 KM |
| 16 Manor Links | £ 395,000 | 0.16 KM |
| 34 Manor Links | £ 430,000 | 0.16 KM |
| 20 Manor Links | £ 765,000 | 0.16 KM |