Selby Lane, Keyworth, Nottingham
By Benjamins
£ 450,000
Reviews
3 out of 5 stars
Benjamins says ..
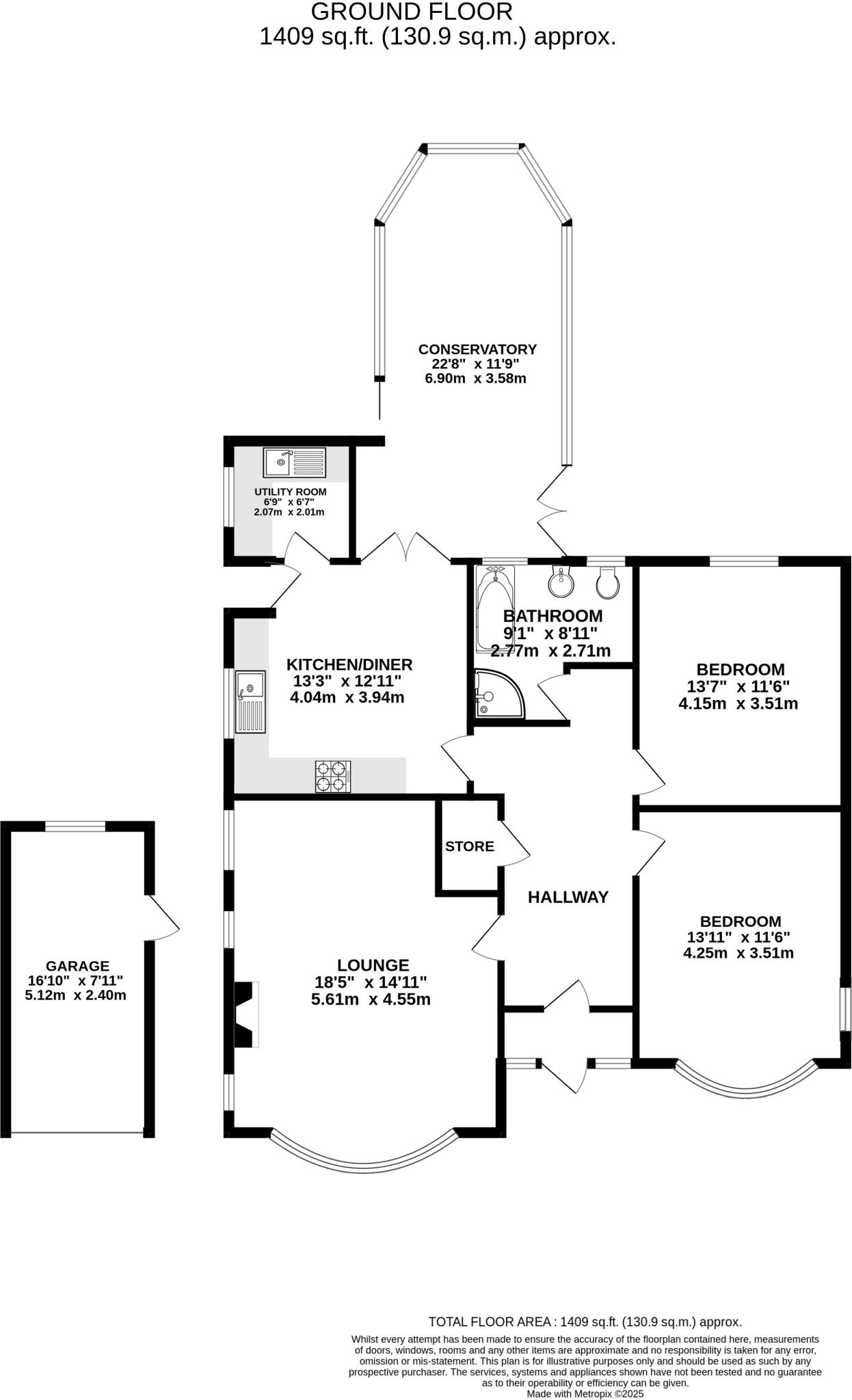
Benjamins are delighted to present this exceptional two-bedroom 1930s style detached bungalow, located on the highly sought-after Selby Lane in Keyworth, South Nottinghamshire. Brimming with period features and meticulously maintained by the current owners, this charming property boa (cont.)
Property Oracle says ..
This is a two-bedroom bungalow in Keyworth, Nottinghamshire. The property is in a good location, close to local schools and amenities. The property is in reasonable condition, but would benefit from some modernisation. The property has a good-sized garden, with a patio area and lawn. There is also a garage and driveway. The property is listed for £450,000, which is above the average price for a property in Keyworth. However, the property is a good size and has a large garden.
Therefore, we give this property 6 / 10. *Disclaimer: This is our option and does constitute a recommendation or financial advice. Do your own research. *
- Price
- 6
- Condition
- 6
- Location
- 7
- Land
- 8
- Bedrooms
- 2
- Bathrooms
- 1
- Sqft (est)
- 1,287.36
The heatmap indicates the level of crime in the area. The color of the heatmap indicates the crime severity and recency.
Metrics Year-on-Year
- Average area value
- 307,772.00 £Increased by 19.74 %
- Est sale value
- 673,289.28 £Increased by 90.88 %
- Average area rental value
- 871.00 £/moDecreased by 8.32 %
- Est letting value
- 1,287.36 £/moUnchanged by 0.00 %
- Est rental Yield
- 3.40 %Decreased by 23.42 %
- Crime Rate
- 15.00 %Unchanged by 0.00 %
Agent Activity
Benjamins created the listing.
Nearby Schools
| Name | Type | Ofsted | Distance |
|---|---|---|---|
| The South Wolds Academy & Sixth Form | Academy Converter | Good | 0.58 KM |
| Willow Brook Primary School | Community School | Good | 0.89 KM |
| Keyworth Primary And Nursery School | Academy Converter | Good | 1.11 KM |
| Crossdale Primary School | Academy Converter | Good | 1.54 KM |
| Plumtree School | Other Independent School | 2.52 KM |
Images
Nearby Streets
| Name | Average Price | Average Sqft | Distance |
|---|---|---|---|
| Windmill Court | £ 142,500 | 0 | 0.00 KM |
| Laburnum Avenue | £ 250,000 | 0 | 0.00 KM |
| Cherry Hill | £ 255,000 | 0 | 0.00 KM |
| Rowan Drive | £ 233,333 | 0 | 0.00 KM |
| Larch Way | £ 650,000 | 0 | 0.00 KM |
Nearby Listings
| Address | Price | Type | Score | Distance |
|---|---|---|---|---|
| Selby Lane, Keyworth, Nottingham | £ 450,000 | BUY | 6 / 10 | 0.00 KM |
| Ash Grove, Keyworth, Nottingham | £ 230,000 | BUY | 7 / 10 | 0.09 KM |
| Selby Lane, Keyworth, Nottingham | £ 550,000 | BUY | 7 / 10 | 0.09 KM |
| Laurel Avenue, Keyworth | £ 420,000 | BUY | 7 / 10 | 0.14 KM |
| Beech Avenue, Keyworth, Nottingham | £ 270,000 | BUY | 6 / 10 | 0.23 KM |
Nearby Properties
| Address | Price | Distance |
|---|---|---|
| 16 Ash Grove | £ 175,000 | 0.13 KM |
| 10 Ash Grove | £ 242,500 | 0.13 KM |
| 19 Ash Grove | £ 195,000 | 0.13 KM |
| 11 Ash Grove | £ 144,000 | 0.13 KM |
| 23 Ash Grove | £ 220,000 | 0.13 KM |