9 Wellington Street, St. Ives, PE27
By WellingtonWise
£ 600,000
Reviews
3 out of 5 stars
WellingtonWise says ..
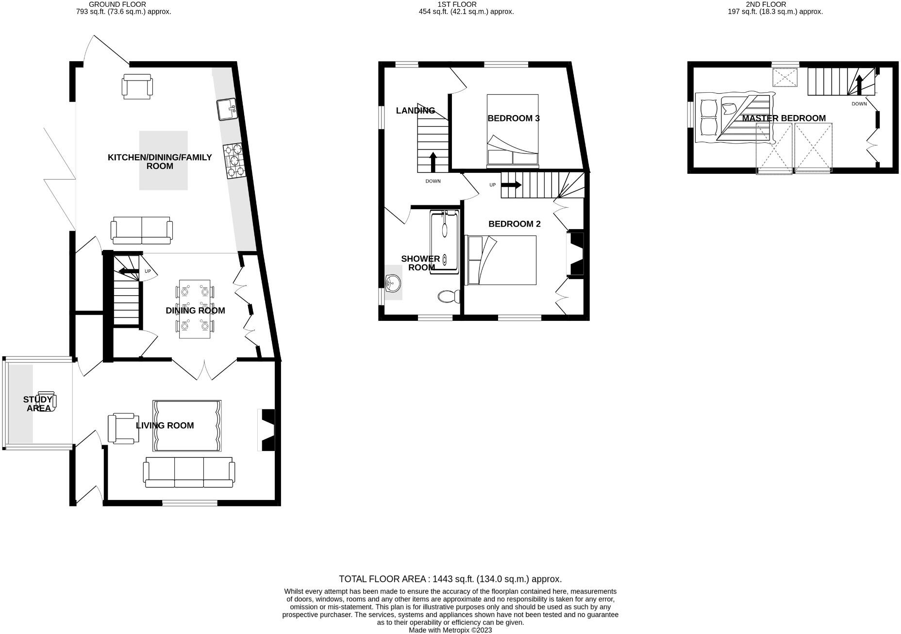
WellingtonWise are proud to offer to the market Victoria Cottage. This is a unique and Quintessentially English character cottage based in St Ives town centre and benefits from off road parking and an enclosed landscaped garden. Built in 1850 and with immaculate presentation and bags of character.
Property Oracle says ..
This end-of-terrace property at 9 Wellington Street, St. Ives, offers a blend of traditional charm and modern living. The house features three bedrooms and one bathroom. The interior is a mix of updated spaces and areas needing some cosmetic improvements. The garden is a definite asset, providing a pleasant outdoor area. However, the asking price of £600,000 appears high compared to the average property price in the area, especially considering the absence of confirmed square footage.
Therefore, we give this property 6 / 10. *Disclaimer: This is our option and does constitute a recommendation or financial advice. Do your own research. *
- Price
- 5
- Condition
- 7
- Location
- 8
- Land
- 7
- Bedrooms
- 3
- Bathrooms
- 1
- Sqft (est)
- 1,443.00
The heatmap indicates the level of crime in the area. The color of the heatmap indicates the crime severity and recency.
Metrics Year-on-Year
- Average area value
- 396,923.00 £Increased by 2.69 %
- Est sale value
- 725,829.00 £Increased by 57.19 %
- Average area rental value
- 1,320.00 £/moIncreased by 1.07 %
- Est letting value
- 1,443.00 £/moUnchanged by 0.00 %
- Est rental Yield
- 3.99 %Decreased by 1.48 %
- Crime Rate
- 55.00 %Unchanged by 0.00 %
Agent Activity
WellingtonWise created the listing.
Nearby Schools
| Name | Type | Ofsted | Distance |
|---|---|---|---|
| St Ives Child And Family Zone | Children's Centre | 0.63 KM | |
| Eastfield Infant And Nursery School | Community School | Good | 0.78 KM |
| Westfield Junior School | Community School | Good | 0.82 KM |
| St Ivo Academy | Academy Converter | Good | 1.63 KM |
| Wheatfields Primary School | Foundation School | Good | 1.79 KM |
Images
Nearby Streets
| Name | Average Price | Average Sqft | Distance |
|---|---|---|---|
| Market Lane | £ 0 | 0 | 0.00 KM |
| Bridge Street | £ 0 | 0 | 0.00 KM |
| Alexandra Court | £ 0 | 0 | 0.00 KM |
| Kings Road | £ 0 | 0 | 0.00 KM |
| Oriel Court | £ 335,000 | 0 | 0.00 KM |
Nearby Listings
| Address | Price | Type | Score | Distance |
|---|---|---|---|---|
| 9 Wellington Street, St. Ives, PE27 | £ 600,000 | BUY | 6 / 10 | 0.00 KM |
| Wellington Street, St. Ives, Cambridgeshire, PE27 | £ 650,000 | BUY | 5 / 10 | 0.03 KM |
| Free Church Passage, St. Ives | £ 350,000 | BUY | 6 / 10 | 0.07 KM |
| Free Church Passage, St. Ives, Cambridgeshire, PE27 | £ 480,000 | BUY | Unknown | 0.11 KM |
| Free Church Passage, St. Ives, Cambridgeshire, PE27 | £ 325,000 | BUY | 5 / 10 | 0.11 KM |
Nearby Properties
| Address | Price | Distance |
|---|---|---|
| 20 Wellington Street | £ 225,000 | 0.03 KM |
| 16 - 18 Wellington Street | £ 265,000 | 0.03 KM |
| 22 Wellington Street | £ 233,000 | 0.03 KM |
| 9 Wellington Street | £ 335,000 | 0.03 KM |
| 4 Chapel Court | £ 145,000 | 0.03 KM |