Elm Tree Gardens, Leicester
By Berkley Estate & Letting Agents
£ 450,000
Reviews
2 out of 5 stars
Berkley Estate & Letting Agents says ..
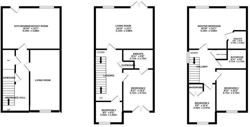
Nestled within a charming gated community, this expansive residence offers versatile living spaces spread across three levels. Boasting five bedrooms, three bathrooms, and two reception rooms, the property welcomes you with an inviting entrance hallway leading to a spacious living area and a rear...
Property Oracle says ..
This five-bedroom, three-bathroom property in Elm Tree Gardens, Leicester offers a spacious layout suitable for a family. The property is part of a gated community, adding to its security and exclusivity. While located in Knighton, it benefits from good access to local schools, and Leicester city centre is within easy reach. The interior shows a blend of well-maintained features, such as updated kitchen and bathrooms alongside areas that would benefit from minor improvements. The small garden offers a private outdoor space. The property’s condition is generally good, although some cosmetic enhancements would be beneficial, primarily in several rooms. The property’s price appears relatively high for the area but considering the location and the number of bedrooms and bathrooms, it is somewhat in line with other listings and the average house price. The lack of precise plot size data and inconsistent sqft data for comparable properties makes it difficult to assess the value precisely, but at the price, prospective buyers should be sure to take this into consideration. Overall, the property presents a livable space in a convenient location but requires some attention and upgrades to reach its full potential.
Therefore, we give this property 5 / 10. *Disclaimer: This is our option and does constitute a recommendation or financial advice. Do your own research. *
- Price
- 7
- Condition
- 6
- Location
- 7
- Land
- 3
- Bedrooms
- 5
- Bathrooms
- 3
- Sqft (est)
- 1,278.75
The heatmap indicates the level of crime in the area. The color of the heatmap indicates the crime severity and recency.
Metrics Year-on-Year
- Average area value
- 404,688.00 £Increased by 2.85 %
- Est sale value
- 471,858.75 £Increased by 17.52 %
- Average area rental value
- 788.00 £/moDecreased by 23.79 %
- Est letting value
- 0.00 £/mo
- Est rental Yield
- 2.34 %Decreased by 25.71 %
- Crime Rate
- 11.00 %Unchanged by 0.00 %
Agent Activity
Berkley Estate & Letting Agents created the listing.
Nearby Schools
| Name | Type | Ofsted | Distance |
|---|---|---|---|
| St Thomas More Catholic Voluntary Academy | Academy Converter | 0.44 KM | |
| Leicester Partnership School | Pupil Referral Unit | Good | 0.54 KM |
| Leicester Islamic Academy | Other Independent School | Good | 0.76 KM |
| Leicester Preparatory School | Other Independent School | 0.89 KM | |
| Overdale Junior School | Academy Converter | 0.97 KM |
Images
Nearby Streets
| Name | Average Price | Average Sqft | Distance |
|---|---|---|---|
| Stoughton Avenue | £ 0 | 0 | 0.00 KM |
| The Orchard | £ 0 | 0 | 0.00 KM |
| Avenue Gardens | £ 0 | 0 | 0.00 KM |
| Knighton Grange Road | £ 129,950 | 0 | 0.00 KM |
| East Avenue | £ 0 | 0 | 0.00 KM |
Nearby Transport
| Name | NLC | TLC | Distance |
|---|---|---|---|
| Leicester | 1947 | LEI | 3.07 KM |
| South Wigston | 1949 | SWS | 4.34 KM |
| Syston | 1900 | SYS | 9.70 KM |
Nearby Listings
| Address | Price | Type | Score | Distance |
|---|---|---|---|---|
| Elm Tree Gardens, Leicester | £ 450,000 | BUY | 5 / 10 | 0.00 KM |
| 26 Elms Road, Stoneygate, Leicester, LE2 | £ 185,000 | BUY | 6 / 10 | 0.05 KM |
| Elms Road, Leicester, LE2 | £ 165,000 | BUY | 7 / 10 | 0.05 KM |
| Elm Tree Gardens, Stoneygate | £ 400,000 | BUY | 6 / 10 | 0.05 KM |
| Elm Tree Gardens, Leicester, LE2 | £ 450,000 | BUY | Unknown | 0.05 KM |
Nearby Properties
| Address | Price | Distance |
|---|---|---|
| 5 Elm Tree Gardens | £ 249,995 | 0.05 KM |
| 13 Elm Tree Gardens | £ 310,000 | 0.05 KM |
| 4 Elm Tree Gardens | £ 310,000 | 0.05 KM |
| 15 Elm Tree Gardens | £ 360,000 | 0.05 KM |
| 12 Elm Tree Gardens | £ 312,000 | 0.05 KM |