Henry Adams says ..
A well presented and maintained 3-bed terraced house with modern kitchen, garden, and garage. Tranquil garden views. Ideal for relaxation.
Property Oracle says ..
This three-bedroom terraced house in Cootham, West Sussex, is listed at £345,000. The property benefits from a good-sized garden, as shown in the photos. The interior appears to be in good condition and well-maintained. While the average price per square foot in the area is £476, this property is significantly below average at £455 per sqft. The location is convenient, with nearby schools and transportation options. However, the average house price in the area is significantly higher than the list price of this property. More information on the property’s condition and any potential issues would be necessary for a complete assessment.
Therefore, we give this property 7 / 10. *Disclaimer: This is our option and does constitute a recommendation or financial advice. Do your own research. *
- Price
- 6
- Condition
- 8
- Location
- 7
- Land
- 7
- Bedrooms
- 3
- Bathrooms
- 1
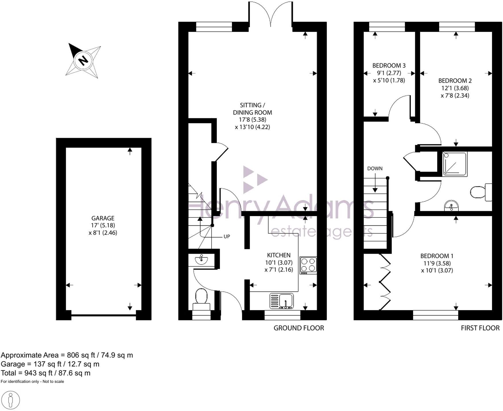
- Sqft (est)
- 758.30
- Lot (est)
- 943.00
The heatmap indicates the level of crime in the area. The color of the heatmap indicates the crime severity and recency.
Metrics Year-on-Year
- Average area value
- 863,000.00 £Increased by 48.49 %
- Est sale value
- 265,405.00 £Decreased by 13.79 %
- Average area rental value
- 1,425.00 £/moIncreased by 38.22 %
- Est letting value
- 0.00 £/mo
- Est rental Yield
- 1.98 %Decreased by 7.04 %
- Crime Rate
- 25.00 %Unchanged by 0.00 %
Agent Activity
Henry Adams created the listing.
Nearby Schools
| Name | Type | Ofsted | Distance |
|---|---|---|---|
| Storrington Primary School | Community School | Outstanding | 1.41 KM |
| Little Footsteps Children And Family Centre Storrington | Children's Centre | 1.67 KM | |
| Thakeham Primary School | Community School | Good | 4.00 KM |
| West Chiltington Community Primary School | Community School | Good | 4.61 KM |
| Pulborough Children And Family Centre | Children's Centre Linked Site | 5.11 KM |
Images
Nearby Streets
| Name | Average Price | Average Sqft | Distance |
|---|---|---|---|
| Greenacre Close | £ 0 | 0 | 0.00 KM |
| Downlands | £ 0 | 0 | 0.00 KM |
| Clay Lane | £ 1,475,000 | 0 | 0.00 KM |
| The Brackens | £ 0 | 0 | 0.00 KM |
| Willow Close | £ 474,983 | 0 | 0.00 KM |
Nearby Transport
| Name | NLC | TLC | Distance |
|---|---|---|---|
| Pulborough | 5468 | PUL | 6.46 KM |
| Amberley | 5250 | AMY | 8.28 KM |
Nearby Listings
| Address | Price | Type | Score | Distance |
|---|---|---|---|---|
| Cootham Green, Cootham, RH20 | £ 345,000 | BUY | 7 / 10 | 0.00 KM |
| Pulborough Road, Cootham, West Sussex | £ 700,000 | BUY | 8 / 10 | 0.08 KM |
| Cootham - detached family home | £ 800,000 | BUY | Unknown | 0.17 KM |
| Cootham - character cottage | £ 315,000 | BUY | 6 / 10 | 0.26 KM |
| Dukes Row, Cootham, Pulborough, West Sussex, RH20 | £ 350,000 | BUY | 7 / 10 | 0.26 KM |
Nearby Properties
| Address | Price | Distance |
|---|---|---|
| 5 Cootham Green | £ 315,000 | 0.01 KM |
| 13 Cootham Green | £ 270,000 | 0.01 KM |
| Edgefield | £ 330,000 | 0.01 KM |
| 21 Cootham Green | £ 275,000 | 0.01 KM |
| 17 Cootham Green | £ 290,000 | 0.01 KM |