KE
Vernon Road, Stratford, London, E15
By Keatons
£ 475,000
Reviews
3 out of 5 stars
Keatons says ..
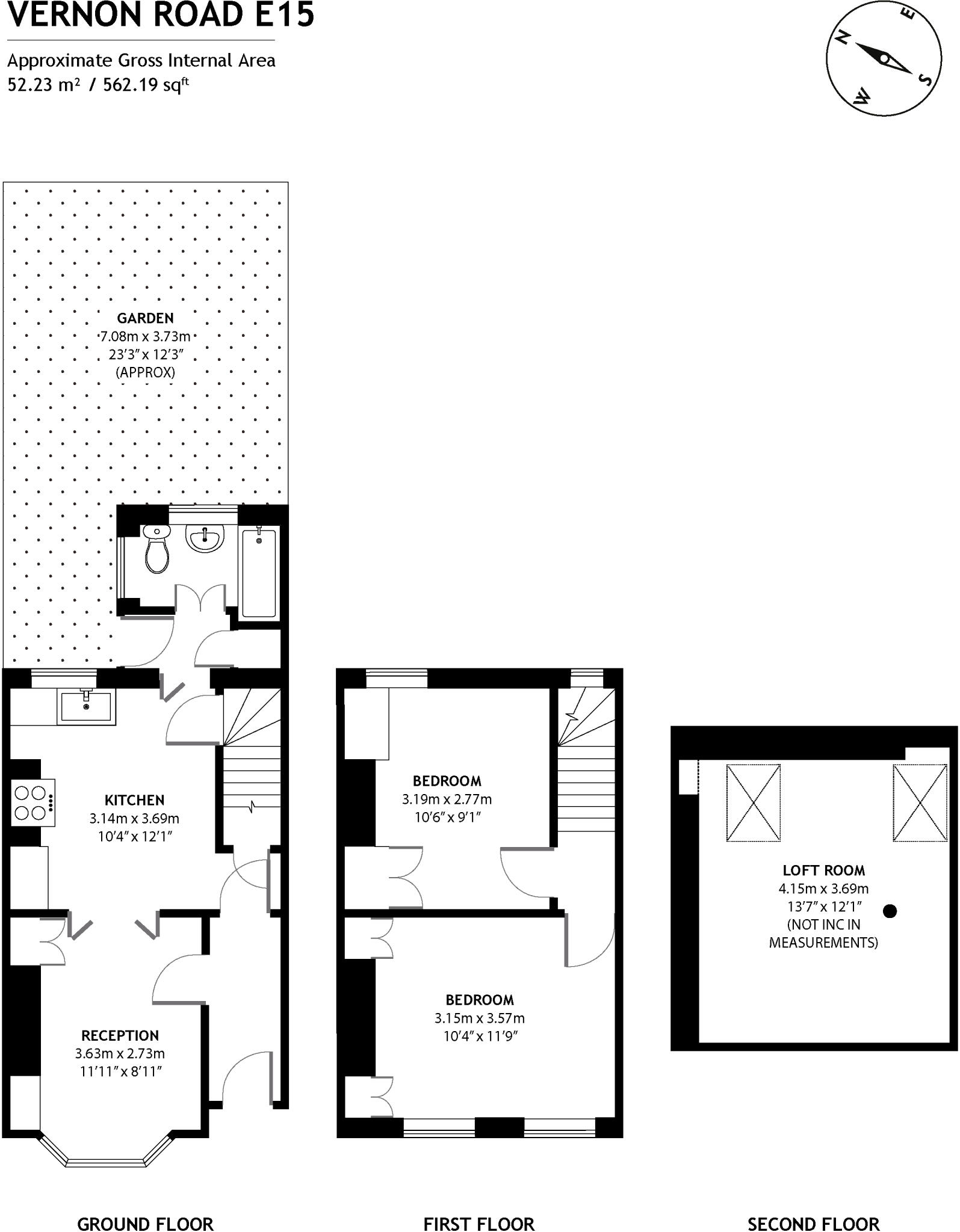
Set within the heart of the ever-popular Stratford Village is the excellent two bedroom mid-terraced Victorian house, offering the perfect first-time buyer property. Beautifully kept and presented throughout, the property consists of a handsome external facade, a superb reception room with bay wi...
Property Oracle says ..
Therefore, we give this property 7 / 10. *Disclaimer: This is our option and does constitute a recommendation or financial advice. Do your own research. *
- Price
- 6
- Condition
- 7
- Location
- 8
- Land
- 7
- Bedrooms
- 2
- Bathrooms
- 1
- Sqft (est)
- 562.20
- Lot (est)
- 284.27
The heatmap indicates the level of crime in the area. The color of the heatmap indicates the crime severity and recency.
Metrics Year-on-Year
- Average area value
- 414,997.00 £Decreased by 30.96 %
- Est sale value
- 380,047.20 £Decreased by 10.46 %
- Average area rental value
- 2,643.00 £/moDecreased by 19.49 %
- Est letting value
- 2,248.80 £/moUnchanged by 0.00 %
- Est rental Yield
- 7.64 %Increased by 16.64 %
- Crime Rate
- 3.00 %Unchanged by 0.00 %
from 601,087.00 £
from 424,461.00 £
from 3,283.00 £/mo
from 2,248.80 £/mo
from 6.55 %
from 3.00 %
Agent Activity
Keatons created the listing.
Nearby Schools
| Name | Type | Ofsted | Distance |
|---|---|---|---|
| East London Independent School | Other Independent Special School | Good | 0.26 KM |
| Sarah Bonnell School | Academy Converter | 0.28 KM | |
| School 21 | Free Schools | Outstanding | 0.48 KM |
| West Ham Church Primary School | Voluntary Controlled School | Good | 0.60 KM |
| Rebecca Cheetham Nursery And Children'S Centre | Local Authority Nursery School | Outstanding | 0.66 KM |
Images
Nearby Streets
| Name | Average Price | Average Sqft | Distance |
|---|---|---|---|
| Whalebone Lane | £ 375,000 | 0 | 0.00 KM |
| Elderflower Way | £ 0 | 0 | 0.00 KM |
| Victoria Street | £ 0 | 0 | 0.00 KM |
| Vicarage Lane | £ 0 | 0 | 0.00 KM |
| Water Lane | £ 500,000 | 0 | 0.00 KM |
Nearby Transport
| Name | NLC | TLC | Distance |
|---|---|---|---|
| Maryland | 6970 | MYL | 0.57 KM |
| Stratford | 6969 | SRA | 1.19 KM |
| West Ham | 7474 | WEH | 1.42 KM |
| Stratford International | 7222 | SFA | 1.83 KM |
| Forest Gate | 6876 | FOG | 2.10 KM |
Nearby Listings
| Address | Price | Type | Score | Distance |
|---|---|---|---|---|
| Vernon Road, Stratford, London, E15 | £ 475,000 | BUY | Unknown | 0.00 KM |
| Vernon Road, Stratford, London, E15 | £ 475,000 | BUY | 7 / 10 | 0.00 KM |
| Glenavon Road, London, E15 | £ 460,000 | BUY | 6 / 10 | 0.01 KM |
| Vernon Road, London | £ 625,000 | BUY | 6 / 10 | 0.04 KM |
| Glenavon Road, London, E15 | £ 450,000 | BUY | 6 / 10 | 0.06 KM |
Nearby Properties
| Address | Price | Distance |
|---|---|---|
| 31 Vernon Road | £ 430,000 | 0.00 KM |
| 67 Vernon Road | £ 460,000 | 0.00 KM |
| 39 Vernon Road | £ 250,000 | 0.00 KM |
| 13 Vernon Road | £ 183,000 | 0.00 KM |
| 71 Vernon Road | £ 250,000 | 0.00 KM |