Flash Lane, Stoke-on-Trent
By Butters John Bee Land
£ 25,000
Reviews
2 out of 5 stars
Butters John Bee Land says ..
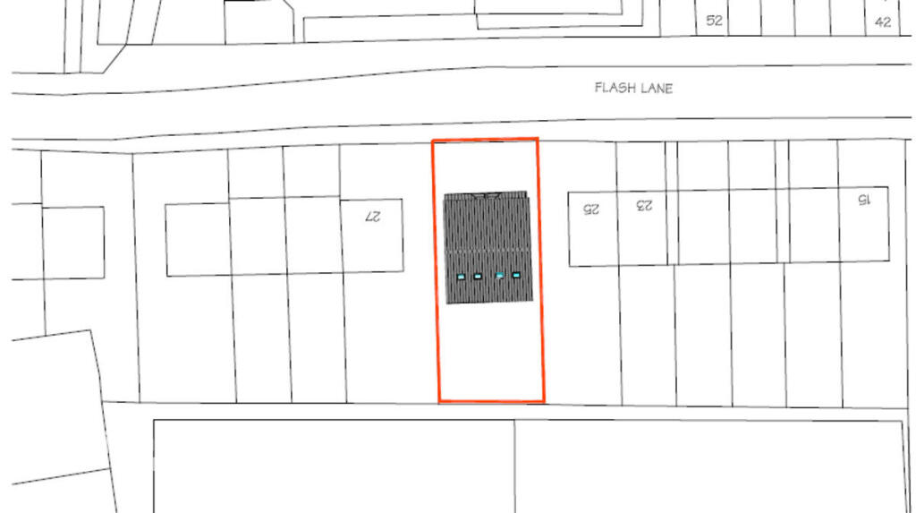
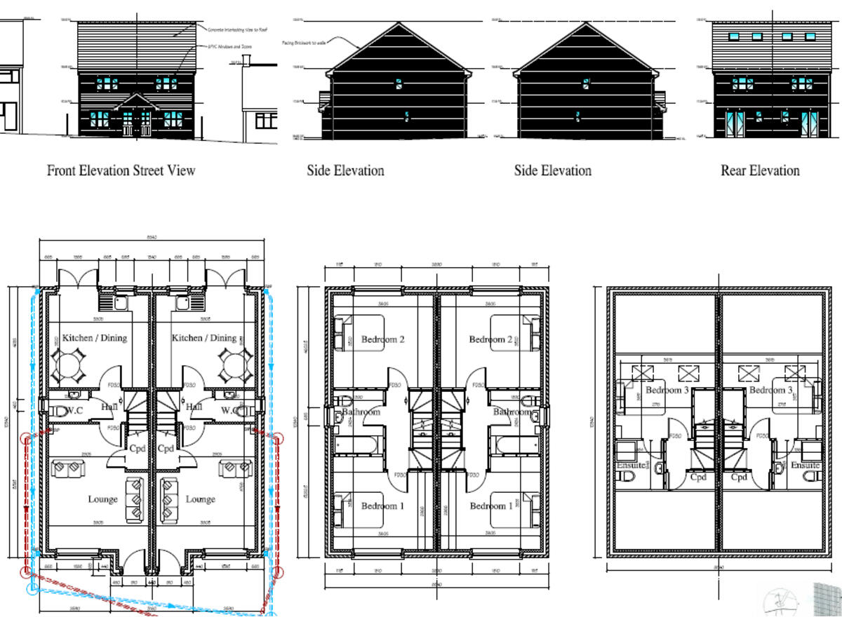
0.07 Acres of vacant land, potential for alternative uses (subject to planning) The site has expired planning consent for two semi detached properties For Sale By Auction at 6.30 pm on Monday 1st December 2025
Property Oracle says ..
This is a plot of land located on Flash Lane in Stoke-on-Trent. The listing price is £25,000. The land requires significant clearing. The location is reasonably accessible, with schools and amenities nearby. The price is considerably lower than average for the area, reflecting the work needed to clear the land.
Therefore, we give this property 5 / 10. *Disclaimer: This is our option and does constitute a recommendation or financial advice. Do your own research. *
- Price
- 9
- Condition
- 1
- Location
- 6
- Land
- 7
- Bedrooms
- 0
- Bathrooms
- 0
- Sqft (est)
- 1,005.67
The heatmap indicates the level of crime in the area. The color of the heatmap indicates the crime severity and recency.
Metrics Year-on-Year
- Average area value
- 274,990.00 £Decreased by 21.89 %
- Est sale value
- 231,304.10 £Decreased by 31.55 %
- Average area rental value
- 838.00 £/moDecreased by 3.12 %
- Est letting value
- 0.00 £/mo
- Est rental Yield
- 3.66 %Increased by 24.07 %
- Crime Rate
- 11.00 %Unchanged by 0.00 %
Agent Activity
Butters John Bee Land created the listing.
Nearby Schools
| Name | Type | Ofsted | Distance |
|---|---|---|---|
| St Joseph'S Preparatory School | Other Independent School | 0.39 KM | |
| St Joseph'S College | Academy Converter | Outstanding | 0.39 KM |
| Oakhill Primary School | Academy Converter | 0.49 KM | |
| St Teresa'S Catholic (A) Primary School | Academy Converter | Good | 0.68 KM |
| Thistley Hough Academy | Academy Sponsor Led | Good | 1.27 KM |
Images
Nearby Streets
| Name | Average Price | Average Sqft | Distance |
|---|---|---|---|
| Mace Street | £ 0 | 0 | 0.00 KM |
| School Street | £ 0 | 0 | 0.00 KM |
| Wakefield Road | £ 0 | 0 | 0.00 KM |
| Alder Walk | £ 0 | 0 | 0.00 KM |
| Bridge Road | £ 89,950 | 0 | 0.00 KM |
Nearby Transport
| Name | NLC | TLC | Distance |
|---|---|---|---|
| Stoke-On-Trent | 1314 | SOT | 3.20 KM |
| Longport | 1305 | LPT | 6.15 KM |
| Longton | 1306 | LGN | 7.21 KM |
Nearby Listings
| Address | Price | Type | Score | Distance |
|---|---|---|---|---|
| Flash Lane, Stoke-on-Trent | £ 25,000 | BUY | 5 / 10 | 0.00 KM |
| London Road, Stoke-on-Trent, Staffordshire | £ 150,000 | BUY | Unknown | 0.09 KM |
| 787 London Road, Stoke-On-Trent, Staffordshire, ST4 5NZ | £ 90,000 | BUY | 5 / 10 | 0.09 KM |
| London Road, Stoke-On-Trent | £ 119,995 | BUY | 6 / 10 | 0.12 KM |
| 773 London Road, Stoke-on-Trent, ST4 5NU | £ 50,000 | BUY | 5 / 10 | 0.14 KM |
Nearby Properties
| Address | Price | Distance |
|---|---|---|
| 37 Flash Lane | £ 93,000 | 0.02 KM |
| 38 Flash Lane | £ 64,000 | 0.02 KM |
| 50 Flash Lane | £ 75,000 | 0.02 KM |
| 36 Flash Lane | £ 85,000 | 0.02 KM |
| 52 Flash Lane | £ 93,000 | 0.04 KM |