Crosswalla Fields, Helston
By Olivers Estate Agents
£ 147,500
Reviews
3 out of 5 stars
Olivers Estate Agents says ..
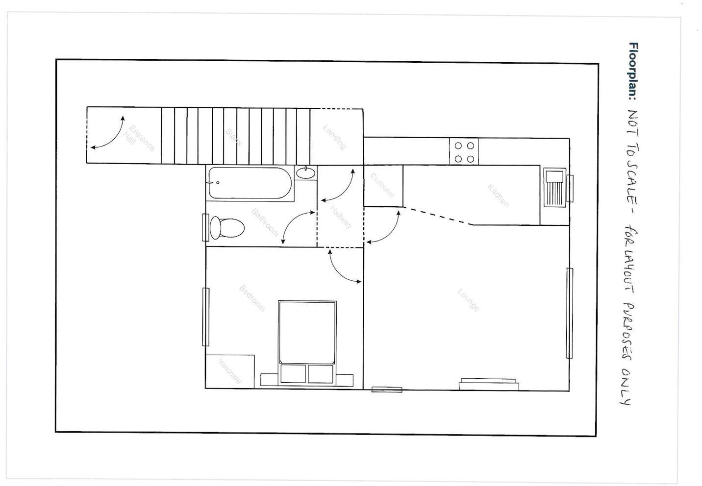
IDEAL FOR AN INVESTMENT BUYER OR FIRST TIME BUYERS! An immaculately presented and light filled one bedroom flat located within a short walk to a supermarket and fish and chip shop and all of Helston's amenities. The property can be sold with the tenant in situ if required. Council Tax Band A. Lea...
Property Oracle says ..
This one-bedroom property located in Helston North, Cornwall, presents itself as a relatively well-maintained home suitable for a single person or couple. The interior appears clean and updated, with a modern kitchen and bathroom. The presence of a small garden is a plus, though the size is limited. The property’s proximity to several schools is a significant advantage for families. The lack of detailed information regarding nearby transportation options and the absence of square footage data for comparable properties makes a complete assessment of value challenging. However, based on available information, the list price appears to be competitive within the local market. Potential buyers should carefully consider the limited plot size and the absence of readily available public transportation, if that is a significant factor for them. Overall, this property offers a comfortable and convenient living space, but further investigation into transportation and precise property comparisons is advised before making a purchase decision.
Therefore, we give this property 6 / 10. *Disclaimer: This is our option and does constitute a recommendation or financial advice. Do your own research. *
- Price
- 7
- Condition
- 7
- Location
- 7
- Land
- 4
- Bedrooms
- 1
- Bathrooms
- 1
- Sqft (est)
- 600.00
The heatmap indicates the level of crime in the area. The color of the heatmap indicates the crime severity and recency.
Metrics Year-on-Year
- Average area value
- 380,500.00 £Decreased by 7.95 %
- Est sale value
- 183,000.00 £Increased by 0.66 %
- Average area rental value
- 1,550.00 £/moIncreased by 31.91 %
- Est letting value
- 600.00 £/mo
- Est rental Yield
- 4.89 %Increased by 43.40 %
- Crime Rate
- 18.00 %Unchanged by 0.00 %
Agent Activity
Olivers Estate Agents created the listing.
Nearby Schools
| Name | Type | Ofsted | Distance |
|---|---|---|---|
| Helston Community College | Academy Converter | Good | 0.57 KM |
| Parc Eglos School | Academy Converter | 0.67 KM | |
| St Michael'S Church Of England Primary School | Academy Sponsor Led | Good | 0.73 KM |
| Nansloe Academy | Academy Converter | Good | 1.39 KM |
| Helston Children'S Centre | Children's Centre | 1.46 KM |
Images
Nearby Streets
| Name | Average Price | Average Sqft | Distance |
|---|---|---|---|
| Gwealfolds | £ 495,000 | 0 | 0.00 KM |
| Hillcrest | £ 695,000 | 0 | 0.00 KM |
| Beacon Terrace | £ 0 | 0 | 0.00 KM |
| B3297 | £ 0 | 0 | 0.00 KM |
| Rinsey Drive | £ 495,000 | 0 | 0.00 KM |
Nearby Listings
| Address | Price | Type | Score | Distance |
|---|---|---|---|---|
| Crosswalla Fields, Helston | £ 147,500 | BUY | 6 / 10 | 0.00 KM |
| Crosswalla Fields | £ 140,000 | BUY | 7 / 10 | 0.01 KM |
| Godolphin Road, Helston, Cornwall | £ 150,750 | BUY | 6 / 10 | 0.05 KM |
| Godolphin Road, Helston, Cornwall | £ 154,000 | BUY | 7 / 10 | 0.05 KM |
| Godolphin Road, Helston, Cornwall | £ 230,000 | BUY | 6 / 10 | 0.06 KM |
Nearby Properties
| Address | Price | Distance |
|---|---|---|
| 20 Crosswalla Fields | £ 140,000 | 0.04 KM |
| 15 Crosswalla Fields | £ 115,000 | 0.04 KM |
| 16 Crosswalla Fields | £ 110,000 | 0.04 KM |
| 19 Crosswalla Fields | £ 125,000 | 0.04 KM |
| 2 Crosswalla Fields | £ 160,000 | 0.04 KM |